23 avril 2026
NL
FR
Login
Publicité
Actualité
Projets
Produits
Produits
Ajouter un produit
Tarifs produit
Dossiers
Partenaires
Offres d'emploi
Offres d'emploi
Tarifs offres d'emploi
Agenda
Architectura Awards
Actualité
Dernier article paru - Varia
Chercher un Article
Catégorie
Info projet
Opinion
Autoportrait
Info produit
Awards
Incroyable mais vrai
Le pour et le contre
International
Actualités du secteur
Durabilité
Evénements
Varia
Vidéo
Tous
Architecture
Intérieur
Techniques
Titre
Rechercher
Effacer les filtres
Varia
La Maison des Jardiniers, l’ode au patrimoine d’Olivia Gustot
Varia
Info technique : Ventilation au dos des sous-toitures, rarement utile !
Varia
Pourquoi choisir une façade ventilée ?
Varia
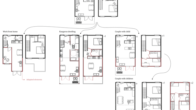
Un mode de vie durable et financièrement abordable avec des maisons adaptables
Varia
La Commission européenne veut rénover 30 millions de bâtiments d’ici à 2030
Varia
A lire : La ville, matière vivante
Varia
Info technique : Comment protéger au mieux les bâtiments face aux inondations
Varia
Bureau Bouwtechniek et Extensa Group développent un modèle circulaire pour les projets résidentiels
Varia
Guide sur l’architecture et les Objectifs de Développement Durable de l’ONU - volume 2
Varia
Rétro 2021 : les articles les plus lus sur architectura
Varia
87 auteurs de projet prêts à répondre aux besoins des écoles
Varia
Sortie du livre sur Georges-Eric Lantair
Varia
Rétro 2021 : les architectes belges mis à l’honneur dans leur propre pays
Varia
Rétro 2021 : reconnaissance internationale pour les architectes belges
Varia
Appel à manifestation d'intérêt : Tintin et les intérieurs du 18e siècle
Varia
Kris Blykers (BLIEBERG) : « Le ‘Cradle to Cradle’ n'encourage pas suffisamment à repenser les systèmes et produits de construction »
Varia
L'anthologie Joseph Diongre, un "bâtisseur" de Bruxelles
Varia
Guide de l’éclairage naturel et norme EN 17037
Varia
Appel à auteurs de projet : La Monnaie se refait une beauté
Varia
Appel à candidatures : Recyclerie, logements et réemploi
Varia
Avis de marché : AR Paul Delvaux, à la conquête d'un nouveau lieu
Varia
Avec NOA, Renson et 21 partenaires ‘outdoor living’ font le choix de l’expérience totale
Varia
Webinaire ‘The architectural world tour’ : ACO rapproche des architectes discutant de l’avenir de la construction et de l’architecture
Varia
architectura.be vous souhaite une année 2022 pleine de (bonnes) surprises !
Précédent
Premier
16
17
18
19
20
Dernier
Suivant
Nos partenaires
Login
Email
Mot de passe
Rester connecté ?
Login
Pas encore de compte ?
Inscrivez-vous ici
Mot de passe oublié?
Réinitialiser le mot de passe
1141-fr
Nieuws