A2o architecten en Broekbakema derrière la conception du Bouwcampus 2.0 circulaire à Diepenbeek

  • image
  • image
  • image
  • image
  • image
  • image
  • image
  • image
  • image
  • image
  • image
  • image
  • image
  • image

La POM Limburg et la province du Limbourg ont désigné a2o architecten et le bureau d'architecture néerlandais Broekbakema pour la conception du bâtiment Bouwcampus 2.0 à Diepenbeek, qui doit servir de innovation hub pour le secteur de la construction, à l' issue d'une procédure d'appel d'offres. Les entreprises de construction Vanhout et Dethier, qui ont formé une équipe multidisciplinaire avec les bureaux d'études pour l'appel d'offres, pourront exécuter les travaux. Ceux-ci débuteront en 2025 et s'achèveront en 2027. Le campus prendra la forme d'un bâtiment circulaire, qui devrait redéfinir la norme en matière de construction durable.

« Si vous construisez un campus, destiné à développer des idées novatrices dans le domaine de la construction, vous devez également joindre le geste à la parole », a déclaré Tom Vandeput, député provincial à l'économie et président de la POM Limburg, lors de la publication de l'appel d'offres, qui recherchera une équipe pluridisciplinaire composée d'un ou plusieurs concepteurs et entrepreneurs. « Le bâtiment sera construit avec une empreinte au sol aussi réduite que possible, selon les principes contemporains de la construction circulaire et modulaire. Il sera synonyme d'innovation, de durabilité généralisée et de flexibilité ».

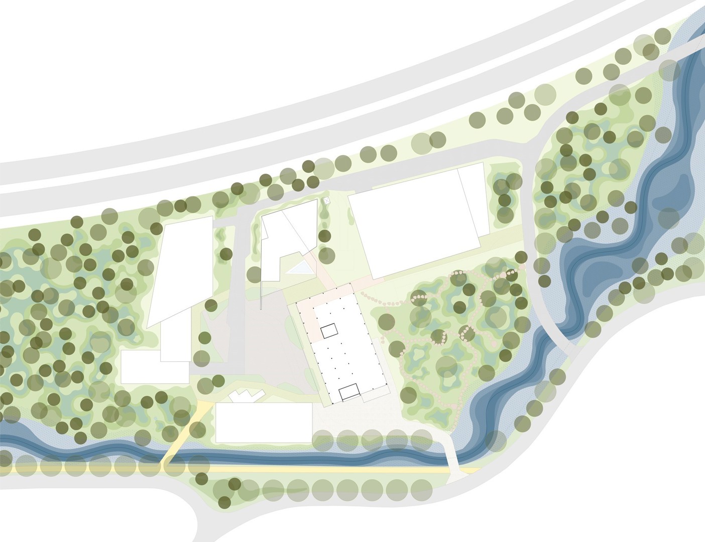
L'appel d'offres a donc été remporté par une équipe composée des bureaux d'études a2o architecten et du bureau néerlandais Broekbakema et des entrepreneurs Vanhout et Dethier. À l'aide du BIM, les architectes ont conçu un bâtiment compact d'une superficie de 5 500 m² qui peut être facilement scindé, adapté et démonté, et qui offre également des solutions énergétiques innovantes.

 

Structure en bois

Le bâtiment, qui accueille des espaces de travail et servira de centre de connaissances et de rencontre pour le secteur de la construction, et donc de projet modèle en termes de construction circulaire, repose sur une structure en bois composée de poutres et de colonnes - surmontées de planchers en bois - qui peut être facilement démontée en vue d'une adaptation aux besoins futurs dans un premier temps et d'un réemploi dans un second temps. Différentes possibilités d'extension peuvent être intégrées très rapidement grâce à la logique du volume de base. La flexibilité de la conception devrait permettre au bâtiment de durer au moins cent ans, selon la POM Limburg.

Outre des espaces de bureaux pour Embuild, Inter et DUBO, entre autres, le Bouwcampus 2.0 abrite également un espace de réunion central, des postes de travail flexibles et un auditorium. L'espace de rencontre est visible de l'extérieur, ce qui devrait donner au bâtiment une impression d'ouverture sur l'extérieur et de convivialité. Le Bouwcampus 2.0 offre également 1 100 m² d'espace de laboratoire pour agrandir le centre d'application du béton de l'UHasselt.

Outre le bois pour la structure, le plus grand nombre possible de matériaux de construction biosourcés seront utilisés dans la construction du Bouwcampus 2.0, comme la chaux, le chanvre et le plâtre d'argile, entre autres.

 

Énergie positive

Des techniques innovantes, comme les panneaux solaires intégrés à la façade et aux auvents, ainsi qu'un système innovant de traitement de l'air utilisant des ressources naturelles, devraient permettre au bâtiment Campus 2.0 d'être énergétiquement positif. En d'autres termes, le bâtiment produira plus d'énergie qu'il n'en a besoin. En outre, le bâtiment récupérera également les eaux de pluie.

Les installations techniques ne sont pas seulement fonctionnelles, elles ont aussi une fonction didactique et seront donc laissées visibles. De cette manière, elles ne démontreront pas seulement leur fonctionnement, mais souligneront également que la technologie et l'architecture peuvent faire bon ménage.

 

Une attention particulière à la nature environnante

A2o architecten et Broekbakema ont également conçu le bâtiment, avec une entrée sur le côté nord qui se connecte aux principaux chemins de promenade sur le site, de manière à perturber le moins possible le terrain et la nature environnante. À titre d'exemple, le bâtiment sera construit sur une surface déjà « perturbée », il n'y aura pas de sous-sol et toutes les terres excavées trouveront une nouvelle affectation sur le site.

Le projet a un budget total de 27,2 millions d'euros, financé par le FEDER (9,4 millions d'euros), le gouvernement flamand (3,5 millions d'euros) et des investisseurs privés.

  • Partager cet article

Nos partenaires