BBA 2024 / Residential Real Estate Award: Woonproject De Meersen (URA Yves Malysse Kiki Verbeeck)

  • image
  • image
  • image
  • image
  • image
  • image
  • image
  • image
  • image

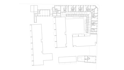
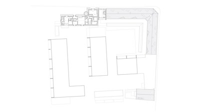
Au cœur du centre-ville d'Ypres, Ura Architects et Robbrecht & Daem Architecten ont réalisé un vaste projet résidentiel sur le site d'une ancienne bibliothèque, école pour garçons et centre culturel. Un puzzle élaboré de différents types et tailles de logements a été intégré dans le patrimoine existant, avec un équilibre entre les éléments nouveaux et existants. Un passage collectif, reliant deux passages aux environnements, débloque les logements. Cela crée une promenade le long de laquelle sont situées les portes, les jardins avant et les terrasses, ainsi que des espaces verts collectifs dans les environs.

Depuis le départ de la bibliothèque municipale et des archives, les bâtiments de De Meersen et De Looie sont restés vacants. La ville d'Ypres a cherché, via un partenariat public-privé, le partenaire idéal pour donner une nouvelle vie au site. Le promoteur immobilier 3D Real Estate s'est associé aux cabinets d'architectes Ura Architects et Robbrecht et Daem Architecten.
Unités résidentielles dynamiques
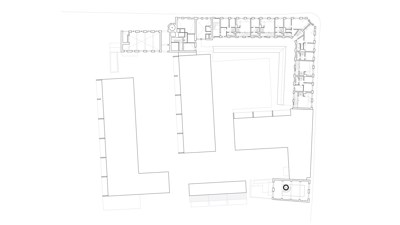
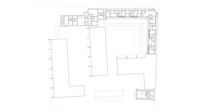
Le site historique 'De Meersen et De Looie' a été réaffecté avec une centaine d'unités résidentielles : des appartements d'une, deux ou trois chambres aux maisons avec jardin. Le nouveau point de repère de la ville d'Ypres comprend également des espaces commerciaux, un parking souterrain pour 130 voitures et un local à vélos avec ascenseur à vélos. Deux passages donnent accès à l'intérieur du terrain, un chemin verdoyant permet d'accéder aux jardins avant et aux portes d'entrée. Cela favorise l'interaction sociale. De plus, des accès aux petits groupes de logements ont été créés dans les passages eux-mêmes, et dans le pli du projet. Avec des interventions subtiles, les ouvertures dans le bâtiment de classe créent une atmosphère chaleureuse.
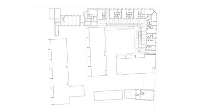
L'équipe de conception a décidé de conserver le bâtiment existant dans sa structure de base, et de le compléter avec des ouvertures de fenêtres spécifiques et des portes. Le toit a été surélevé à certains endroits pour laisser entrer la lumière et l'air ou pour aménager des terrasses à l'étage. Des lucarnes originales fournissent un maximum de lumière dans les espaces de vie en haut. Une nouvelle dynamique est née au sein d'un ensemble historique rigoureux, où l'histoire et l'avenir se rencontrent dans un lieu de vie extrêmement agréable.
Harmonie globale
Au sein du projet, l'équipe de conception a recherché un équilibre idéal entre la préservation et le respect du patrimoine et l'innovation. Le projet, baptisé Gloria, démontre subtilement qu'une réaffectation est l'une des options pour choisir le renouveau dans les zones urbaines. En effet, le bâtiment a conservé son caractère unique, mais son identité est renforcée grâce à certaines interventions spécifiques.
Dans les nouvelles interventions, les architectes ont utilisé les mêmes matériaux et couleurs, ce qui permet une intégration totale du neuf et de l'ancien. En appliquant cette méthodologie consciente, les nouvelles interventions deviennent une partie intégrante de l'ensemble, créant ainsi une harmonie globale.

  • Partager cet article

Nos partenaires