Comment agrandir une école dans une zone densément urbanisée ?

  • image
  • image
  • image
  • image
  • image
  • image
  • image
  • image
  • image
  • image
  • image
  • image
  • image

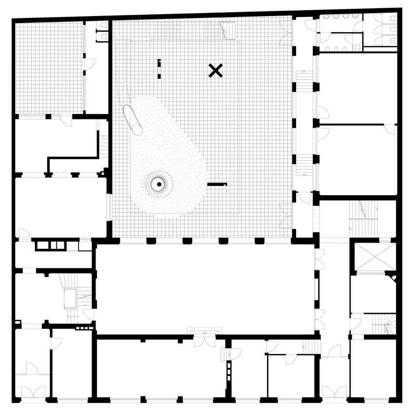
La commune de Saint-Josse-ten-Noode souhaitait agrandir l'école fondamentale Arc-en-Ciel située rue de l'Abondance. La conception de cette transformation a été confiée au bureau Label Architecture. Deux bureaux d'études ont également planché sur ce projet : JZH & Partners pour la stabilité et Energ-IR pour les techniques spéciales et le PEB. Ce projet a représenté un véritable défi : Saint-Josse étant une commune très densément urbanisée, il était difficile de jouer la carte de l'agrandissement pur et simple et de garantir un équilibre plein/vide. 

 

Le bâtiment accueille depuis de nombreuses années l’école fondamentale communale Arc-en-ciel ainsi qu'une crèche. Le projet de la commune avait pour objectif d’augmenter l’espace de récréation, d'ajouter quatre nouvelles classes et d'optimiser l’aile Est. Saint-Josse étant l'une des communes les plus denses de Bruxelles, le défi était de préserver des respirations dans un contexte urbain compact. Les travaux ont commencé en février 2017 et ont été terminés il y a quelques semaines.

Unifier le gabarit et créer une terrasse

« Nous avons décidé d’unifier le gabarit du bâtiment en complétant partiellement une dent creuse présente sur les deux derniers niveaux », explique Andreas Vanysacker, du bureau Label Architecture. « Un étage de classe et une nouvelle terrasse pour la crèche qui 'offre' la ville en paysage ont été ajoutés. La structure légère du garde-corps de la terrasse complète et souligne le sommet du bâtiment tout en proposant une transition douce avec le voisin plus bas. La surface de la cour de récréation est augmentée par la construction d’un grand préau qui accueille un espace de jeu couvert. Sa toiture accessible propose un terrain de sports sécurisé par le déploiement d’un grillage aéré. »

Les atouts de ce projet

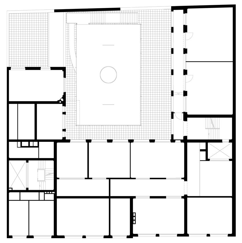
« Ce projet possède plusieurs atouts », continue Andreas Vanysacker. « Un aménagement d’espace extérieur favorisant les interactions, une architecture pensée comme support de multiples récits, la terrasse de la crèche comme balcon sur la ville... Il y a également le préau, pensé comme une extension de l’espace de jeu, et offrant une nouvelle spatialité au cœur de l’école. Terrain de sport dans les airs, plateforme de lancement pour le toboggan tube, plafond de la cabane de corde, ... cette 'table géante' devient l’espace de tous les possibles. Ces quatre pieds différents permettent tantôt une cachette, tantôt un comptoir d’accueil...»

Une conception pour une école durable et écologique

Une réflexion programmatique, en amont, a permis de maintenir toutes les classes existantes par le simple ajout d’une tranche de circulation manquante pour l’aile sud. Les finitions existantes ont été protégées et complétées ou réparées lorsque c’était nécessaire. La réhausse en brique pour les classes a été réalisée avec les briques récupérées du démontage de l’acrotère. Quant à la modulation répétitive des baies de fenêtres, elle a permis la relocalisation d’un châssis existant récemment remplacé.

 

Source Label Architecture

  • Partager cet article

Nos partenaires