Des matériaux écologiques et de récupération pour un nouveau loft à Anderlecht (Veldhuis, Karibu architecture)

  • image
  • image
  • image
  • image
  • image
  • image
  • image
  • image
  • image
  • image
  • image
  • image
  • image
  • image

À Anderlecht, Veldhuis et Karibu architecture ont récemment transformé un bâtiment casco dans un ancien entrepôt en un loft spacieux. La conception a respecté les attentes du client, un jeune couple de Gand, qui souhaitait préserver le caractère du bâtiment, utiliser autant de matériaux écologiques et de récupération que possible, tout en mettant l'accent sur son adaptabilité.

Le promoteur qui avait acheté l'entrepôt il y a quelques années pour le rénover et vendre ensuite les différents espaces casco, avait caché la façade historique derrière une nouvelle couche de plâtre blanc pendant la rénovation, sans vraiment se soucier du caractère historique du bâtiment. Une démarche qui s'oppose à l'approche durable adoptée par le jeune couple, Godfrey et Julie, pour transformer en loft l'espace acheté à l'état brut.

 

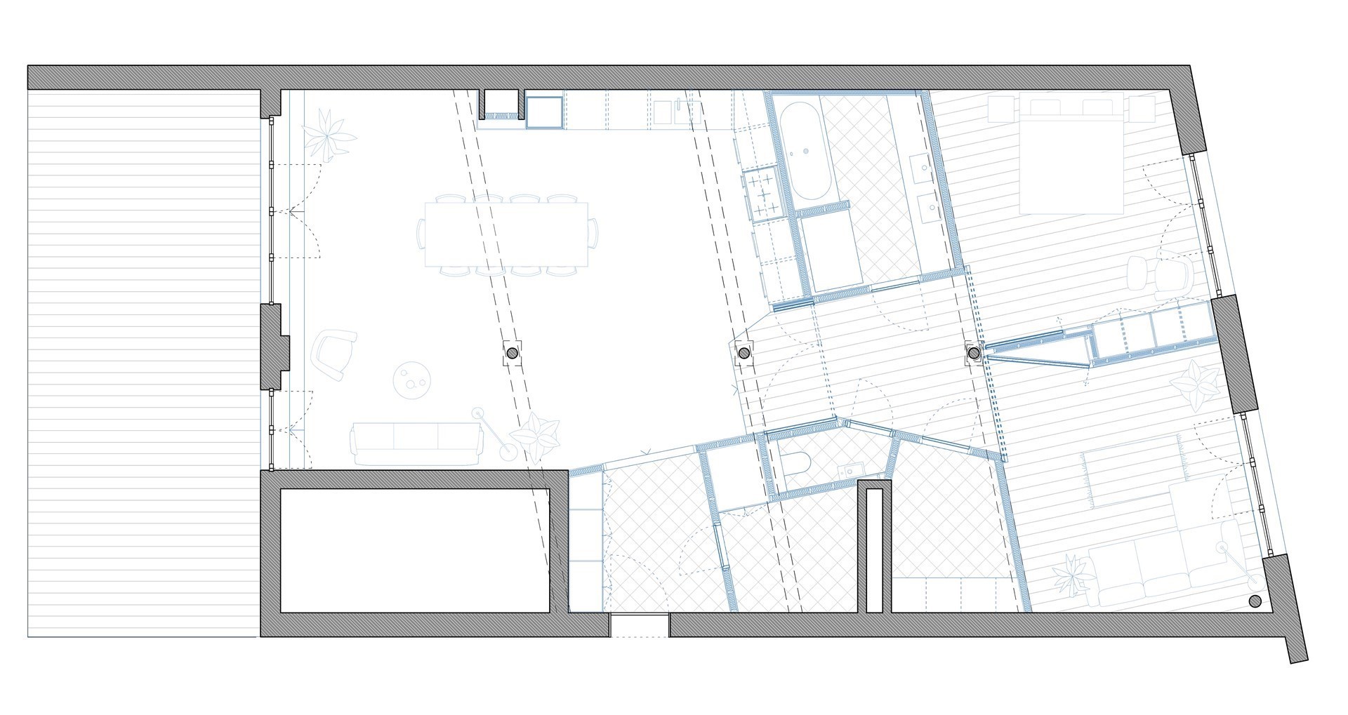
Lors de la construction de leur loft, composé d'un espace de vie avec cuisine, de deux chambres, d'une salle de bains, d'un WC, d'un débarras et d'un hall qui connecte tous ces espaces, Godfrey et Julie ont tout d'abord voulu préserver au maximum l'idendité de cet espace. Cette identité est caractérisée par les vieux treillis en bois, le sol en béton brut, les murs bruts en briques apparentes, les traces de peinture qui témoignent d'années d'utilisation intensive, les trois majestueuses colonnes en fonte et les poutres en acier qui reposent sur ces dernières. Ces éléments ont immédiatement séduit le couple lorsqu'il a visité les lieux pour la première fois, à la recherche d'un logement plus proche de leur lieu de travail, à Bruxelles.

Les cabinets d'architectes auxquels le couple a fait appel, Veldhuis et Karbibu architecture, étaient tenus d'utiliser le plus possible de matériaux écologiques et de récupération. Enfin, les concepteurs ont dû concevoir le loft de manière à ce que son agencement puisse être modifié rapidement et facilement - c'est-à-dire sans intervention structurelle - en fonction de l'évolution des besoins.

 

CLOISONS DÉMONTABLES

Pour l'adaptabilité, des cloisons intérieures démontables ont été fabriquées et installées par l'Atelier Ternier, qui a également conçu une partie du mobilier. Les cloisons sont constituées de montants en bois qui ont été recouverts de panneaux OSB ou de cloisons sèches en fibre de papier. Les murs les plus visibles, qui encadrent les colonnes en fonte, ont été recouverts d'un panneau MDF plaqué en frêne. De par leur matériau, les cloisons répondent non seulement au souhait d'un agencement adaptable, mais aussi à l'exigence d'utilisation de matériaux écologiques.

Le bois n'est cependant pas le seul matériau écologique auquel les architectes se sont intéressés. En effet, ils ont également utilisé du liège granulé pour isoler la structure en bois qui surélève le plancher des chambres, de la salle de bains et du débarras.

 

VISITE CHEZ RODOR DC

Pour les matériaux de récupération, le jeune couple s'est mis en quête lui-même, notamment en se rendant chez Rotor DC, situé à proximité. Au final, des lavabos, des toilettes, un évier, un îlot de cuisine, des planches d'un ancien wagon de chemin de fer (utilisées pour le parquet) et des carreaux de céramique (utilisés dans le hall d'entrée, la salle de bains et le débarras) ont trouvé une seconde vie dans le loft, entre autres.

 

DÉFIS

L'un des plus grands défis pour Veldhuis et Karibu architecture a été de faire pénétrer la lumière du jour dans le loft. En effet, l'espace s'étend de la façade avant à la façade arrière de l'entrepôt et, dans la plupart des cas, une telle distance entre la façade avant et la façade arrière (ici 17 mètres) se traduit par des espaces centraux sombres. Cependant, en équipant la cloison de la salle de bains et du débarras parallèle à la façade avant d'un puits de lumière en verre, la lumière naturelle peut pénétrer dans ces pièces au cours de la journée, bien que celles-ci soient au centre de l’espace.

Les portes à hauteur de pièce entre le hall central et les chambres adjacentes disparaissent complètement dans le mur en bois lorsqu'elles sont ouvertes, ce qui contribue également à maximiser l'éclairage naturel. Et comme ces portes sont habillées de miroirs, le loft reste spacieux même lorsqu'elles sont fermées.

L'objectif des architectes de maintenir le plancher de la pièce de vie aussi bas que possible a aussi constitué un défi. Pour parvenir à réduire de quelques centimètres la hauteur libre de 3 m, qui est généreuse, pour la ramener à 2,95 m, ils ont dû intégrer de manière très réfléchie les parcours des différents tuyaux dans le sol. Cependant, les architectes ont su tirer parti de cette solution, ce qui a permis non seulement de rendre l'espace plus spacieux, mais aussi de réduire la quantité de matériaux utilisés, là encore une forme de circularité. De petites marches de 13 cm et un changement de revêtement de sol définissent des transitions subtiles entre les zones jour et nuit, ainsi qu'entre le hall d'entrée et l'espace de vie.

Les travaux du loft, achevés en février de cette année, ont duré un peu plus d'un an.

  • Partager cet article

Nos partenaires