La Chapelle Musicale Reine Elisabeth déploie ses ailes (Synergy International et L'Escaut)

  • image
  • image
  • image
  • image
  • image
  • image
  • image
  • image

C'est ce 27 janvier 2015, 75 ans après l’ouverture de la Chapelle Musicale Reine Elisabeth, que la nouvelle Aile de Launoit a été inaugurée. L’extension des infrastructures est un projet qui a été lancé dès 2006 avec le choix des bureaux belges d’architecture Synergy International (Sébastien Cruyt) et L’Escaut (Olivier Bastin), notamment spécialisés dans des infrastructures culturelles et bâtiments à haute valeur environnementale. Le budget définitif dépasse les 10 millions d'euros.

La nouvelle Aile de Launoit se base sur :

  • L’augmentation de la capacité de la résidence d’artistes, spécificité du projet depuis 1939 ;
  • L’augmentation de lieux de formation ;
  • La création d’un nouveau studio de diffusion et d’enregistrement ;

Depuis la refonte de son projet artistique en 2004, la Chapelle Musicale est passée de 12 artistes en résidence à une soixantaine de jeunes en 2014 et organise plus de 250 concerts par an. Le développement de l’institution était en décalage par rapport aux 1.800 m2 que le bâtiment historique offrait et l’obligeait à délocaliser des cours, alors qu’elle n’était pas en mesure de loger assez de jeunes, pourtant sa spécificité à l’origine !

L’élargissement de la Chapelle Musicale était donc essentiel afin de garder une position concurrentielle par rapport à d’autres grandes institutions de formation de musique en Europe et dans le monde. Cette nouvelle aile a donc pour objectif premier de permette le développement de ses activités et de soulager le patrimoine existant d’une utilisation de plus en plus intense.

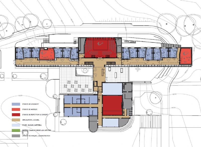
Alors que le bâtiment historique représente 1.850 m2, comprenant principalement :

  • 8 anciens studios de logement et répétition
  • le Salon de la Reine

L’Aile de Launoit double l’espace à 3.500 m2 en ajoutant essentiellement :

  • 20 studios de logement supplémentaires permettant à la Chapelle Musicale d’accueillir un plus grand nombre d’artistes en résidence ;
  • un grand studio de musique offrant non seulement un espace de répétition, de concert mais aussi un réel studio d’enregistrement équipé par notre partenaire le groupe de production et d’édition musicale Outhere ;
  • 2 studios de musique à disposition des professeurs, musiciens et ensembles résidents ou en concert ;
  • un Artists Village (restaurant, cuisine, espace lounge et de détente) offrant l’environnement de qualité nécessaire à la réalisation des objectifs de la Chapelle Musicale.

Le bureau d'architecture d'intérieur MBO a souhaité privilégier à l’intérieur la prolongation de l’écriture architecturale avec l’harmonie et l’homogénéité des matériaux et des coloris, mais aussi l’interaction avec le site et la nature environnante.

 

Un vaisseau dédié à la musique dans la nature

La nouvelle Aile de Launoit, conforte la vocation de ce lieu mythique à être un écrin pour l’excellence artistique musicale au milieu de la nature. Tel le monolithe de « 2001 L’Odyssée de l’espace » (Stanley Kubrick 1968), le projet se traduit par une longue barre de près de cent mètres de long, tendue à l’arrière du bâtiment construit en 1939 par Yvan Renchon. Comme une toile de fond pour ce patrimoine classé dont elle double les capacités, la nouvelle architecture joue avec le verre et la pierre bleue des Carrières du Hainaut pour créer un décor qui reflète la nature autant qu’il répond à l’architecture existante.

Le projet parvient à intégrer toutes les fonctions en se jouant de la topographie du terrain, et en appelant la lumière du jour à pénétrer à profusion par toutes les baies ouvertes vers le paysage et vers le ciel.

La découverte du lieu commence par une longue déambulation dans un couloir bordé vers le Sud par une double peau vitrée attirant le regard vers le vaisseau moderniste des années trente, et distribuant vers le nord les studios logements en duplex ainsi que le Grand Studio (Haas-Teichen) de représentation et les deux studios de répétitions. Le Grand Studio est un moment unique. Par une large baie ouverte sur la forêt d’Argenteuil, les 250 spectateurs auront l’occasion d’être envoûtés par les prestations des virtuoses tout en contemplant le spectacle magique de ce morceau de forêt de Soignes. Il n’est pas rare de voir passer une harde de cerfs. 

 

Un défi acoustique

Un tel projet fondé sur la musique, la circulation des sons, leur amplification ou leur absorbtion, leur résonance ou leur isolation, nécessitait l’intervention d’un acousticien de haut niveau. Rémi Raskin (Capri Acoustique) a orienté le projet sur deux stratégies complémentaires: l’isolation des locaux les uns avec les autres, d’une part, et la maîtrise de la qualité sonore, de l’autre. Chaque studio logement et studio de répétition est isolé dans un principe de «boîte dans la boîte», ce qui rend la composition et la structure du bâtiment particulièrement complexe. Des ensembles de matériaux isolants et absorbants sont composés en fonction de la géométrie de chaque local et la fonction qui l’occupe. Le bois y prend une part importante, sous forme de plancher, lambris et correcteurs acoustiques.

 

Un défi environnemental et technologique

Le choix des matériaux et les techniques mises en place pour l’Aile de Launoit ont fait l’objet d’une réflexion globale afin d’optimiser le bilan environnemental à  long terme tant au niveau de la construction (énergie grise, recyclabilité, bilan carbone, durabilité), que des consommations énergétiques (CO2, SO2, eau,…). La conception novatrice permettra d’obtenir un bâtiment labélisé « basse énergie » et presque autonome tant au niveau de ses ressources que ses rejets.

Les études ont été axées autour des thèmes suivants :

  • optimisation de chaque paroi selon son orientation et sa destination avec calcul du type et de l’épaisseur de chaque isolant, intégration d’une façade double peau
  • optimisation de l’étanchéité à l’air du bâtiment et étude des noeuds constructifs pour limiter les ponts thermiques
  • récolte des eaux pluviales pour les toilettes et l’entretien
  • mise en place d’une station d’épuration autonome avec puits de dispersion pour le traitement de toute les eaux usées,
  • installation d’une ventilation mécanique contrôlée à récupération d’énergie (80%) couplée à un by-pass motorisé pour le free-cooling estival,
  • installation de panneaux solaires thermiques pour la production d’eau chaude sanitaire,
  • éclairage de type LED pour limiter les consommations et augmenter la durée de vie des équipements,
  • gestion centralisée des technique tant au niveau du chauffage que de l’éclairage
  • pré-équipement photovoltaïque pour l’installation ultérieure de panneaux et l’obtention du label « zéro énergie » pour la partie logement.
  • Partager cet article

Nos partenaires