Marivaux (Una|a) : une résidence pour étudiants et jeunes actifs qui donnera un nouveau souffle à la rue Saint-Pierre

  • image
  • image
  • image
  • image
  • image
  • image
  • image
  • image
  • image
  • image
  • image
  • image
  • image
  • image
  • image
  • image
  • image
  • image
  • image
  • image
  • image

La rue Saint-Pierre est située au cœur de Bruxelles, entre le boulevard Emile Jacqmain et le boulevard Adolphe Max. C’est une rue étroite que peu de gens connaissent, principalement bordée par les murs arrière et les entrées de service d’immeubles qui ont réservé leurs façades plus prestigieuses aux boulevards environnants. Cela s’applique également à la parcelle centrale sur laquelle le projet Marivaux est réalisé. Le site fait partie d’un ancien complexe cinématographique, dont l’entrée principale se trouvait sur le boulevard Adolphe Max. La conception d’Una|a vise à établir un dialogue équilibré entre les éléments anciens classés et les ajouts contemporains mûrement réfléchis.

 

Naissance et disparition d’un cinéma de ville

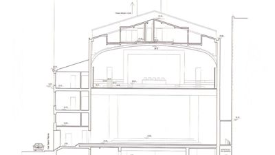
Le cinéma Marivaux fut construit en 1923 pour une filiale locale de la ‘Société des Grands Palais d’Attraction Pathé Frères’ et ouvrit ses portes en 1924. À l’origine, le complexe se composait d’un majestueux cinéma de 17 m de haut avec 1700 sièges et 2 balcons. Un foyer prestigieux avec une entrée richement ornementée reliait le Marivaux au boulevard Adolphe Max. Entre la grande salle de cinéma et la rue Saint-Pierre, une annexe de 6 m de profondeur, 45 m de longueur et 4 étages abritait un certain nombre de fonctions logistiques : bureaux, espaces de réception supplémentaires, appartement et garage du directeur, circulations verticales et entrée secondaire. La façade, le hall d’entrée et l’escalier principal ont été traités avec un respect surprenant et ont conservé longtemps leur grandeur caractéristique. À tel point que certaines parties ont été classées dans les années ’90, après que le dernier exploitant eut quitté le bâtiment.

Au cours du 20e siècle, le complexe Marivaux connut la même évolution que de nombreux autres cinémas construits dans les années ‘20. La grande salle de cinéma fut d’abord divisée horizontalement en deux au niveau du deuxième balcon. Plus tard, une salle plus petite fut aménagée en sous-sol. Ensuite, le premier balcon fut également isolé de la grande salle et divisé en deux pour créer deux autres petites salles de cinéma. Des salles supplémentaires furent également ajoutées entre les grands axes de circulation. Une évolution qui s’explique par la tendance du monde du cinéma à produire et à programmer de plus en plus de films, entraînant un roulement hebdomadaire dans la programmation et une inévitable transformation des grandes salles en plus petites, le public potentiel d’un film donné diminuant avec le temps.

Comme beaucoup d’autres authentiques cinémas de ville, le Marivaux fut victime du succès écrasant de complexes cinématographiques situés en périphérie, plus grands et plus facilement accessibles. Il ferma définitivement ses portes au début des années ‘90. Depuis lors, une partie du site a été annexée à l’hôtel Marivaux et certaines petites salles de cinéma ont été transformées en salles de séminaire. Cependant, le volume de la grande salle était trop important et toute transformation trop coûteuse pour lui donner une nouvelle destination complémentaire à ce moment-là. Elle a donc été abandonnée à elle-même, ce qui a entraîné un délabrement progressif et des actes de vandalisme. Tous les décors et le sol furent enlevés pour faire place à un parking temporaire. Heureusement, les éléments patrimoniaux classés étaient encore en assez bon état pour les intégrer dans l’ambitieux projet de reconversion.

Une revitalisation de la rue Saint-Pierre

Le ‘projet Marivaux’ d’Una|a consiste en la création d’une nouvelle résidence pour étudiants et jeunes actifs, un programme parfaitement adapté à la revitalisation de la rue Saint-Pierre, car le grand nombre de résidents et leurs habitudes de vie 24/24 créent une dynamique saine et vivante de jour comme de nuit. Avec la revitalisation de cette partie de la rue Saint-Pierre, la restauration de la façade classée et la mise en valeur de l’architecture contemporaine permettront de réintégrer cette partie oubliée de Bruxelles dans l’ambitieux programme de revitalisation de la ville. Le projet apporte également une solution au manque criant de logements étudiants à Bruxelles.

Un dialogue franc et respectueux entre passé et présent

Le projet vise à créer un dialogue enrichissant entre les éléments classés restaurés et les ajouts contemporains, en combinant les deux langages formels dans un ensemble stimulant tout en les laissant clairement identifiables. La démolition du volume délabré de l’ancienne salle de cinéma (illu 1) permet de créer une abondance de lumière naturelle et une sensation d’espace dans l’îlot autrefois si densément bâti. Afin d’éviter toute forme de façadisme, il a été décidé à un stade précoce non seulement de restaurer les éléments classés, mais aussi de conserver intégralement l’annexe de 6 m de profondeur (dont ils faisaient partie à l’origine), qui convenait parfaitement pour accueillir certaines des nouvelles fonctions (telles que des chambres d’étudiants et certains espaces communs). Par conséquent, la façade, le hall d’entrée et l’escalier principal monumental conservent une relation cohérente et signifiante avec les nouveaux éléments construits qui y sont reliés (illu 2).

Le nouveau volume, qui contient la majeure partie du programme, est placé à côté et au-dessus des espaces restaurés, avec un axe de circulation central à l’interface entre la partie existante et le nouveau bâtiment. À l’arrière du nouveau bâtiment, un jardin donne à l’intérieur d’îlot un caractère vert et biodiversifié (illu 3).

Par respect pour la façade classée, le nouveau volume est implanté légèrement en retrait (environ 1,80 m). En prenant ainsi du recul, au sens propre comme au sens figuré, on crée une hiérarchie qui évite que les façades restaurées soient visuellement noyées. L’espace libre qui est créé entre les circulations et la partie existante est idéal pour les zones fonctionnelles des espaces communs et des chambres d’étudiants (illu 4).

Le huitième étage est encore davantage en retrait, créant un équilibre optimal entre la façade classée et le nouveau volume situé par-dessus. De plus, l’ensemble s’intègre ainsi harmonieusement au profil en escalier de l’hôtel Le Plaza voisin (illu 5).

Prendre soin de la façade 

La façade du nouveau volume est constituée d’une succession aléatoire de lamelles verticales perforées disposées selon un motif abstrait, dont l’aspect contraste fortement avec la composition classique de pleins et de vides de la façade classée. Les fenêtres des chambres d’étudiants font partie de la deuxième peau du volume. Leur placement discret derrière les lamelles verticales visuellement dominantes évite d’afficher un contraste entre les ouvertures dans la façade classée et la nouvelle façade (illu 6).

Les lamelles verticales sont claires et translucides. Elles apportent une touche de fraîcheur à la rue Saint-Pierre, permettant au projet de contribuer également à la revalorisation de l’espace public.

La façade classée a été soigneusement restaurée dans le respect des intentions architecturales de Lorant-Heilbron et E. Lambert, le duo français qui a conçu le projet original. Bien que de nombreux éléments d’origine fussent dans un état suffisamment bon pour être restaurés, la plupart des châssis se sont avérés trop endommagés. Sur la base d’une étude détaillée des cadres et des fixations d’origine, ils ont été remplacés par des répliques quasi identiques, équipées d’un double vitrage mince pour réduire les pertes d’énergie.

Une reconversion préservant la pertinence du passé

Bien que le nouveau programme soit très différent de la fonction initiale du complexe, il se marie parfaitement avec l’allure majestueuse de la façade classée. Conformément à l’intention d’éviter le façadisme, une grande attention a également été accordée à la restauration des espaces intérieurs, tels que le hall d’entrée et l’escalier principal monumental, afin d’établir une relation spatiale logique avec le nouveau programme.

Restauré, le hall d’entrée double hauteur retrouve sa fonction d’origine. Les deux escaliers monumentaux sont également restaurés et mènent à plusieurs espaces communs. La salle d’étude collective, au-dessus de l’entrée, est accessible par l’escalier de gauche, tandis que la salle de fitness l’est par l’escalier de droite. Situés au rez-de-chaussée, la salle du petit-déjeuner et le salon donnent sur le jardin. Ces espaces sont accessibles directement depuis le hall d’entrée, qui a été restauré dans son état d’origine, avec des tons chauds sur les murs et un beau plancher en granito. Des luminaires contemporains audacieux et un mobilier moderne soulignent la sobriété de l’intervention historique.

Des lieux de rencontre accueillants ouverts vers le jardin

Depuis le hall d’entrée, quelques marches mènent les résidents à l’extension contemporaine, où ils peuvent profiter d’espaces polyvalents et d’un coin salon donnant sur le jardin.

Les espaces de rencontre de la résidence ont été conçus en combinant chaleur et minimalisme. Le gros œuvre en béton a été laissé apparent. Ses textures expressives dialoguent avec l’aspect moucheté et les motifs en chevrons qui ornent les sols. Un mélange hétéroclite de meubles et de menuiserie sur mesure confère à l’espace un esprit chaleureux et convivial. Des îlots de plafond en jute assurent le confort acoustique, tandis que des grappes de luminaires décoratifs complètent le tableau.

Les espaces de rencontre donnent directement sur le jardin. Aménagé sur le toit du parking souterrain, ce dernier est composé de grandes et hautes jardinières séparées par un sentier. Les jardinières surélevées contiennent suffisamment de terre pour planter des arbustes, des buissons et quelques arbres de taille moyenne, permettant ainsi à un petit écosystème local de se développer en cœur d’îlot. Le sentier mène à plusieurs bancs intimistes, où les résidents peuvent profiter d’un moment de repos et se relaxer.

 

Source Una|a

  • Partager cet article

Nos partenaires