Projet Bervoets à Forest : une innovation durable par DDS+ et Bervoets

  • image
  • image
  • image
  • image
  • image
  • image
  • image
  • image
  • image
  • image
  • image
  • image
  • image
  • image
  • image
  • image

Au cœur de Forest, un vent de renouveau souffle sur le quartier grâce à l'audacieux projet Bervoets, conçu par le renommé cabinet d'architectes bruxellois DDS+. En collaboration avec Bervoets, DDS+ redéfinit l'espace urbain en introduisant 38 logements sociaux lumineux et durables, marquant ainsi un tournant dans l'approche de l'habitat social.

La Zuiderhaard et la Société de Logement de la Région de Bruxelles-Capitale (SLRBC) ont récemment célébré l'inauguration officielle de 38 nouveaux logements sociaux ainsi que des futurs locaux de l'association sans but lucratif Lire & Ecrire. Le projet Bervoets, situé rue Marguerite Bervoets à Forest, représente l'une des nombreuses acquisitions clés en main de la SLRBC et a été conçu par le bureau d'architectes bruxellois DDS+.

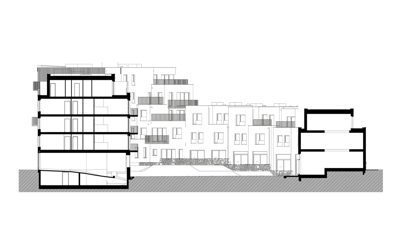
Le projet Bervoets se trouve dans un ancien quartier industriel en pleine évolution, à proximité de la Maison Communale et du site de l'Abbaye de Forest. Il s'intègre sur le site d'entrepôts et d'ateliers abandonnés et délabrés, formant un triangle entre la rue des Combustibles, la rue du Texas et la rue Marguerite Bervoets. Le quartier est bien desservi par les transports en commun et offre de nombreux commerces à proximité.

Ces dernières années, un grand nombre de bâtiments de logements sociaux ont été rénovés ou développés dans le bas de Forest, un quartier en plein essor. Avec ce projet clé en main de 38 logements, la SLRBC et la Zuiderhaard étendent leur patrimoine avec des habitations écoénergétiques de haute qualité qui répondent aux défis du changement climatique, de la consommation d'énergie et du confort des résidents.

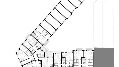
Les 38 logements sociaux du projet Bervoets se répartissent entre un immeuble de 31 appartements et 7 maisons unifamiliales. Le projet inclut également 45 places de parking pour vélos et 25 places de stationnement pour voitures et motos.

La plupart des logements disposent de deux chambres, mais le projet propose également des studios, des appartements d'une chambre ainsi que des maisons de trois ou quatre chambres, répondant ainsi au mieux aux besoins de logement tant des célibataires que des familles.

Les logements sont spacieux, lumineux, fonctionnels et faciles à aménager. Tous bénéficient d'un espace extérieur, avec au moins un balcon ou une terrasse, et d'un jardin privé pour tous les logements au rez-de-chaussée. Tous les appartements disposent également d'une cave.

L'ensemble du site présente un caractère ouvert et verdoyant, avec un grand espace vert commun. Cet espace, composé de cours et d'un jardin, constitue le cœur du projet et est directement accessible depuis tous les logements. L'eau de pluie des toits sera en partie récupérée dans une citerne et utilisée pour l'entretien de ces espaces verts.

Le design architectural est contemporain, tant en termes de matériaux que de disposition des volumes et de retraits de façades. Les bâtiments répondent à des normes de performance énergétique élevées. Ils sont très bien isolés et consomment donc peu d'énergie, ce qui est un avantage pour les nouveaux locataires dans le contexte actuel de défis énergétiques et climatiques.

La Secrétaire d'État bruxelloise au Logement, Nawal Ben Hamou, se réjouit qu'un projet ambitieux comme Bervoets ait pu voir le jour : «

  • Partager cet article

Nos partenaires