Singulière petite maison de ville avec ossature et bardage bois

  • image
  • image
  • image
  • image
  • image
  • image
  • image
  • image
  • image
  • image
  • image
  • image
  • image
  • image
  • image

C’est dans le centre historique de Jodoigne que l’Atelier d’architecture Mathen est intervenu récemment pour concevoir une maison sur une minuscule parcelle triangulaire. La maison initiale était déjà singulière par son gabarit ne correspondant ni au bâtiment de gauche ni à celui de droite. Avec son unique façade bardée de bois, la nouvelle réalisation contraste avec les maisons en pierre classées au patrimoine que l’on trouve aux alentours.

 

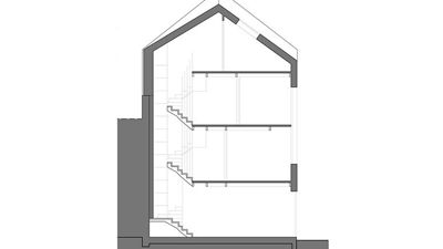
22 mètres carrés au sol. C’est la superficie du triangle coincé entre deux habitations dans cette rue étroite de Jodoigne. Les mitoyennetés ne laissent qu’une possibilité de prise de jour en façade avant et la maison qui occupait l’espace avant sa démolition n’était constituée que d’un rez-de-chaussée plus un étage alors que les immeubles voisins sont en rez+2.

Pour le jeune couple ayant fait appel à ses services, Jean-Christophe Mathen imagine un projet visant à rendre une cohérence aux gabarits en présence par une harmonisation avec ceux-ci (liaison des niveaux de gouttières et de faîtières), offrant au final 84 mètres carrés de surface habitable.

D’expression volontairement sobre, l’architecture proposée cherche à ne pas être ostentatoire mais à montrer par quelques éléments simples la particularité du site. L’expression volumétrique de cette transformation, par les jeux de plein/vide, alignement-retrait donne un caractère résolument contemporain à l’habitation sans pour autant se laisser voir comme objet de création.

 

Ossature et bardage bois

Malgré le surcoût qu’entraîne habituellement une ossature bois, ce mode constructif fut choisi dans le but d’économiser sur la surface habitable. On retrouve le bois en façade, avec un bardage vertical ajouré de teinte brun clair (bois indigène traité thermiquement pour maintenir sa teinte naturelle). Même s’il a entraîné quelques discussions avec l’Urbanisme, ce traitement est rendu possible par la singularité du lieu ne présentant pas de front d’alignement commun aux autres constructions.

Les baies suivent le décalage existant entre les deux bâtiments contigus pour servir d’articulation architecturale au sein de la rue, à l’angle formé justement à cet endroit par les portions de rue droite identifiables.

Ce positionnement ainsi que le bardage ajouré présent devant la porte d’entrée vitrée permettant de conférer une intimité nécessaire aux activités menées au rez de l’habitation transformée.

La grande baie des espaces séjour est l’expression première de cette habitation. Reprenant les gabarits et proportions des devantures commerciales présentes, elle réinterprète celles-ci en lui conférant une nature plus domestique par sa verticalité et son positionnement par rapport au trottoir en recherchant également à harmoniser les postions des linteaux avec les baies des bâtiments voisins présentes aux étages de ces bâtiments de hauteur variable en un mouvement continu.

Les plus petites baies (séjour et chambre) reprennent la dominante verticale et un positionnement en superposition les reliant visuellement à celles présentes sur la façade du bâtiment de droite.

  • Partager cet article

Nos partenaires