Transformation d'une grange en salle de sport polyvalente

  • image
  • image
  • image
  • image
  • image
  • image
  • image
  • image
  • image
  • image
  • image
  • image

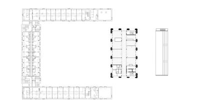
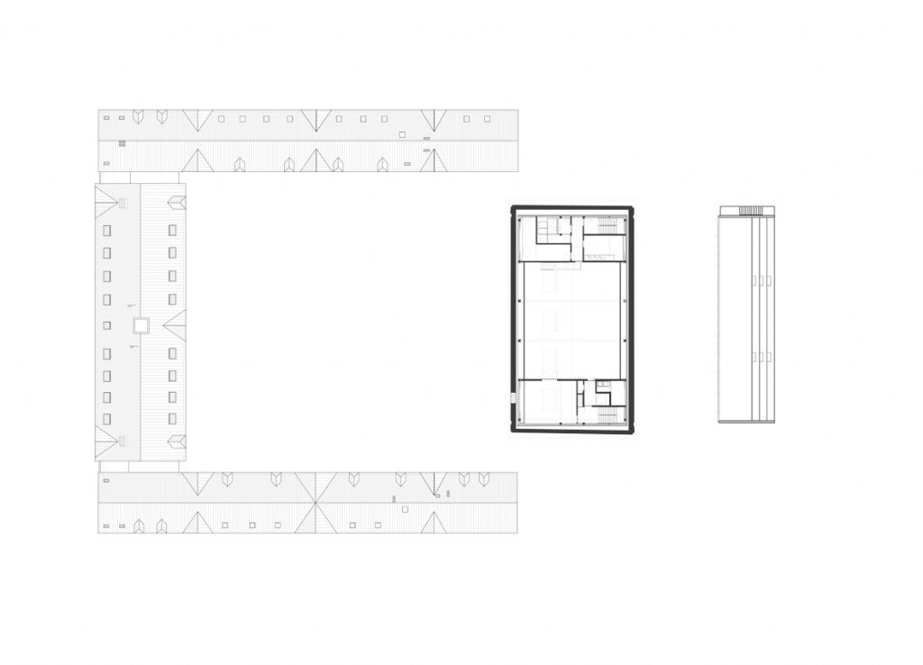
Au cours des années ‘70, une ancienne dépendance du château des Princes de Mérode, à Loverval (Charleroi), avait été transformée pour accueillir le centre sportif ADEPS. Le projet de transformation consistait en la rénovation d'une des trois ailes d'hébergement et en la reconfiguration complète du volume de la grange pour y accueillir un réfectoire, des locaux administratifs et une salle de sport polyvalente. La conception de ce projet a été confié par le maître d'ouvrage, la Fédération Wallonie-Bruxelles, au bureau Label Architecture

 

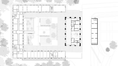
L'imposante bâtisse a été intégralement vidée de l'intérieur pour n'en laisser que les murs extérieurs et le toit. Les 16 arcs en plein-cintre – qui n'étaient pour le bâtiment existant qu'un simple modelé de façade dans des murs pleins – ont été percés de manière à ouvrir les nouveaux espaces à la lumière naturelle. Le nouveau programme s'est inséré dans cet ensemble existant à la manière d'une "boîte dans la boîte" autonome tant en structure qu'en enveloppe. Le nouveau volume est habillé d'un mur-rideau en aluminium anodisé noir légèrement en retrait des murs existants. Il emprunte les codes de la tour de bureaux moderniste pour nourrir la confrontation avec l'architecture traditionnelle qui l'abrite.

Face à la grange, un nouveau volume bas a été créé pour abriter garages et ateliers. Adossé aux terrains de beach volley, sa toiture en forme les gradins. Sa longue façade répond au volume construit dans la grange par l'adoption du même mur-rideau. La nouvelle rue intérieure ainsi créée organise un jeu de réflexion infinies entre deux façades par l'usage de vitrages miroir.

 

Source Label Architecture

  • Partager cet article

Nos partenaires