Un second crématorium en Région bruxelloise (A.M. Souto de Moura / Mathen)

  • image
  • image
  • image
  • image
  • image
  • image
  • image
  • image
  • image
  • image
  • image
  • image
  • image

La Société Coopérative Intercommunale de Crémation (SCIC) a présenté hier à la presse, en présence des architectes Eduardo Souto de Moura (Prix Pritzker 2011) et Jean-Christophe Mathen, le crématorium qui sera construit dans le cimetière d’Evere. Si tout va bien, il devrait être inauguré fin 2017.

La  crémation a de plus en plus de succès dans notre pays. On estime actuellement à 55% la part de la crémation en Belgique, et ce pourcentage monte à 70% en Région bruxelloise. C’est dire si la construction d’un second site de crémation dans la région (à côté de celui d’Uccle, qui date de 1935) s’imposait. Fort logiquement (questions de mobilité, disponibilité du terrain, accessibilité, faible environnement urbain, …), c’est au nord de la capitale et dans un cimetière, celui d’Evere, que la SCIC a décidé de l’implanter.

 

Concours

Après une longue procédure, soutenue par le maître architecte, c’est l’association « Souto de Moura / Mathen » qui l’a emporté. 47 candidatures, dont 44 jugées administrativement valables, avaient été rentrées, signe de l’engouement suscité par le projet. Parmi celles-ci, cinq furent retenues dans un premier temps par le jury :  Daniel Dethier/CSD, Daniel Delgoffe, Baukunst, Coton/Lelion/Nottebaert & Kristoffel Boghaert et Souto de Moua/Mathen. C’est donc cette dernière qui fut retenue in fine, notamment en raison de l’intégration du projet dans le paysage.

 

L’équipe lauréate

Eduardo Souto de Moura n’est plus à présenter. Prix Pritzker 2011, il n’en est pas à son premier crématorium puisqu’il a signé celui de Courtrai en 2012. Jean-Christophe Mathen, architecte belge basé dans le Brabant wallon, fut l’un de ses étudiants à Lausanne. La connivence d’alors entre les deux hommes fut la raison qui poussa Jean-Cristophe Mathen à faire appel à son ancien professeur pour ce projet. L’architecte portugais, bien qu’auréolé du Prix Pritzker, n’a rien d’une star architecte. Son sens de l’humain en fait un partenaire fort apprécié. Pour lui, concevoir un crematorium, ou un musée, est une opportunité qui permet de réfléchir à l’architecture, pour inventer une nouvelle typologie. « Il faut savoir résister à la tentation de faire une église mais on ne peut pas non plus faire un garage ». Il faut savoir faire des choix. « Je n’aime pas les édifices dont on pense qu’ils peuvent répondre à toutes les situations », explique-t-il.

 

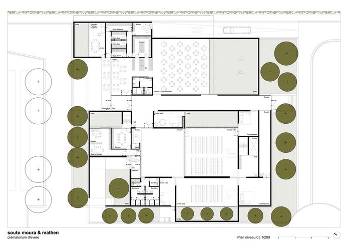
Le bâtiment

Les maîtres d’ouvrage souhaitaient une qualité architecturale sous la forme d’une intégration maximale dans le paysage et le respect dû à ce lieu unique. Déjà en 2012, le crématorium de Courtrai se fondait dans le terrain, se faisant discret. Ici aussi, l'édifice en béton prend la mesure du lieu, bordé d'une frange verte, protégeant l'espace du recueillement. L'entrée se fait sur l'angle, au croisement de l'axe principal du cimetière et d'un chemin, au travers d'un patio, auprès d'une fontaine. L'accès, en légère déclivité, convie familles et proches. Le patio se fait préface, préambule propice à s'inscrire dans le recueillement. L'espace accueille, dessert les salles de cérémonie baignées de lumière naturelle, pouvant s'unifier avec le foyer, pour les grandes assemblées.

Le bâtiment est organisé autour des quatre fonctions essentielles d’une telle infrastructure : la cérémonie proprement dite, une partie horeca, la technique (les fours) et une partie administrative. Un aspect primordial du concept est la circulation aisée des flux de personnes et des flux techniques.

Interrogé sur ses références architecturales pour ce projet, Souto de Moura répond sans hésiter : «  la maison à patios de Mies van der Rohe ».

  • Partager cet article

Nos partenaires