Une ruine emballante

  • image
  • image
  • image
  • image
  • image
  • image
  • image
  • image
  • image
  • image
  • image

Certains diront qu'il faut être Anglais pour faire ce genre de choses... Toujours est-il que cette rénovation d'un genre particulier a valu aux architectectes Kate Darby et David Connor le prix de The Architects Journal dans la catégorie "Petits projets" (moins de 300 000 euros). Pour un budget d'environ 187 000 euros, ils sont conservé une ruine dans son jus et l'ont soigneusement emballée pour en faire un studio.

 

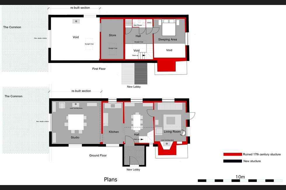
Dans un coin perdu de la campagne anglaise, non loin du Pays de Galles, un pavillon datant du 17e siècle. Sur le terrain, d'anciennes étables complètement en ruine.

La stratégie adoptée par les architectes n'a pas été de restaurer ou de rénover le bâtiment vieux de 300 ans mais de le conserver en l'emballant dans une nouvelle enveloppe très performante.  Ce qui veut dire que l'on a souvent deux toitures et deux murs, les anciens et les nouveaux. La ruine a été intégralement préservée, y compris le lierre, un nid abandonné... et la poussière.

«Ce qui est particulier dans ce projet, c’est le choix extrême qui a été fait de tout préserver, souligne l'architecte. Au départ, nous pensions qu’il serait préjudiciable de perdre la construction d’origine et peu à peu nous avons compris que la valeur de ce projet résidait dans la conservation extrême.»

La nouvelle enveloppe est constituée d'une structure métallique, de bois massif et d'un isolant. Les fenêtres de toit sont en triple vitrage tandis que celles dans les murs se contentent de double vitrage, venant chaque fois doubler une ancienne baie. Le bardage de la nouvelle structure est en tôle ondulée noire, traditionnellement utilisée pour les bâtiments agricoles dans la région.

La structure super isolée est chauffée par deux poêles à bois, tandis que des panneaux photovoltaïques fournissent l'électricité. Sous le pan de toiture exposé au sud court un serpentin long de 100 m qui fonctionne comme collecteur solaire pour chauffer l'eau en été. 

Actuellement, le bâtiment est aménagé en studio d'architecte. Il a cependant été conçu pour être facilement transformé en habitation 3 chambres.

Source The Architect's Journal

  • Partager cet article

Nos partenaires