Woluwe Valley : des bureaux bientôt transformés en appartements

  • image
  • image
  • image
  • image
  • image

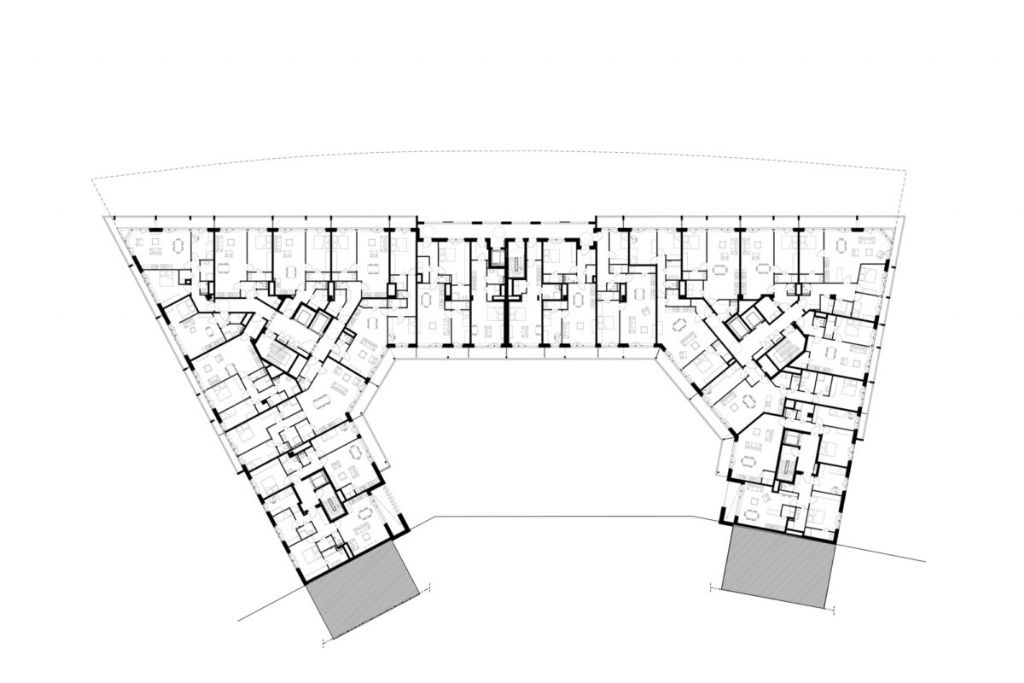
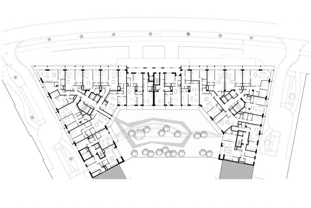
A la demande du maître d'ouvrage Urbicoon, le bureau DDS+ a réalisé une mission complète d'architecture et a conçu la rénovation et le réaménagement total d'un ancien immeuble de bureaux à Woluwé Saint-Lambert. Le permis d'urbanisme de ce projet d'envergure, baptisé Woluwe Valley, vient d'être obtenu.

 

Un ancien immeuble de bureaux sur l'avenue Marcel Thiry, à Woluwé Saint-Lambert, va entamer sa seconde vie. Urbicoon souhaitait transformer ce bâtiment de près de 19 000 m² en un immeuble pouvant accueillir une centaine d'appartements.

La structure du bâtiment sera préservée, mais l'ensemble sera entièrement rénové et réaménagé. Il contiendra au final121 logements confortables. Une grille en béton architectonique sur la façade permettra d'adapter l'image du bâtiment à la nouvelle fonction résidentielle et d'offrir de beaux balcons aux nouveaux habitants. Une promenade sera créée le long des commerces et de la salle de sport situés au rez-de-chaussée. L'immeuble sera également pourvu de 132 places de parking en sous-sol.

 

 

Source DDS+

  • Partager cet article

Nos partenaires