Zampone Architecture et switch architecture studio transforment un ancien garage en chambre d'enfant lumineuse

  • image
  • image
  • image
  • image
  • image
  • image
  • image
  • image
  • image
  • image
  • image
  • image
  • image

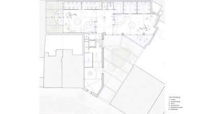
Dans le bâtiment d'un ancien garage automobile, Zampone Architectuur & Wissel Architectuur Studio conçoivent une crèche pouvant accueillir 50 enfants, dans le cadre d’un concours organisé par le Bouwmeester bruxellois. Le projet mise sur la préservation des structures massives de l’ancienne garage, tout en supprimant partiellement la toiture. Il en résulte deux patios caractéristiques, où les portiques en béton prennent une allure sculpturale.

Le garage en question, dissimulé dans un recoin de la rue Brichaut, au cœur du quartier dense de Brabant, se dévoile peu depuis la rue. Une façade étroite s’érige sur un volume bas avec une porte. Cependant, la parcelle s’étend vers l’arrière, et la façade étroite de la rue se transforme en un imposant bâtiment en forme de T.

L’équipe de conception transforme la partie donnant sur la rue en une aile d’entrée regroupant les espaces de service. À l’intersection, les visiteurs montent ou descendent d’un demi-niveau pour accéder à l’une des quatre unités de vie de la crèche. À l’intérieur de cette structure régulière, des volumes de rangement indépendants et des cloisons en verre finement disposées façonnent les étages en un espace de crèche fonctionnel.

Autour de la structure en T, un tout autre univers prend forme. Dans un cadre constitué de colonnes et de poutres en béton, l’équipe, en collaboration avec le paysagiste Jan Minne, aménage deux jardins-patios luxuriants. À l’arrière, un jardin clos et intime jouxte directement les espaces de vie des tout-petits et leur est exclusivement réservé. Le jardin le plus spectaculaire suit une pente douce depuis l’entrée vers les espaces de la crèche en contrebas, auxquels il est relié par de larges baies vitrées.

Au sein d’un quartier fortement urbanisé, enfants et visiteurs ont ainsi accès à un véritable fragment de nature sauvage. Subtilement, la végétation envahit le béton, visible depuis la rue, en attendant que d’autres projets du quartier adoptent une approche similaire.

Source Zampone Architectuur

  • Partager cet article

Nos partenaires