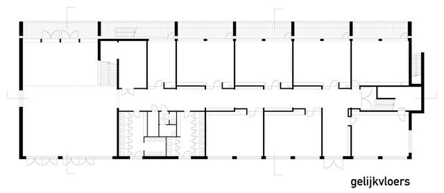
Ecole De Regenboog à Grimbergen
- Grimbergen (Vlaams Brabant)
- Regarder sur Google Maps
Souhaitez-vous rester au courant de l'actualité de l'architecture en Belgique ?
Inscrivez-vous à notre infolettre hebdomadaire.
Pas encore de compte ? Inscrivez-vous ici
Mot de passe oublié? Réinitialiser le mot de passe