Extension Chapelle Musicale Reine Elisabeth
- Waterloo (Waals Brabant)
- Regarder sur Google Maps
Alors que le bâtiment historique représente 1.850 m2, comprenant principalement :
- 8 anciens studios de logement et répétition
- le Salon de la Reine
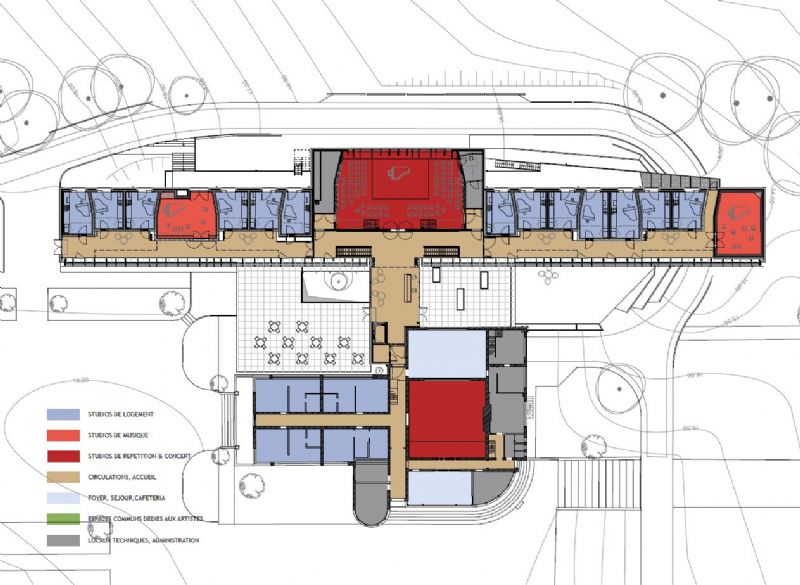
L’Aile de Launoit double l’espace à 3.500 m2 en ajoutant essentiellement :
- 20 studios de logement supplémentaires permettant à la Chapelle Musicale d’accueillir un plus grand nombre d’artistes en résidence ;
- un grand studio de musique offrant non seulement un espace de répétition, de concert mais aussi un réel studio d’enregistrement équipé par notre partenaire le groupe de production et d’édition musicale Outhere ;
- 2 studios de musique à disposition des professeurs, musiciens et ensembles résidents ou en concert ;
- un Artists Village (restaurant, cuisine, espace lounge et de détente) offrant l’environnement de qualité nécessaire à la réalisation des objectifs de la Chapelle Musicale.

