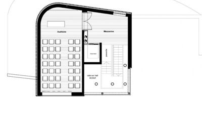
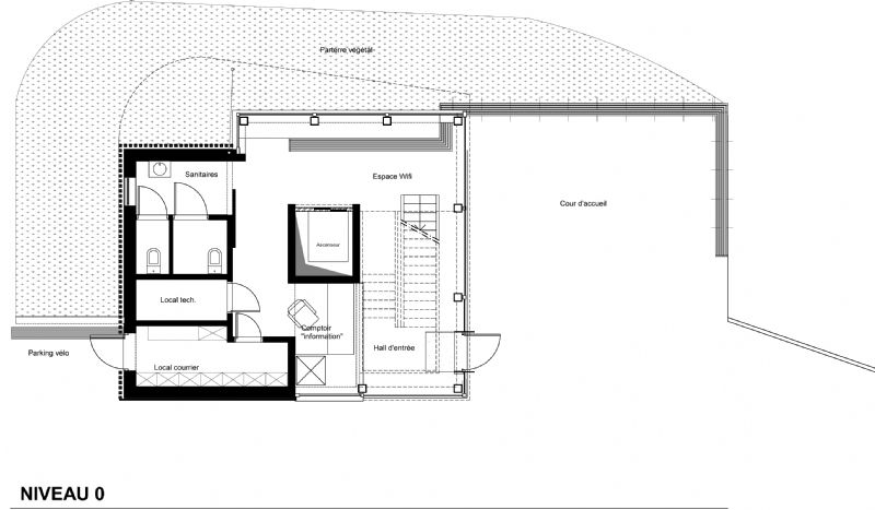
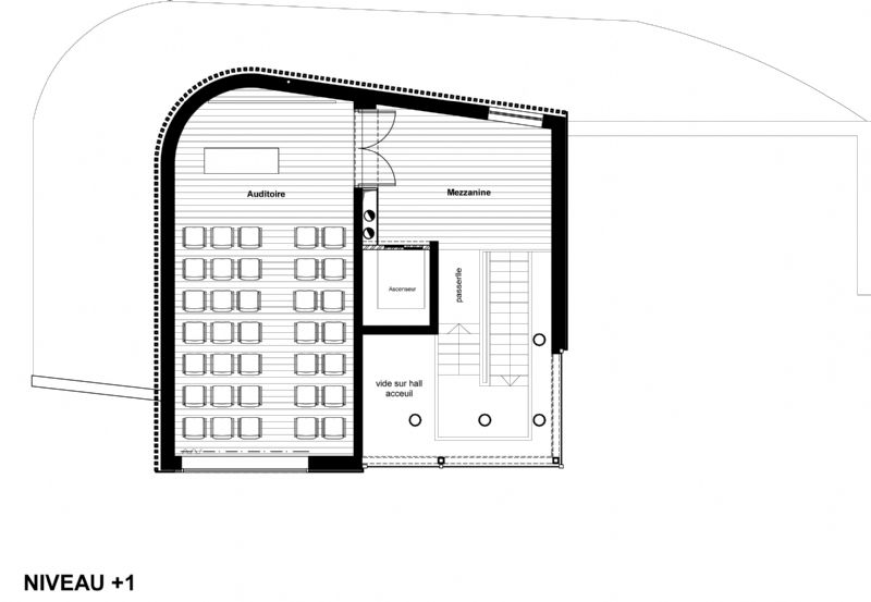
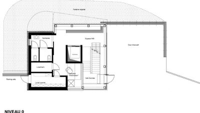
Pavillon d'accueil de L'ULg au Sart-Tilman
- Liège (Luik)
- Regarder sur Google Maps
Souhaitez-vous rester au courant de l'actualité de l'architecture en Belgique ?
Inscrivez-vous à notre infolettre hebdomadaire.
Entrepreneur : Gros œuvre
Architecte
Fabricant : HVAC
Fabricant : Informatique
Fabricant : Ascenseurs
Pas encore de compte ? Inscrivez-vous ici
Mot de passe oublié? Réinitialiser le mot de passe