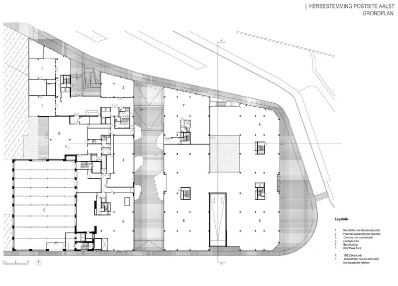
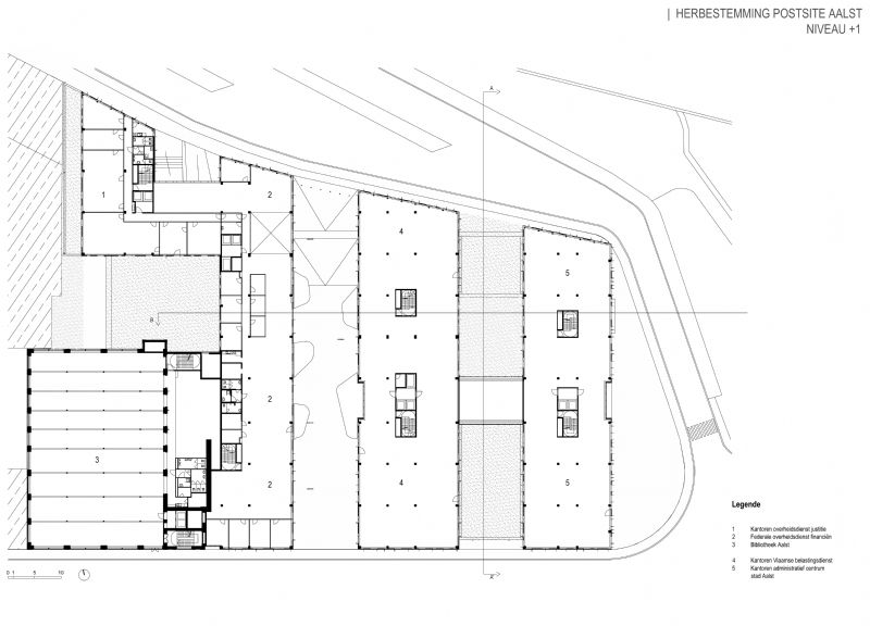
Réaffectation site de la Poste, Aalst
- Aalst (Oost-Vlaanderen)
- Regarder sur Google Maps
Souhaitez-vous rester au courant de l'actualité de l'architecture en Belgique ?
Inscrivez-vous à notre infolettre hebdomadaire.
Fabricant : Planchers
Fabricant : Sanitaire
Maître d'ouvrage
Pas encore de compte ? Inscrivez-vous ici
Mot de passe oublié? Réinitialiser le mot de passe