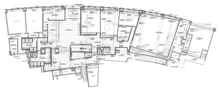
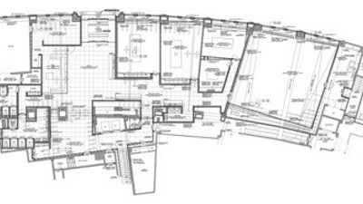
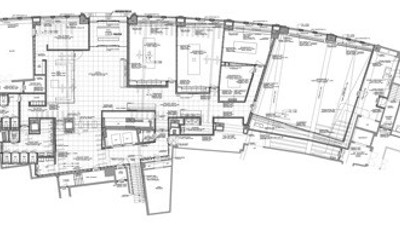
Réaménagement hall d'entrée Belgacom
L'aménagement de la zone d'entrée avec le meetingcenter annexe datait du début des années 80 et ne répondait plus aux normes et souhaits actuels. La zone à réaménager fut entièrement isolée. Une enveloppe sous la forme d'une cloison noire fut posée tout autour, délimitant clairement la zone au milieu d'un ensemble plus vaste. A l'intérieur de cette 'boîte' ont été placés différents volumes (comptoir, salles de réunions, cellule sanitaire, cofee-corner, ...). L'espace entre les volumes fait office d'espace de rencontre informel et s'adapte parfaitement à l'entrée. On crée de cette manière un semble plus grand tout en donnant au hall d'entrée l'allure désirée.

