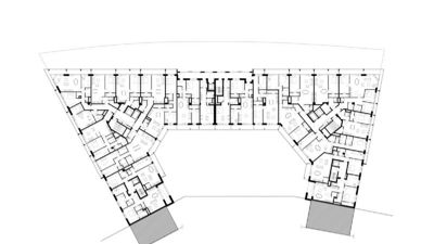
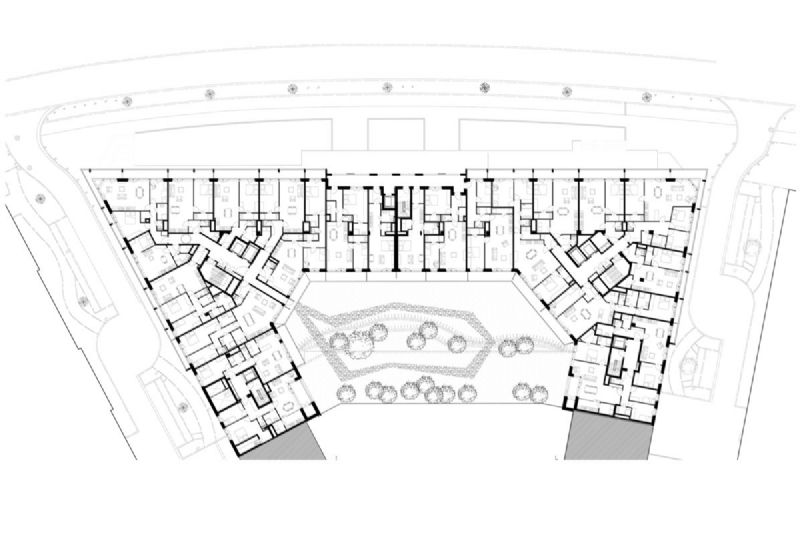
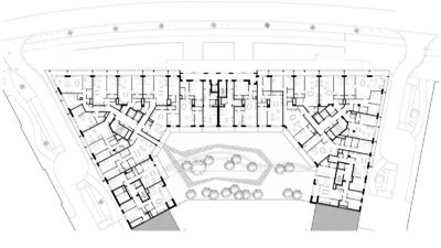
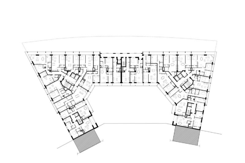
Woluwe Valley
Un ancien immeuble de bureaux sur l'avenue Marcel Thiry, à Woluwé Saint-Lambert, va entamer sa seconde vie. Urbicoon souhaitait transformer ce bâtiment de près de 19 000 m² en un immeuble pouvant accueillir une centaine d'appartements. Le promoteur a confié la conception de la rénovation et du réaménagement à DDS+.
La structure du bâtiment sera préservée, mais l'ensemble sera entièrement rénové et réaménagé. Il contiendra au final121 logements confortables. Une grille en béton architectonique sur la façade permettra d'adapter l'image du bâtiment à la nouvelle fonction résidentielle et d'offrir de beaux balcons aux nouveaux habitants. Une promenade sera créée le long des commerces et de la salle de sport situés au rez-de-chaussée. L'immeuble sera également pourvu de 132 places de parking en sous-sol.
