a2o en OMGEVING winnen ontwerpwedstrijd voor nieuw crematorium Moretus in Antwerpen

  • image
  • image
  • image
  • image
  • image
  • image

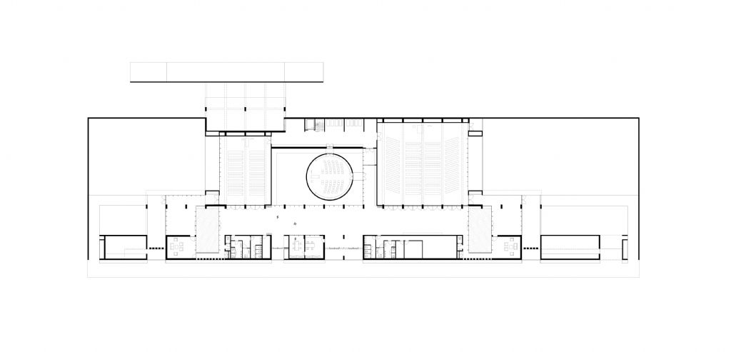
A2o en OMGEVING hebben samen de ontwerpwedstrijd gewonnen voor het nieuwe crematorium en het omliggende landschap aan de rand van de begraafplaats Schoonselhof in Wilrijk. De bouw van een nieuw crematorium zal het project beter laten integreren met de parkbegraafplaats, het meer klimaatbestendig maken en de biodiversiteit vergroten.  Het ceremoniële gebouw zal als een drijvend bakstenen schip in het omliggende waterrijke landschap worden geplaatst. Ook boydens engineering, Establs, ABO en Bureau De Fonseca maken deel uit van het winnende ontwerpteam. 

Het crematorium op begraafplaats Schoonselhof in Wilrijk is na vier decennia intensief gebruik dringend aan renovatie toe. Het huidige gebouw getuigt van een 'moderne' omgang met iets noodzakelijks. Het ligt hoog in het landschap, zelfbewust met zijn gezicht naar de hoofdweg en zijn rug naar het park. Het verkavelde en verharde terrein is destijds ontworpen om plaats te bieden aan de auto. Er is geen continuïteit in het landschap. Het crematorium staat op zichzelf en de omringende landschapsarchitectuur is beperkt tot wegen, paden, muren en parkeerplaatsen rond de gebouwen.

Met de vernieuwing van het Pontes Moretus-project wil het ontwerpteam naar eigen zeggen de ceremonie weer in onze culturele traditie verankeren, ze deel laten uitmaken van ons leven...kortom een levend crematorium creëren. 

“Met de bouw van een nieuw crematorium doet zich de kans voor om het project beter te integreren met de begraafplaats en ook om het project klimaatadaptief te maken en de biodiversiteit te vergroten. We krijgen de kans om het park op een belangrijk scharnierpunt te herstellen. Dit zal enerzijds gebeuren door de structuur van het park verder te zetten en anderzijds door voort te bouwen op het DNA van de plek.”

 

Het landschap centraal

Hierbij laten de ontwerpers zich inspireren door de omsloten tuin (hortus conclusus): een serene typologie die niet de architectuur maar het landschap centraal zet.  Een architectuur die geen ruimte inneemt, maar ruimte geeft. Het nieuwe volume plaatst zich daarom aan de rand van het park met zijn gezicht naar het park. Er ontstaat een nieuwe landschappelijke ruimte waarin voetgangers en auto's worden gescheiden en waarin stilte en sereniteit, die kenmerkend zijn voor de plek, weer centraal komen te staan.

Het ontwerp bouwt voort op een klimaatbestendig watersysteem, afgestemd op de huidige natuurlijke structuren van het Schoonselhof. De biodiversiteit van het waterrijke landschap, gekenmerkt door seringen, moerasbloemen, pijlkruid en helmbloem, krijgt op deze manier maximaal de ruimte en fungeert tegelijkertijd als infiltratiezone voor interne en omliggende gebieden.

 

Gebouw als een drijvend schip

Het nieuwe ceremoniegebouw wordt als een drijvend bakstenen schip in het landschap geplaatst. Het gebouw is laag en de natuur overheerst. Binnenin het volume schuift het landschap de ruimte in. Ingekaderd, als een tableau vivante. Ceremoniezalen zijn verbonden met patio's, zodat het afscheid zowel 'in' als 'uit' de structuur kan plaatsvinden. De structuur is gemaakt van natuurlijke materialen die licht en geluid temperen. De kleuren en texturen van de houten wanden, de ruwe bekistingszuilen, de Maaskeien in de gepolijste betonvloer creëren een ingetogen en warme omgeving.


Levend crematorium

“Met de renovatie van het crematorium op Schoonselhof willen we ons pleidooi voor een levend crematorium voortzetten. Architectuur biedt altijd een antwoord op maatschappelijke conventies, hetzij door ze te volgen, hetzij door ze uit te dagen. Ook de architectuur van de dood (begraafplaatsen, graven, crematoria...) is altijd een afspiegeling geweest van heersende ideeën over sterven en dood. Wij zijn ons nu nog meer bewust van de dynamiek die achter deze heersende opvattingen schuilgaat en ontwikkelen onze visie hierop graag verder in de context van het Schoonselhof, waar deze visie kan rijpen in een andere landschappelijke, stedelijke en sociale context”, besluit het ontwerpteam.

Bron a2o

  • Deel dit artikel

Onze partners