AG SOB Gent renoveert voormalig stationsgebouw tot kinderdagverblijf
In opdracht van het Departement Onderwijs en Opvoeding van de Stad Gent wordt het voormalig stationsgebouw aan de Forelstraat door het AG Stadsontwikkelingsbedrijf Gent gerenoveerd en uitgebreid tot het kinderdagverblijf 'De Bijendans' met 28 opvangplaatsen. Het bureau CH-Architecten uit Gent ontwierp de plannen.
In opdracht van het Departement Onderwijs en Opvoeding van de Stad Gent wordt het voormalig stationsgebouw aan de Forelstraat door het AG Stadsontwikkelingsbedrijf Gent gerenoveerd en uitgebreid tot het kinderdagverblijf 'De Bijendans' met 28 opvangplaatsen. Het bureau CH-Architecten uit Gent ontwierp de plannen.

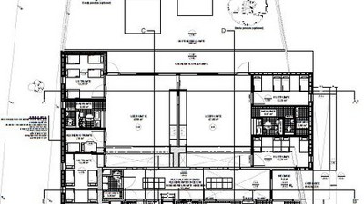
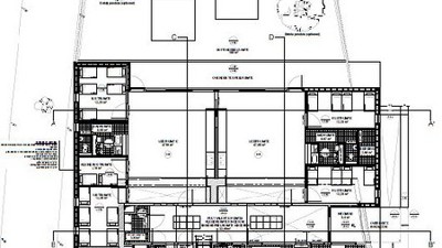
In een gelijkvloerse houten uitbreiding worden de functies voor het kinderdagverblijf voorzien, nl. de 2 leefruimtes met telkens de bijhorende rustruimtes en badkamer. In het voormalige stationsgebouw worden de functies voor het personeel van het kinderdagverblijf ondergebracht, alsook een grote hal van waaruit de verschillende functies bereikbaar zijn. De hal vormt het hart van het kinderdagverblijf en is multifunctioneel: ze kan dienen als extra binnenspeelplaats, kleedruimte, passage, ontmoetingsplaats, ... Door de vorm en het materiaal zijn het bestaande gebouw en de nieuwe toevoeging duidelijk herkenbaar en afleesbaar. De houten uitbreiding is passend bij het achterliggend Bijgaardepark en het geheel komt als het ware over als een parkpaviljoen.

Het AG SOB organiseerde voor dit project een 'open prijsvraag voor ontwerpen', waarbij onder meer voorop stond : het belang aan de kwaliteit van de voorgestelde architectuur, de gebruikswaarde, de programmavertaling, de duurzaamheid en energieprestatie, het behoud van het karakter van het stationsgebouw, de integratie van het kinderdagverblijf in de parkomgeving, de beleving en meerwaarde voor de gebruikers en de omgeving, de bouwkost, ..
Troeven
Het voormalige stationsgebouw blijft herkenbaar en door de houten uitbreiding is het geheel passend bij de parkomgeving. Het spel binnen-buiten is boeiend voor groot en klein; oa. de gekleurde raampjes zorgen voor een speelse en positieve interactie met de omgeving. Bovendien betreft het kinderdagverblijf een laag-energie gebouw met gebruik van duurzame materialen.
Het stationsgebouw wordt, om de gevels te vrijwaren, langs de binnenzijde geïsoleerd met cellolusevlokken (ademend, vochtregulerend, ...). De uitbreiding bestaat uit een houtskeletbouw met een houten gevelbekleding, geïsoleerd met cellulosevlokken en een vloerisolatie uit resolplaten.
Het AG SOB stelde voor het te renoveren stationsgebouw een E100/K45 voorop en voor de uitbreiding E60/K30. 'De Bijendans' wordt een duurzaam laag-energie gebouw: FSC-hout wordt aangewend, er wordt geïsoleerd met cellulosevlokken, de uitbreiding is voorzien van een groendak, de warmwatervoorziening gebeurt via een zonnecollector en er wordt verwarmd met een condenserende aardgasketel.



In een gelijkvloerse houten uitbreiding worden de functies voor het kinderdagverblijf voorzien, nl. de 2 leefruimtes met telkens de bijhorende rustruimtes en badkamer. In het voormalige stationsgebouw worden de functies voor het personeel van het kinderdagverblijf ondergebracht, alsook een grote hal van waaruit de verschillende functies bereikbaar zijn. De hal vormt het hart van het kinderdagverblijf en is multifunctioneel: ze kan dienen als extra binnenspeelplaats, kleedruimte, passage, ontmoetingsplaats, ... Door de vorm en het materiaal zijn het bestaande gebouw en de nieuwe toevoeging duidelijk herkenbaar en afleesbaar. De houten uitbreiding is passend bij het achterliggend Bijgaardepark en het geheel komt als het ware over als een parkpaviljoen.

Het AG SOB organiseerde voor dit project een 'open prijsvraag voor ontwerpen', waarbij onder meer voorop stond : het belang aan de kwaliteit van de voorgestelde architectuur, de gebruikswaarde, de programmavertaling, de duurzaamheid en energieprestatie, het behoud van het karakter van het stationsgebouw, de integratie van het kinderdagverblijf in de parkomgeving, de beleving en meerwaarde voor de gebruikers en de omgeving, de bouwkost, ..
Troeven
Het voormalige stationsgebouw blijft herkenbaar en door de houten uitbreiding is het geheel passend bij de parkomgeving. Het spel binnen-buiten is boeiend voor groot en klein; oa. de gekleurde raampjes zorgen voor een speelse en positieve interactie met de omgeving. Bovendien betreft het kinderdagverblijf een laag-energie gebouw met gebruik van duurzame materialen.
Het stationsgebouw wordt, om de gevels te vrijwaren, langs de binnenzijde geïsoleerd met cellolusevlokken (ademend, vochtregulerend, ...). De uitbreiding bestaat uit een houtskeletbouw met een houten gevelbekleding, geïsoleerd met cellulosevlokken en een vloerisolatie uit resolplaten.
Het AG SOB stelde voor het te renoveren stationsgebouw een E100/K45 voorop en voor de uitbreiding E60/K30. 'De Bijendans' wordt een duurzaam laag-energie gebouw: FSC-hout wordt aangewend, er wordt geïsoleerd met cellulosevlokken, de uitbreiding is voorzien van een groendak, de warmwatervoorziening gebeurt via een zonnecollector en er wordt verwarmd met een condenserende aardgasketel.

