Antwerpen krijgt nieuwe maritieme school

  • image
  • image
  • image
  • image
  • image
  • image
  • image

De stad aan de Schelde krijgt er een nieuwe school bij. Dat de haven van 't Stad van levensbelang is, onderstreept de bouw van een nieuw maritiem instituut. De Bouwerij Architecten ontwierp het KTA Zwijndrecht volgens de passiefhuisstandaard. De bouwwerken gaan in juni 2014 van start. Studiebureau Util staat in voor de stabiliteit, Cenergie voor de technieken

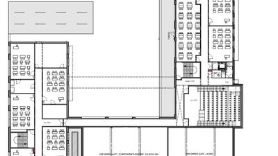
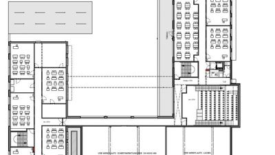
Het nieuwe gebouw heeft de vorm van een U. Het ene been is korter dan het andere, waardoor er een besloten ruimte ontstaat die verder doorloopt naar de aangrenzende open ruimte. Deze afgezonderde ruimte doet dienst als speelplaats voor de jongens en meisjes. Het instituut is een TSO en BSO school, hoewel dat met de hervorming van het onderwijs misschien zal veranderen. 

De secundaire maritieme school heeft een totale oppervlakte van 3860 m². Daarin zijn 23 leslokalen, 3 werkplaatsen, een studieruimte, een auditorium en bijhorende administratieve lokalen verwerkt. De leerlingen leren er lassen, werken er met elektriciteit en bestuderen alles wat te maken heeft met scheepswerktuigkunde. 


Stad van het water

Hoewel Antwerpen niet aan de zee ligt, is het toch een stad van het water. De haven is de tweede grootste van de wereld - een erkenning die de stad jaarlijks miljoenen euro's opbrengt. Het ontwerp van de nieuwe school kadert dan ook in de ambitie om deze positie te behouden. 

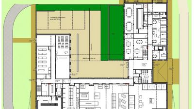
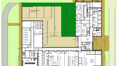
Het compacte ontwerp is gesloten aan de straatzijde. De meeste klaslokalen zijn noord-zuid georiënteerd, wat optimaal is voor het gebruikte passiefhuisprincipe. De geïnstalleerde balansventilatie met warmterecuperatie voorziet het gebouw van een aangenaam binnenklimaat. Een Co²-detectie stuurt deze installatie.

Natuurlijke koeling is mogelijk door nachtventilatie die gebruik maakt van de zichtbare betonmassa van het gebouw. De oriëntatie zorgt voor een slim gebruik van de beschikbare zonnewarmte. De architecten benadrukken het technische karakter van de school door de vakwerken van de lichtstraten op de werkplaatsen. De loopbrug, die de twee theoretische blokken verbindt, zorgt voor een verfrissende dynamiek.

  • Deel dit artikel

Onze partners