Architektenburo Jef Van Oevelen en Scholen van Morgen breiden KTA Heist-Op-Den-Berg uit

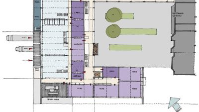
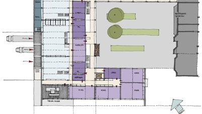
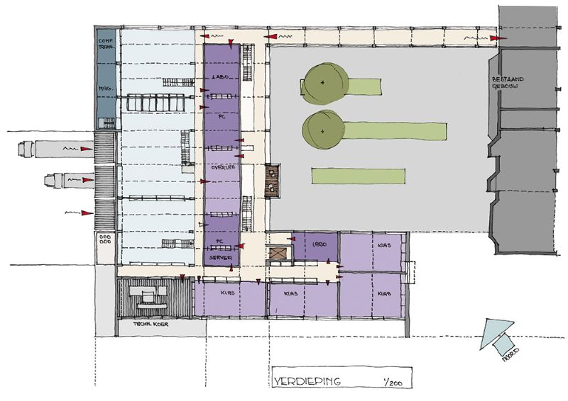
Dit jaar nog zullen de bouwwerken voor de uitbreiding van het KTA Heist-Op-Den-Berg van start gaan. Architektenburo Jef Van Oevelen ontwierp een volledig nieuw gebouw tegenover het bestaande gebouw. Cenergie nam de technieken voor zijn rekening. Dit creëert een mooi binnenplein, zonder een gesloten gevoel op te roepen.

Uitdaging

De uitdaging in het project schuilde vooral in de opgelegde bouwlijn langs de Eglantierstraat. Er bleven dankzij die bouwlijn weinig bouwopties over voor het nieuwe gebouw, dat aan de zuidzijde van het terrein gebouwd zal worden. De vorm en de locatie van de constructie voorziet de campus van een mooi binnenplein. Tegelijk wordt de groene omgeving van vrijstaande woningen gevrijwaard.

 

Leesbare architectuur

De voorontwerpen van het project zagen er meer open uit, maar vanwege veiligheidsredenen en de akoestiek heeft het architectenbureau gekozen voor een eenvoudiger en beter leesbaar ontwerp. Dankzij de bakstenen sokkel sluit het nieuwe gebouw aan bij het oude. De bovenstructuur is uitgevoerd in vezelcementplaten die het dieper liggende raamvlak van de werkplaatsen omkaderen en zorgen voor een optimale lichtinval in de werkplaatsen. Met een passerelle in staal wordt de verbinding gemaakt met het bestaande gebouw.

De uitbreiding van de technische school KTA Heist-Op-Den-Berg kwam tot stand via een Open Oproep van de Vlaamse Bouwmeester.

  • Deel dit artikel

Onze partners