Atelier Kempe Thill start bouwproces eco-wonen Antwerpen-Nieuw Zuid

  • image
  • image
  • image

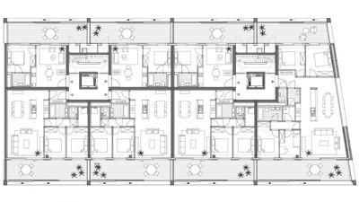
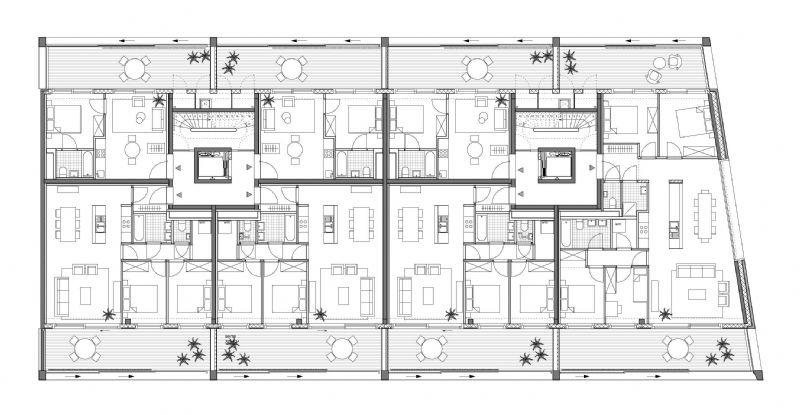
Het nieuwe stadsdeel Antwerpen Nieuw-Zuid wil binnen de tien jaar gelden als een hoge-kwaliteitsuitbreiding van het historische stadscentrum. Atelier Kempe Thill werkt samen met Polo architecten in opdracht van Triple Living Antwerpen aan een van de eerste woonprojecten.

Het woonproject, gelegen in het zuid-westen van Antwerpen, omvat 32 flexibele appartementen met wintertuin. Een collectieve parkeergarage en commerciële ruimtes op het gelijkvloers moeten een aangename leefomgeving creëren. De appartementen variëren in grootte van 40m² tot 160m². Flexibele glaspanelen sluiten deze ruimte af, afhankelijk van het seizoen. De appartementen zijn gerealiseerd als laag-energie en passief woningen.

Bron Triple Living

  • Deel dit artikel

Onze partners