awg architecten ontwerpt nieuw winkelhart voor Valkenburg
In het kader van een Europese Aanbesteding heeft Hurks Vastgoedontwikkeling Zuid uit Eindhoven in samenwerking met awg architecten cvba uit Antwerpen een voorstel gedaan voor het winkelhart in het centrumplan in Valkenburg aan de Geul (NL). Het voorstel van Hurks Vastgoed/awg architecten is als winnend beoordeeld.
In het kader van een Europese Aanbesteding heeft Hurks Vastgoedontwikkeling Zuid uit Eindhoven in samenwerking met awg architecten cvba uit Antwerpen een voorstel gedaan voor het winkelhart in het centrumplan in Valkenburg aan de Geul (NL). Het voorstel van Hurks Vastgoed/awg architecten is als winnend beoordeeld.

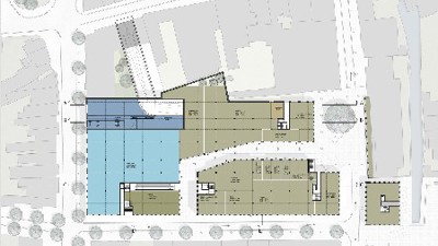
De gebouwde omgeving is de drager van de openbare ruimte. Het plan voor de het Centrum van Valkenburg voorziet in het versterken van de bestaande stadsstructuur door de huidige “openbare leegte” te ombouwen met woningen en winkels, waardoor “openbare ruimte” gemaakt wordt. Het project is een voorbeeld van meervoudig ruimtegebruik. Er wordt een nieuwe parkeerkelder in twee lagen onder het gehele plangebied voorzien, waarin zowel het publiek parkeren als het bewonersparkeren worden ondergebracht. Op het gelijkvloers wordt een (in hoogte verspringende) winkelplint gemaakt, waarin winkels van verschillende grootte kunnen worden gehuisvest.
Binnen het plangebied wordt een nieuwe straat gemaakt, die het bestaande winkelgebied koppelt aan een nieuw winkeltraject en het horecagebied in het centrum van Valkenburg. Door het toevoegen van deze nieuwe kwaliteiten worden de bestaande kwaliteiten versterkt, de reeks van pleinen wordt voortgezet in het plangebied, het bestaande plein aan theater/Hema krijgt een duidelijker ruimtelijke definitie door de vormgeving van pleinwanden.

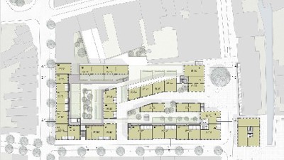
Een nieuwe (semi-)openbare ruimte wordt toegevoegd als extra laag aan de openbare ruimte, toegankelijk via ruime stadstrappen, het wonen krijgt zodoende een zowel fysieke als zichtrelatie met de eerder publieke ‘benedenwereld’. De bouwblokwanden bestaan uit coherente gevelwanden bestaande uit grote “huizen” zoals deze in het centrum van Valkenburg voorkomen, een continue plint met daarboven solitaire, kleinschaliger volumes. De aansluiting op het bestaande, kleinschaliger historisch weefsel wordt hierdoor nagenoeg naadloos gemaakt.
Het project kenmerkt zich door grote constructieve overspanningen en heeft daardoor een duurzame, flexibel indeelbare structuur die op velerlei wijze in te vullen is. Dit geldt voor zowel de “winkel”plint als de “woon”lagen. Er wordt geen expliciet programmatisch gestuurde uitwerking van de gevels nagestreefd, wel een presentie die de openbare ruimte maat en schaal geeft. De eenvoud en coherentie van het architectuurbeeld en de gebouwgevels op alle verdiepingen laten vrijheid in het gebruik van de achterliggende ruimtes.
De natuursteensoort mergel is in Zuid-limburg historisch voorradig en een veel gebruikt bouwmateriaal in het stadscentrum van Valkenburg. Onderdeel van de randvoorwaarden van de architectuurwedstrijd was het gebruik van mergel als beeldbepalend bouwmateriaal. De gebouwen worden verder uitgevoerd in Belgische blauwe hardsteen, (gelige) baksteen en pleisterwerk. De gebruikte (gevel)materialen zijn duurzaam, onderhoudsarm en verouderen op een waardige wijze.