Basisschool Octopus in Sint-Katelijne-Waver krijgt nieuwe arm

  • image
  • image
  • image
  • image
  • image
  • image
  • image
  • image

Een school is voor velen een ingewikkeld systeem van gangen en bijgebouwen. Voor anderen is het dan weer een kans om hun visie om te zetten in de realiteit. Bovenbouw Architectuur zag zijn kans schoon om de basisschool van Sint-Katelijne-Waver uit te breiden met nieuwe klassen en een speelzolder. Hiermee wordt er een nieuw hoofdstuk geschreven in het renovatie- en uitbreidingenboek van basis- en kleuterschool Octopus.

De octopus werd al verschillende malen verbouwd. In de 19de eeuw was het een klein gebouw, maar al snel volgde de eerste uitbreiding aan het begin van de 20ste eeuw. Een na-oorlogse verbouwing bracht een refter en een gymzaal. Tegenwoordig is de school weer te klein, waardoor een nieuwe uitbreiding zich opdringt.


Speelruimte

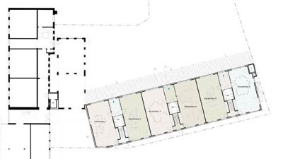
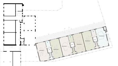
Het voorstel van de architecten bestaat uit de constructie van een nieuw blok. De basisschool en kleuters kunnen binnenkort genieten van 6 nieuwe kleuterklassen, 2 basisklassen en een speelzolder. De moderne expansie werd geïntegreerd in de geschiedenis van uitbreidingen. De ontwerpers tillen de twee basisklassen op waardoor er een overdekte speelplaats ontstaat.

Het langgerekte volume heeft een schuindak, dat uitsteekt om zo een extra stuk overdekte speelplaats te maken. Transparante dakpannen zorgen ervoor dat het licht nog steeds kan doordringen. Onder het dak ligt eveneens de speelzolder, waar kinderen zich kunnen uitleven tijdens de pauzes. Deze is direct te bereiken vanuit de kleuterklassen.  Een stevige isolatie en balansventilatie creëeren een aangenaam binnenklimaat.

  • Deel dit artikel

Onze partners