BOGDAN & VAN BROECK en BC architects & studies ontwerpen een geïntegreerd onthaalcentrum voor drugsgebruikers in Brussel

  • image
  • image
  • image
  • image
  • image
  • image
  • image
  • image
  • image
  • image
  • image
  • image
  • image
  • image
  • image

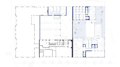
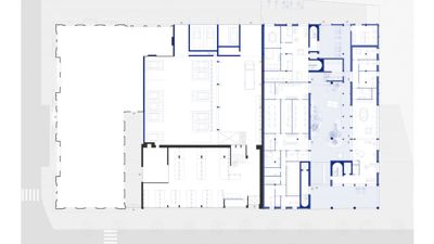
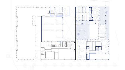
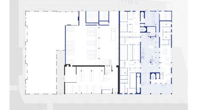
In opdracht van de Maatschappij voor Stedelijke Inrichting (MSI.brussels) ontwerpen BOGDAN & VAN BROECK en BC architects & studies een onthaalcentrum voor eerstelijnszorg aan de Brusselse Havenlaan. De bouw van zo’n onthaalcentrum is hoognodig voor de stad en de Kanaalzone en gaat samen met het voortzetten van de havenactiviteiten. Het resultaat wordt een "geolied apparaat” voor de Haven enerzijds en een open gebouw voor de vzw TRANSIT anderzijds, met 24/7 sociale controle en maximale privacy voor de meest kwetsbaren in onze samenleving. Architectuur wordt hier meer dan ooit een instrument van sociale rechtvaardigheid. 

BOGDAN & VAN BROECK en BC architects & studies werken in een transdisciplinair team met Alive Architecture (participatie), T. Ruyters & S. Blancke (Free Clinic Antwerpen), BAS (structuur), SB Heedfeld (technieken), Daidalos Peutz (EPB, akoestiek) en Studio v2 (BIM).


Een toevluchtsoord aan de oevers van het kanaal

Het geïntegreerde centrum voor drugsgebruikers moet een herberg worden, maar dan een herberg van de 21ste eeuw: een stedelijke plek met tijdelijke woningen, met ruimtes gewijd aan het welzijn van de mensen en een plaats voor ontmoetingen.

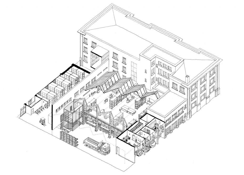
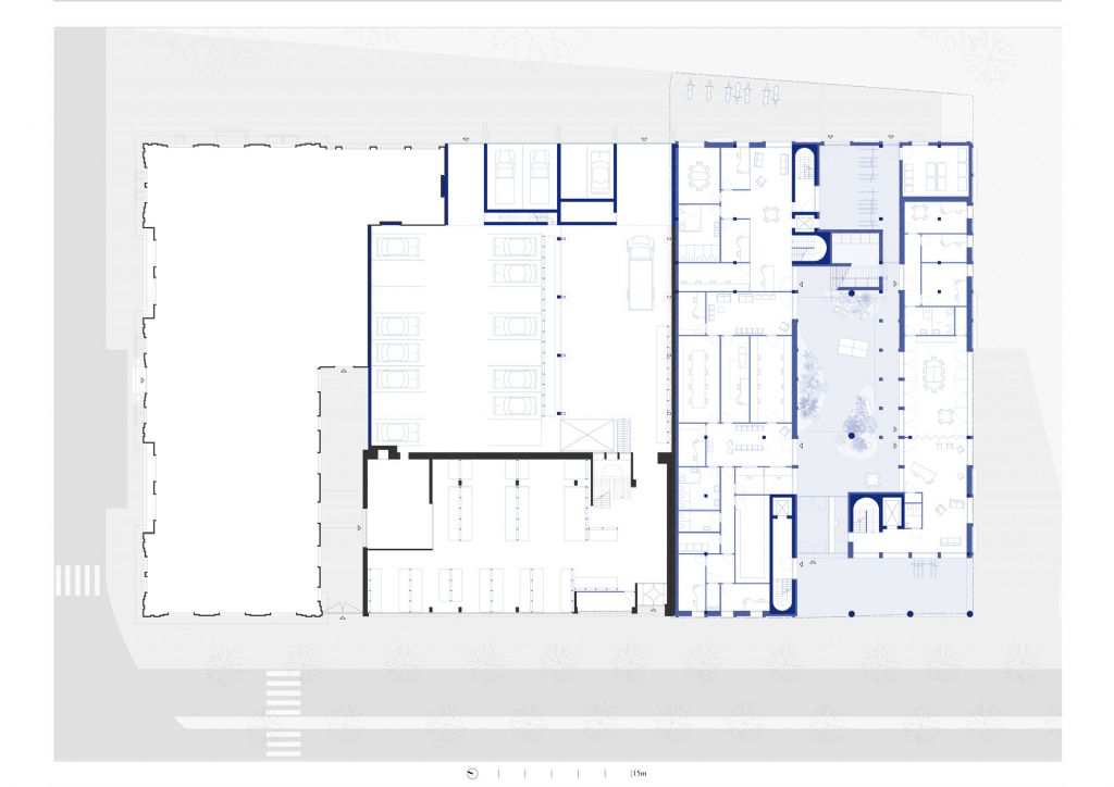
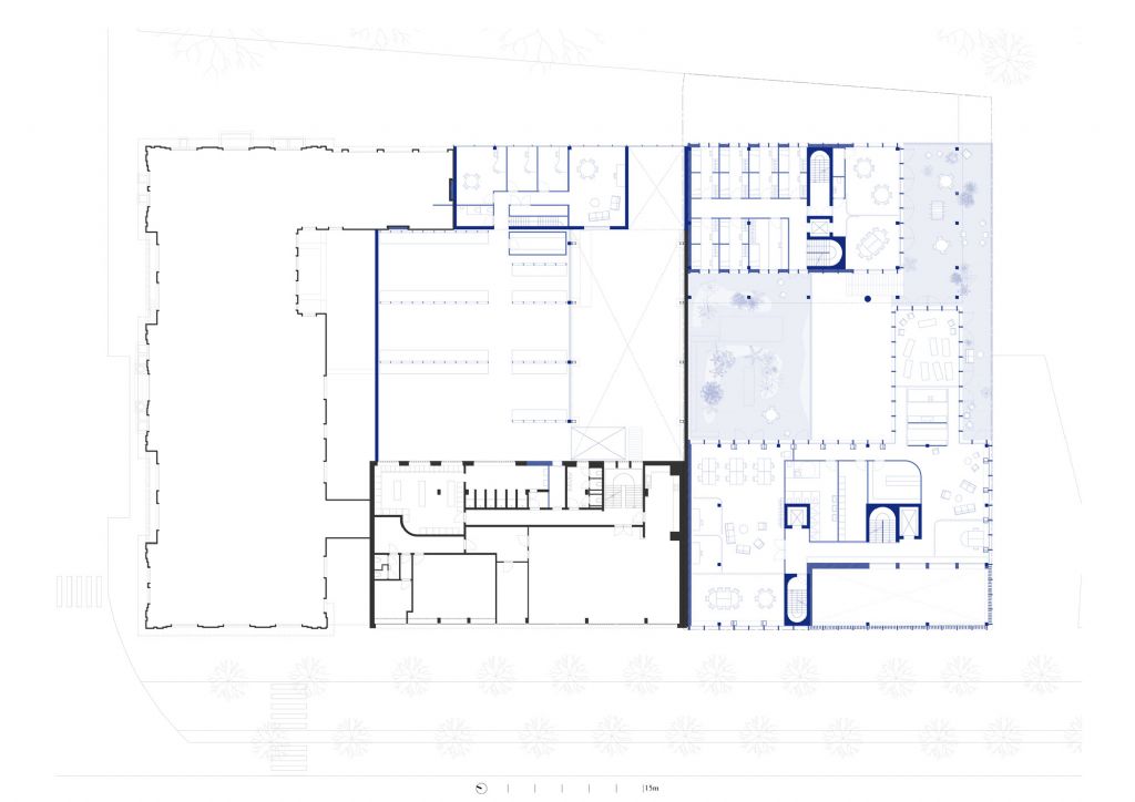
In plaats van een anoniem instituut wordt het project een samengaan van verschillende "huizen", verspreid over verschillende verdiepingen. Ze functioneren autonoom, maar zijn tegelijkertijd onderling goed verbonden. Die opstelling benadrukt het huiselijk karakter van het project. Eerder dan de werking te organiseren op grote plateaus, wordt er ingezet op een verzameling van volumes op een gemeenschappelijke sokkel. Deze sokkel, waar de gebruikers ontvangen en begeleid worden in gastvrije ruimtes, fungeert als een gemeenschappelijke basis voor het hele gebouw. Het omvat een voorportaal, een centrale tuin en een loggia met uitzicht op het kanaal. Het geheel is te vergelijken met de traditionele herberg, die bestaat uit verschillende gebouwen met meerdere verdiepingen verenigd rond een grote binnenplaats en verbonden met de straat door een nieuwe doorgang.

 

"Het lag voor de hand om een warme en gastvrije architectuur te ontwerpen, een architectuur die niet over zichzelf spreekt maar die betekenis geeft... Met een onderdak voor een van de zwakste groepen in de samenleving toont deze samenleving haar morele waarden", aldus het projectteam.   

 

Bouwen voor de toekomst

Het project maakt een einde aan de energieverslindende input en vervuilende output van materialen, energie en water, en transformeert alles in een lokaal circulair model. Hetzelfde geldt voor de bouwmaterialen - zoals hout - die niet-fossiele CO2 bevatten en dus echte CO2-reservoirs zijn: traditioneel en innovatief, logisch en niet duur. 
Naast de klassieke duurzaamheidsaspecten (emissies, biodiversiteit, flexibiliteit en de lange levensduur van een gebouw) richt het project zich ook op de maatschappelijke en sociaal-culturele duurzaamheid, in navolging van het Europese ‘Baukultur’-concept: een gebouw waar we allemaal van houden - omdat het van ons allemaal houdt - blijft langer omdat het door iedereen gedragen en gewaardeerd wordt. Een houvast in een harde wereld wordt zo een deel van het collectieve geheugen.

Het centrum biedt een comfortabele thuis voor de kwetsbaren, gebouwd op een duurzame en circulaire manier en met een lage milieu-impact.

 

Samen leven

Dit project toont aan dat een complexe stedelijke bestemming - een hoognodig centrum voor eerstelijnszorg rond het kanaal - kan samengaan met de voortzetting van de havenactiviteit. Het biedt een antwoord op enkele belangrijke uitdagingen van onze tijd: solidariteit en economie. 

Het centrum is opgevat als een gebouw dat ons verbindt en ons in contact brengt met de stad, de natuur, het park en de veelheid aan culturen die Brussel kenmerken. Het biedt een veelzijdige en open ruimte op de begane grond met een goede sociale controle die 24 uur per dag, 7 dagen per week actief is. Tegelijkertijd is het ook een plek waar men alleen kan zijn zonder zich eenzaam te voelen. 

Het centrum beantwoordt aan de vraag van de stad en haar burgers om niet alleen voor de meest kwetsbaren te zorgen, maar voor ons allemaal. "Door een nieuwe thuishaven te bieden aan hen die kapseizen, geven we uiteindelijk iedereen een thuis, in verbondenheid met elkaar. Een plaats waar we onze bestaansreden (terug)vinden. Architectuur als instrument van sociale rechtvaardigheid", klinkt het bij de ontwerpers. 

 

Bron BOGDAN & VAN BROECK + BC architects & studies

  • Deel dit artikel

Onze partners