BURO II & ARCHI + I draagt bij tot stadsvernieuwing Oudenaarde met De Ham

  • image
  • image
  • image
  • image
  • image
  • image
  • image
  • image
  • image
  • image
  • image
  • image
  • image
  • image
  • image
  • image
  • image
  • image
  • image
  • image
  • image
  • image
  • image
  • image

De ontwikkeling van de site De Ham maakt deel uit van een stadsvernieuwing die zich op verschillende fronten voltrekt. Het voorstel is uitgewerkt door aannemer en projectontwikkelaar Alheembouw en kadert in een publiek-private samenwerking. Het project wordt gerealiseerd in samenwerking met BURO II & ARCHI+I als ontwerper en Prem Hotels als exploitant voor de hotelfaciliteiten.

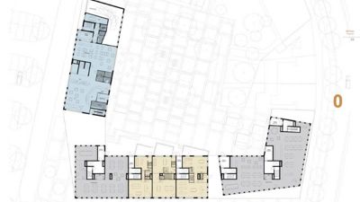
De invulling van dit stadsvernieuwingproject past zich zowel in in het stedenbouwkundig beleid als in het  algemeen maatschappelijk beleid van de stad Oudenaarde. De site maakt deel uit van het nieuwe bouwblok dat in het noorden begrensd wordt door de gedempte Scheldebocht, die recent werd ingericht als lineair park. De site vormt voortaan het sluitstuk van de stadskern.

 

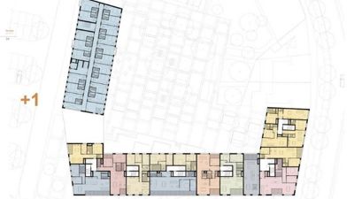
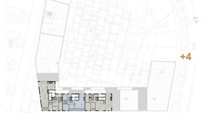
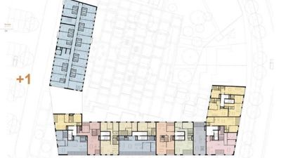
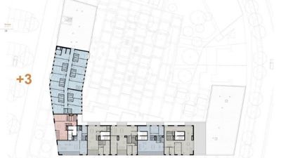
Kwalitatieve stedenbouwkundige invulling

De Ham bevindt zich in het meest zuidelijke punt van de stadskern van Oudenaarde. De Ham – door de jaren heen quasi onbebouwd – is opmerkelijk strategisch en op wandelafstand gelegen ten opzichte van de Markt en het stadhuis, de Sint-Walburgakerk, de vestingen, het Begijnhof en de abdij van Maagdendale. Uitgangspunt is het creëren van een stadswijk aan het water, dat deel uitmaakt van het stedelijk weefsel. Wonen, kantoor en hotelfaciliteiten worden er op een harmonieuze wijze ingevuld.

 

Culturele en maatschappelijke realiteit

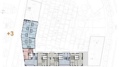
Het ontwerp streeft naar een maximale verweving met het stedelijke weefsel en focust tegelijk op een grote inherente diversiteit. Deze twee insteken vormen het basisconcept voor de projectsite. Het programma bestaat uit een hotel, diensten- of kantoorruimtes op de gelijkvloerse verdieping en een hoofdaandeel wonen. Voor de verschillende programma-onderdelen wordt gezocht naar hun logische plaats op de site; zo wordt wonen optimaal op het water gericht. Binnen het bouwblok wordt een duidelijke keuze gemaakt om in zowel volumetrie als in architectuur te kiezen voor aparte entiteiten en dus een duidelijk leesbaar onderscheid tussen de verschillende programma-onderdelen te maken.

Het hotel herbergt 58 luxueus afgewerkte hotelkamers, voorziet bijkomende faciliteiten voor wielertoeristen en zoekt naar synergieën; o.m. door samenwerking met de Ronde van Vlaanderen. Er is een grote diversiteit aan woontypologieën: 3 praktijkwoningen, 6 panoramawoningen, 2 patiowoningen, 9 bescheiden woningen, 1 duplexwoning, 4 corridorwoningen, 4 schakelwoningen,3 doorzonwoningen en 5 loftwoningen.

In de materialisatie, zowel voor de gevels als voor de landschapsaanleg, wordt gerefereerd naar materialen die langs de Schelde of in de straten van Oudenaarde terug te vinden zijn. Linken en doorsteken op de site zorgen voor een maximale binding met het stedelijk weefsel. Rond het nieuwbouwproject wordt een uitnodigende openbare ruimte ontwikkeld, die gekoppeld wordt aan de Schelde.

  • Deel dit artikel

Onze partners