De Gouden Liniaal Architecten bouwt nieuw cultureel centrum in Diepenbeek
De Gouden Liniaal Architecten is, samen met Diliƫn Architecten en private partner DMI vastgoed, laureaat van het PPS-project Herontwikkeling Servaassite: het bouwen va een cultureel centrum met 42 woningen in Diepenbeek.
De Gouden Liniaal Architecten is, samen met Diliën Architecten en private partner DMI vastgoed, laureaat van het PPS-project Herontwikkeling Servaassite: het bouwen va een cultureel centrum met 42 woningen in Diepenbeek.
Situering
Diepenbeek is een residentiële gemeente gelegen tussen Hasselt en Genk. De gemeente voert een beleid om de ontmoetingsfunctie van het centrum te versterken door verdichting te koppelen aan een betere inrichting van de publieke ruimte. Hierbij staat een sterke gestuurde verwevenheid van het wonen met de publieke functies voorop.
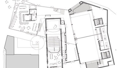
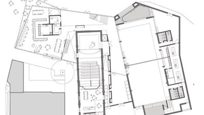
De Servaassite is een inbreidingsgebied gelegen midden in het dorpscentrum van Diepenbeek, op en rond de huidige gronden van de leegstaande Sint-Servatiusschool en de huidige culturele infrastructuur, bestaande uit 3 gebouwen en waarvan enkel de Theaterzaal behouden blijft. Het gebied van ca. 7000 m² wordt vrijgemaakt om met een mix van wonen en culturele infrastructuur een nieuwe impuls te geven aan de stedelijke dynamiek. De werken worden uitgevoerd in een privaat-publieke samenwerking.

Het publieke gedeelte van het project bestaat uit een cultureel centrum (met aangrenzende publieke buitenruimte), polyvalente zaal, literair café, danszaal, muzieklokaal, atelierruimte en enkele vergaderzalen.De nieuwe ontwikkeling dient hierbij een complementair geheel te vormen met het overige patrimonium van de gemeente, met in het bijzonder de prominent aanwezige Theaterzaal en het aangrenzende gebouw van de kapelanijen.
Het residentiële gedeelte van het project, ontworpen door Diliën Architecten, bestaat uit een 40-tal wooneenheden met een verscheidenheid aan woontypologieën, die elk een eigen relatie aangaan met de publieke ruimte.
Er werd gevraagd naar een “harmonieuze samenloop” tussen het publieke/culturele deel en het private woongedeelte. Hierbij dient gestreefd te worden naar een ontmoetingsplaats met een uitnodigend karakter op architecturaal en stedenbouwkundig vlak. Het literair café zou hierbij moeten fungeren als kern van de site.

Uitgangspunt ontwerp
Om de gevraagde “plaats van ontmoeting” te realiseren werd de publieke ruimte van het binnengebied verankerd aan het dorpsweefsel door middel van verschillende doorsteken en toegangen. Door deze doorsteken plaatselijk te verbreden kan er een opeenvolging van plekken ontstaan, die in relatie staan met elkaar. Het binnenplein wordt hierdoor herleid tot een plein met twee pleinzones: een semi-privé woonplein en een publiek evenementenplein. De verblijfskwaliteit van de publieke buitenruimtes is prioritair. Elk van de gebouwen die aan het binnenplein en de verschillende doorsteken grenzen gaat met deze publieke ruimte een eigen relatie aan.
Het nieuwe cultureel centrum moet de ‘katalysator’ van de site worden en is bij uitstek een laagdrempelig gebouw, waarvan de foyer en het leescafé worden vormgegeven als een verlengde van de publieke buitenruimte.

Het probeert in één beweging de bestaande gebouwen op de site (theaterzaal en kapelanijen) mee op te nemen in een functionele logica. Het voegt aan deze gebouwen een derde volume – de polyvalente zaal – toe om zo een waaier van gebouwen te vormen waartussen zich telkens de (semi-)publieke ruimtes (foyer, café, tentoonstellingsruimte, binnenplein kapelanijen) bevinden, elk met een verschillende graad van doorwaadbaarheid en transparantie. Op de verdieping bevinden zich nog een danszaal, een muzieklokaal, een atelier en een aantal vergaderzalen.
Intern worden alle verschillende activiteiten, functies en gebruikers zodanig bij elkaar gebracht dat er een boeiende interactie ontstaat. Zo wordt er een sterke visuele en functionele relatie gelegd tussen de publieke ruimte en de interne werking: foyer en café lopen drempelloos over in de publieke ruimte, terwijl de polyvalente zaal zowel aan de straatzijde als aan het evenementenplein een podium heeft dat, behalve naar de zaal zelf, ook naar de publieke buitenruimte is gericht.
Verder wordt ook mogelijkheid aangereikt om bepaalde activiteiten ''onafgesloten'' te laten plaatsvinden, of om deze uit te breiden of te mengen binnen meerdere ruimtes in het gebouw.
De tentoonstellingsruimte, aan het uiteinde van de foyer tussen theater- en polyvalente zaal, is afgesloten met een vouwschuifwand die men bij speciale gelegenheden kan openschuiven zodat de ruimte een verlengde wordt van de foyer, en zich zo leent voor recepties, vernissages e.d.
Het is ook mogelijk om de polyvalente zaal volledig open te zetten naar de foyer via een akoestische vouwschuifwand. Het binnen-buitenpodium aan het evenementenplein zorgt er voor dat de binnen- en buitenactiviteiten aan elkaar gelinkt kunnen worden. In de polyvalente zaal vertrekt een trap naar een open galerij die de zaal verbindt met een dakterras en het hieraan grenzende atelier, dat op zijn beurt opengezet kan worden naar de polyvalente zaal, enzovoort.
Het resultaat is een gebouw dat de gebruiker prikkelt en aanzet ''om mee te doen''.

Verschijningsvorm
De meest publieke delen (foyer en café) van het gebouw zijn bekleed met een huid in houten schrijnwerk. De transparantie verschilt naargelang de ruimte waaraan de gevel grenst.
Aan de pleinzijde is de gevel het meest transparant. Gekleurde glasvlakken verlenen het gebouw een voor een cultureel gebouw passende acte de présence in de omgeving. Zij maken gevarieerde visuele contacten tussen interieur en exterieur mogelijk, hetgeen bijdraagt tot de belevingswaarde en het uitnodigende karakter van gebouw én plein.
De baksteenarchitectuur van de polyvalente zaal zoekt aansluiting met de bestaande theaterzaal en de woningen aan de straatzijde. Grote openingen maken de binnenactiviteiten van het cultureel centrum kenbaar aan de straat.