De inclusieve stad: CLTB en Tivoli GreenCity in Laken

  • image

Het recht op wonen is verankerd in de Belgische grondwet en in de Vlaams Codex Wonen. Helaas woont 37% van de Vlaamse huishoudens in een woning die niet voldoet aan de minimale kwaliteitsvereisten van de Vlaamse overheid. Slechte woonkwaliteit gaat hand in hand met armoede, slechte gezondheid en schoolachterstand. Om ervoor te zorgen dat iedereen tegen 2030 in een kwalitatieve en betaalbare woonomgeving woont, moeten we inzetten op verschillende woonmodellen, naast de woning in private eigendom. Denk aan sociale woningbouw, Community Land Trusts, wooncoöperaties of gemeenschappelijke woonvormen.  Dat stellen Eva Heuts (VIBE) en Erik Grietens (Bond Beter Leefmilieu) in het voorbeeldenboek 'Stedenbouw kan ook zo', waarin ze zes voorbeeldprojecten verzamelen van 'De inclusieve stad'. Een van die projecten Tivoli GreenCity in Laken, waar Community Land Trust Brussels 22 woningen en gemeenschappelijke ruimtes bouwt. 

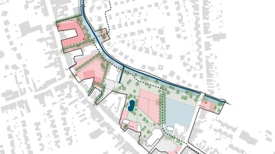
De Brusselse ecowijk Tivoli GreenCity werd in 2019 ingewijd en in 2020 door BREEAM erkend als duurzaamste wijk ter wereld. De voorbeeldwijk strekt zich uit over 4,5 hectare in Laken. Je vindt er Greenbizz I (een kmo-park, fablab en incubator voor duurzaam en innovatief ondernemen onder één dak), ongeveer 400 passieve en nulenergiewoningen, detailhandel, twee kinderdagverblijven en een waaier aan gemeenschappelijke ruimtes. Citydev.brussels wou in de duurzame wijk Tivoli GreenCity ook twee proefprojecten opstarten: één rond groepswonen en één rond CLT-woningen. Voor dit laatste proefproject verkocht ze een perceel uit de wijk aan Community Land Trust Brussels (CLTB).

CLTB ontwikkelt betaalbare woonprojecten op gedeelde gemeenschapsgronden voor mensen met bescheiden middelen. Vanuit deze woonprojecten bouwt CLTB samen met bewoners en buurtorganisaties aan een rechtvaardige en inclusieve stad. Als sociale vastgoedontwikkelaar biedt CLTB dus een innovatief en duurzaam antwoord op de wooncrisis.

Het project van CLTB in de wijk Tivoli GreenCity omvat de bouw van 22 woningen en gemeenschappelijke binnen- en buitenruimtes, waarvoor het ontwerpteam V+ en HBAAT werd geselecteerd. 
De bouwwerken zullen in de loop van 2022 starten.

 

WIN EEN BOEK

Benieuwd naar meer? Deze tekst is een fragment uit 'Stedenbouw kan ook zo', het voorbeeldenboek dat VIBE zopas lanceerde in samenwerking met Bond Beter Leefmilieu, KU Leuven, VRP, ABLLO en Samenhuizen. Dit boek is geen analyse van wat er allemaal fout loopt. Het is een voorbeeldenboek: het toont aan dat het anders kan. Want ondanks de vele problemen bestaan er ook beloftevolle oplossingen. Dat bewijzen de 57 voorbeelden die in het boek zijn opgenomen, samengebracht rond zes centrale thema's: de participatieve stad, de natuurlijke stad, de verbonden stad, de aanpasbare stad, de circulaire stad en de inclusieve stad. Architectura mag de komende weken één project per thema publiceren. 

Het boek is te koop via uitgeverij Public Space, in de boekhandel en online. Architectura mag vijf exemplaren wegschenken van het boek. Laat ons weten via info@architectura.be waarom dit boek jouw architectuurpraktijk kan inspireren en wie weet win je een van de vijf exemplaren. 

Bron VIBE, Bond Beter Leefmilieu

  • Deel dit artikel

Onze partners