Dierendonckblancke, VELDHUIS en OKRA winnen wedstrijd dorpskernvernieuwing Gullegem

  • image
  • image
  • image

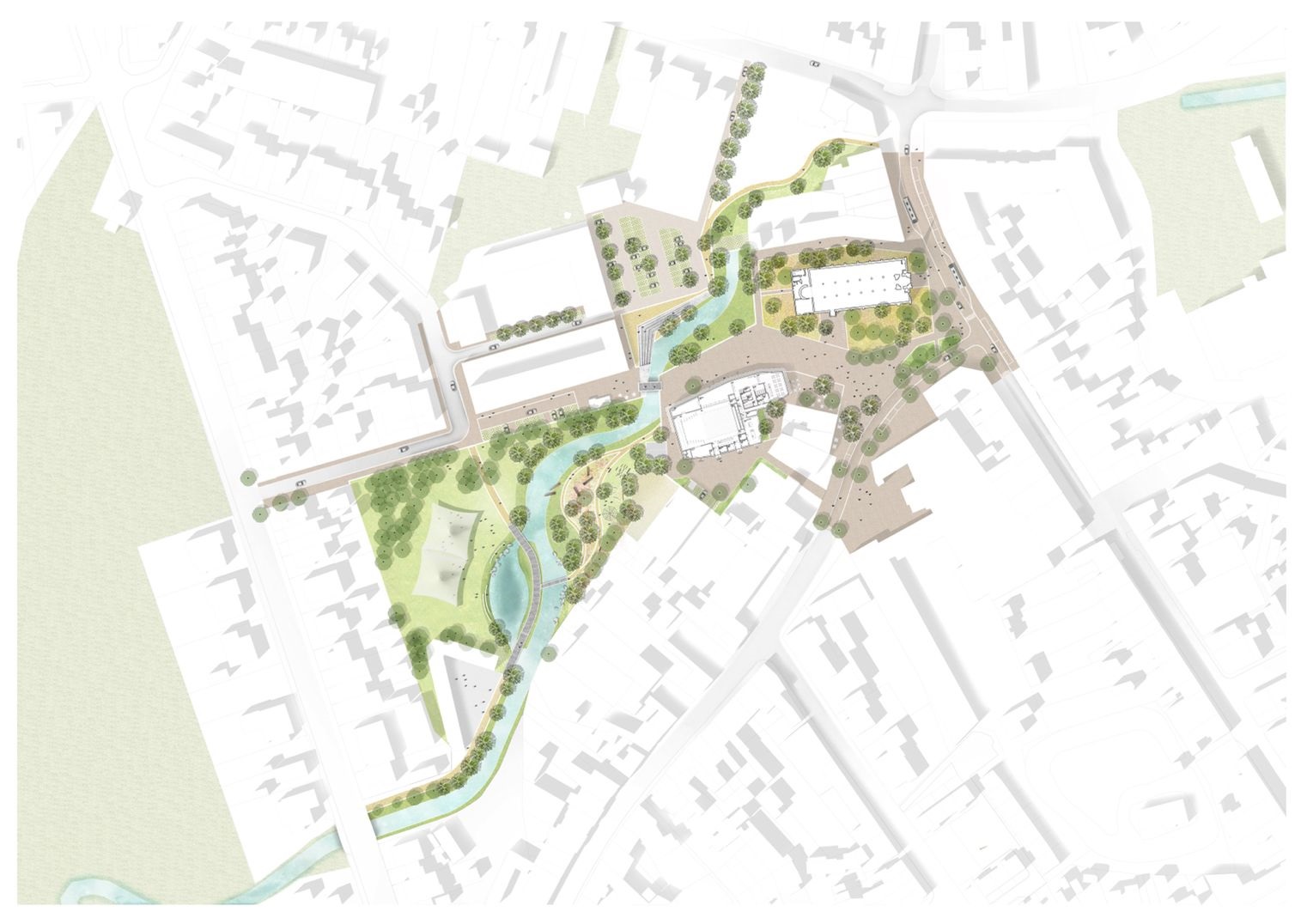
Dierendonckblancke architecten, VELDHUIS architectuur en OKRA landschapsarchitecten mogen de dorpskern van het West-Vlaamse Gullegem vernieuwen. Het ontwerpteam werd aangesteld na een Open Oproep van de Vlaams Bouwmeester. De vernieuwde oevers van de Heulebeek en het nieuwe ontmoetingscentrum geven samen vorm aan een sterk samenhangende en klimaatrobuuste publieke ruimte in het centrum van het dorp.

Het gemeentebestuur van Wevelgem zet in op kernvernieuwing van haar centra, zodat het er gezond wonen en aangenaam vertoeven is. Daarbij gaat ook veel aandacht naar ruimte voor water en groen.

Voor de vernieuwing van de dorpskern van deelgemeente Gullegem is nu een ontwerpteam aangesteld: Dierendonckblancke architecten, VELDHUIS architectuur en OKRA landschapsarchitecten i.s.m. LABEAU, Studieburo George, Atelier Ruimtelijk Advies, Bureau Vandenbogaerde en Bureau De Fonseca.

De vernieuwing van de dorpskern van Gullegem zal bestaan uit vier onderdelen: een nieuw ontmoetingscentrum, de introductie van een levendig, autoluw centrumplein, het herwaarderen van de Heulebeek en een upgrade van de publieke ruimte in het centrum met een focus op feestweide ‘De Gulle’.

Een ontmoetingscentrum op maat

Het bouwvolume voor het ontmoetingscentrum, opgesplitst in twee aan elkaar geschakelde volumes, is ontworpen op schaal van de dorpskern. Een lange luifel langsheen het gebouw geeft een beschermd gevoel aan de gebruiker en is een uitnodiging om de activiteiten binnenin te ontdekken. Het ontwerpteam toont met zijn compact gebouw aan dat ze slim met ruimte weet om te springen. Door de flexibele aaneenschakeling van ruimtes en de opdeelbaarheid van de polyvalente zaal kan een grote variatie aan evenementen op een kwalitatieve manier georganiseerd worden, zonder te groot uit te vallen.

Het ontmoetingscentrum draagt enerzijds bij aan de levendigheid van de centrumomgeving, waaronder het centrumplein en de nieuwe groenzones. Anderzijds heeft het een eigen identiteit en onderscheidt het zich van de andere bebouwing. De samenwerking met de omgeving wordt verder ook gestimuleerd door onder meer de gevel die slanker is dan die van de kerk om balans te creëren en zicht op het Heulebeekpark te garanderen. Ook is de geveltint afgestemd op de materialen en kleuren van de gebouwen in de nabije omgeving.

Een levendig centrumplein

Het nieuwe ontmoetingscentrum draagt bij tot de beleving van het centrumplein, dat toegankelijk is voor jong en oud. De luifel heet bezoekers welkom in het OC. De zitbanken onder de luifel nodigen uit even te rusten of een praatje te slaan, ook wanneer het ontmoetingscentrum gesloten is. Dankzij de cafetaria en het terras heerst er een aangename sfeer in het centrum.

Verblijfsruimte staat boven verkeersruimte door de introductie van een autoluwe zone tussen de kerk en het ontmoetingscentrum. Dankzij de nieuwe positie van het OC wordt de openheid behouden.

Het parkeren wordt gebundeld, met aandacht voor personen met beperkte mobiliteit. De bereikbaarheid van verschillende centrumfuncties en bestaande private toegangen wordt verder gegarandeerd. Vertrekkend van het STOP-principe voorzien de ontwerpers een uitbreiding van de fiets- en wandelpaden.


Herwaardering Heulebeek

De ontwerpers breken de bestaande koker van de beek open tot aan de kerk en trekken zo de natuurlijke wilde beekvallei tot diep in het centrum van Gullegem. De oevers zijn zo vormgegeven dat mensen kunnen afdalen tot het water en er een rustplekje kunnen vinden. In het landschapsplan worden ook speelprikkels voorzien.

Tegelijk wordt er ingezet op biodiversiteit. De waterloop vormt een belangrijke verbinding tussen provinciedomein Bergelen, het Groen Lint en het centrum. Ze geeft ruimte aan fauna en flora en dient tegelijk als buffer voor opvang van regenwater. Dankzij de Heulebeek wordt het centrum klimaatrobuust, natuurinclusief en aantrekkelijk.

Open ruimte met opgewaardeerde groenzones

De ontwerpers breiden de centrale groenzone uit tot aan de kerk, langs de opengelegde Heulebeek. Zo wordt de kerk terug omringd met groen en kunnen bezoekers er een rustig zitplekje vinden.

Bestaande kwalitatieve bomen krijgen een plek in het nieuwe ontwerp. Aanwezige verharding maakt plaats voor zorgvuldig gekozen beplanting, die op zijn beurt bijdraagt tot de biodiversiteit in het centrum. Het ontwerpteam zet in op een duurzame waterhuishouding en kiest voor waterdoorlatende verharding. De feestweide en Kerkeput transformeren samen tot een waardevol Heulebeekpark.

Het nieuwe groenere Heulebeekpark biedt rust en kalmte. Er komen meerdere rustpunten waar je kan genieten van de omgeving. Tegelijk zijn er in het park voldoende voorzieningen om de vele verschillende evenementen te organiseren en wordt er een nieuwe speelzone aangelegd.

Bron Gemeente Wevelgem

  • Deel dit artikel

Onze partners