Dossier Gemeenschapscentra: een nieuw centrum in Lubbeek
Onze reeks rond de Vlaamse Gemeenschapscentra brengt ons ditmaal tot bij een ontwerp van Dierendonck-Blancke architecten: het nieuwe gemeenschapscentrum van Lubbeek.

Het architectenkantoor Dierendonck-Blancke won in 2009 de Open Oproep voor het gemeenschapscentrum dat de gemeente Lubbeek wilde bouwen. Zeven jaar geleden dong Dierendonckblancke ook al tevergeefs mee in de Open Oproep voor Merksplas. Au fond worstelt Lubbeek met een gelijkaardig ruimtelijk gebrek als Merksplas: het ontbreekt de gemeente aan een welomschreven centrum. En een cultuurcentrum hoort nu eenmaal in het hart van de gemeente te staan. Zoals in Merksplas (zie ons eerder verschenen artikel hieromtrent) rijst ook in Lubbeek, een gemeente van 14.000 inwoners in het Hageland, de vraag waar dat centrum nu precies ligt. Het ontbreekt Lubbeek niet aan een compacte, pittoreske dorpskern: een mooie kerk met achterliggend kerkhof bovenop een talud, en in een grote cirkel daarrond de vertrouwde dorpsvoorzieningen zoals een apotheker, verzekeringskantoor en warme bakker. De landelijkheid is hier gaaf gebleven. Maar het bleek nooit duidelijk welke functie het kerkplein vervulde, anders dan parkeerplaats. Het echte centrum leek voor velen de rotonde te zijn met het kruispunt van invalswegen vlak naast het
Kerkplein.

Het gemeentehuis illustreert dit gebrek aan een uitgesproken centrum bijna pijnlijk, hoewel het amper tien jaar oud is. Het is ingeplant tussen de sporthal en de gemeentelijke sportvelden, achter het politiecommissariaat– het vroegere gemeentehuis. In vogelvlucht is het hooguit driehonderd meter tot de kerk. Maar het ligt in een andere wereld, die van een campus eerder dan die van een dorpskern (vroeger was hier inderdaad een school gevestigd). Naar een campus ga je met de auto. Rondom gemeentehuis en sportinfrastructuur liggen dan ook ruime parkeerterreinen. In de oksel van het t-vormige gebouw ligt de ingang. Erg bevreemdend is de vijver met rietkragen voor de ingang, waar je een plein verwacht dat de officiële en publieke status opvijzelt. Daar staat dus met andere woorden een stedelijk gebouw in een voorstedelijke setting met een landelijke voortuin. Het nieuwe gemeenschapscentrum diende naast dit gemeentehuis te komen, ter vervanging van Feestzaal Libbeke.

Publieke ruimte als leidraad
De ontwerpers wilden vooreerst aan die site het profiel verlenen van een centrum, en een van de belangrijkste middelen daartoe is het ontwerpen van een duidelijk gedefinieerde publieke ruimte. Ze vertrokken bij het aflopende reliëf van het landschap en bij de bezoekersstromen voor de sportterreinen en administratie. Dierendonckblancke stelden hierbij een boemerangvormige constellatie voor van twee hogere volumes die oprijzen uit een breed basisvolume. Het dak van dit volume begint op de begane grond en loopt op naar achter toe, terwijl het landschap intussen afhelt. Zo komt dat uitgestrekte gelijkvloerse bouwvolume geleidelijk aan uit de helling te voorschijn.

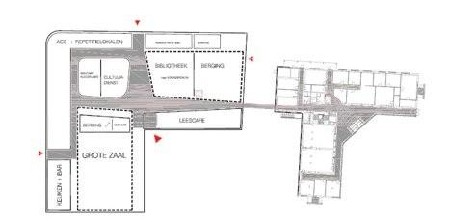
Ook het dak wordt een plein
Aan pleinen geen gebrek in dit ontwerp. In de oksel van het gebouw ligt een buitenplein. Dat loopt over in een binnenstraat die naar de interne circulatie in het gemeentehuis leidt. Een leescafé kan de ramen naar het buitenplein opengooien. Maar ook het dak van het grote basisvolume, het dak dat aan de grond begint, functioneert in het voorontwerp als een oplopend plein dat rond de twee hogere bouwvolumes gedrapeerd is. Dat plein vormt de essentie van het ontwerp. Volgens de ontwerpers zijn zoveel pleinen nodig omdat ook dit gemeenschapscentrum een echte ontmoetingsplek moet worden. Van inwoners die er met een reden komen – van administratie en bibliotheekbezoek tot vergaderingen en muziekschool, en van inwoners die er zonder reden langskomen – een glas komen drinken in het café, of na school rondhangen.


Een centrum voor het lokale verenigingsleven
Het programma voor het gebouw is gerust ambitieus te noemen: academie, bibliotheek, administratie cultuur, polyvalente zaal voor theater, eetfestijnen en bijeenkomsten allerhande, café, opslagruimtes. Net als in gemeenten als Loker en Merksplas streefde het gemeentebestuur veeleer naar een ‘gemeenschapscentrum’ dan naar een ‘cultureel centrum’. Het moest op de eerste plaats een ontmoetingsplaats worden voor de lokale bevolking, voor de leden van de erkende cultuurverenigingen, voor de lezers van de openbare bibliotheek, voor de leerlingenvan de jeugdmuziekschool, voor de fanfares, toneelverenigingen en zangkoren.’

De ontwerpers waren van mening dat het lokale verenigingsleven vooral moet groeien in informele, minder strak gedetermineerde ruimtes. Verschillende circuits functioneren onafhankelijk van elkaar (en afsluitbaar van elkaar) op verschillende tijdstippen. Grote delen van het gebouw dienen meer dan één functie. Die densiteit vergroot het belang van de tussenruimtes, open ruimtes, assen en passages die bij uitstek publiek zijn. Ze verlenen het gebouw een complexere sociale gelaagdheid. Op die manier functioneert het als een stedelijk weefsel.

Projectgegevens:
Open oproep 1606
Bouwheer: Gemeentebestuur Lubbeek
Ontwerp: Dierendonckblancke, ontwerpteam: Alexander Dierendonck – Isabelle Blancke – Zarichelli Mendelez – Pieter Mouton – Delphine Van Aerde
Studiebureaus: Studiebureau Boydens (Technieken) – Studiebureau Mouton (Stabiliteit) – Daidalos-Peutz (akoestiek)
Oppervlakte: 3435m²
Budget: 1246€/m²
Status: in ontwerp
In het ‘Dossier Gemeenschapscentra’ worden diverse voorbeelden toegelicht. In de komende weken brengen we u op Vlaamsearchtectuur.be een vervolgreeks waarin telkens één project uit dit dossier zal belicht worden.