DRDH Architects schenkt Noorse stad Bodø een nieuw cultureel kwartier

  • image
  • image
  • image
  • image
  • image
  • image
  • image
  • image
  • image
  • image
  • image
  • image
  • image
  • image
  • image
  • image

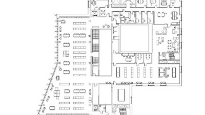
Het cultureel kwartier Stormen in de Noorse stad Bodø, ontworpen door het Londense bureau DRDH Architects, werd officieel geopend door de Noorse kroonprins op 15 november 2014.  Stormen omvat een bibliotheek en een concert- en theaterzaal. Het ensemble van twee gebouwen, met een totale kostprijs van 140 miljoen euro, werd gedurende de afgelopen 6 jaar ontwikkeld op de laatste braakliggende terreinen binnen het stadscentrum. 

Het Konserthus (11.200m2) bevat 4 publieke zalen: Store Sal, een 944 zitplaatsen tellende concert- en theaterzaal; Lille Sal, een auditorium met 260 zitplaatsen; Sinus, een zaal voor hedendaagse muziek met een capaciteit van 480 toeschouwers en Kammersal, een zaal voor kleinere muziekensembles of bijeenkomsten met 100 zitplaatsen. De Store Sal biedt een vernieuwende typologie waarbij het mogelijk wordt de ruimte, zowel akoestisch als ruimtelijk, om te bouwen van theaterzaal naar klassieke concertzaal. 

De Bibliotek (6.300m2) is een stadsbibliotheek met bijkomende gemeenschapsfuncties: een flexibele voorstellingsruimte, een galerij, een café en diverse vergader- en workshopruimtes. Deze functies zijn georganiseerd rondom een interne straat, welke de stad verbindt met de waterkant. Een omvangrijke leesruimte aanschouwt het landschap van haven, zee en bergen doorheen een grote glaspartij en vormt zo een aangename publieke verblijfsruimte op een plek die vaak onderhevig is aan barre weersomstandigheden. 

 

Coherente stedelijkheid

Daniel Rosbottom en David Howarth (oprichters DRDH Architects): "Beide gebouwen vormen een stedelijk ensemble en bieden een gezamenlijk antwoord op de specifieke context, tussen stad en landschap. Zacht gebogen daken spreken tot de omliggende bergen en eilanden, en vanuit de haven versmelten beide gebouwen tot een geheel. Door genuanceerde, zij het monumentale vormen en materiaalgebruik wordt gezocht naar een verwantschap met de buren. Het resultaat is een coherente stedelijkheid, een bijdrage tot de herwaardering van het stadscentrum.

De façades zijn opgebouwd uit prefab betonelementen met een aggregaat van wit marmer, gestapeld en zelfdragend. Het oppervlak werd gewassen of gepolijst om de buitengewone lichtomstandigheden van dit arctische gebied in zich op te nemen en verder te verspreiden.

Waar de externe verwantschap tussen beide gebouwen ontegensprekelijk is, zijn er intern duidelijke tegenstellingen. De publieke ruimtes binnen het Konserthus zijn opgevat als een enfilade van compacte kamers, die de voorstellingszalen omsluit. Hier tegenover contrasteert het open landschap van de Bibliotek, beschermd door het gevouwen plafond. Net zoals bij de gevel wordt binnenin gebruik gemaakt van composietmaterialen met een sterk karakter. Hiervoor werd een palet van eiken multiplex, terrazzo, gekleurd HDF, HPL en calciumsulfaat gehanteerd.

DRDH Architects is verantwoordelijk voor zowel architectuur als interieur van het gehele project, inclusief specificatie van het aangekochte meubilair en het ontwerp van de op maat gemaakte stukken. Voor het ontwerp en de coördinatie van de grafische identiteit en signalisatie werd samengewerkt met het grafische bureau Neue uit Oslo.

 

Projectverloop

In 2008 won DRDH Architects de open internationale wedstrijd voor het masterplan van het cultureel kwartier. De daaropvolgende wedstrijd op uitnodiging voor beide gebouwen werd gewonnen in 2009 en in september 2011 werd gestart met de bouwwerken. De officiële opening vond plaats op 15 november 2014, in aanwezigheid van de Noorse kroonprins Haakon. In Aarschot, België is DRDH Architects, i.s.m. met het Belgische bureau architecten de Vylder Vinck Taillieu, momenteel verantwoordelijk voor de bouw van een woongebouw en dienstencentrum voor ouderen, waarvan de oplevering wordt. 

  • Deel dit artikel

Onze partners