Contactformulier

ABSCIS ARCHITECTEN

Drie Koningen: studentenhuisvesting, kantoren en andere buurtondersteunende functies (Abscis Architecten, Archipl Architecten, Kollektif Landscape)

  • image
  • image
  • image
  • image
  • image
  • image
  • image
  • image
  • image

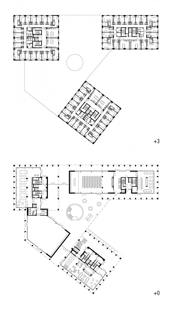
Een site langs de E40 en Kortrijksesteenweg in Gent, schuin tegenover de KBC-toren, vormt de locatie voor  nieuwe studentenhuisvesting van projectontwikkelaar Immogra. Het project omvat 530 studentenkamers en een aanvullend programma met gemeenschappelijke studentenvoorzieningen, kantoorruimtes, een polyvalente zaal met cafetaria, en een ondergrondse parking en fietsenstalling. Abscis Architecten, Archipl en Kollektif Landscape stonden in voor het ontwerp. Het project wil een antwoord bieden op de grote nood aan kwalitatieve en betaalbare studentenkamers in Gent en een voorbeeld zijn van een hedendaagse en duurzame studentenhuisvesting als hefboom voor een bredere stadsontwikkeling.

Het nieuwbouwproject bestaat uit een ensemble van 3 woontorens, de ‘Drie Koningen’, met studentenkamers en gemeenschappelijke leefruimtes, bovenop een sokkel van 2 bouwlagen met kantoorruimtes, een polyvalente zaal met cafetaria, en gemeenschappelijke studentenvoorzieningen. Tussen de 3 torenvolumes en de sokkelfuncties in ligt een centrale tuinzone en overdekte buitenruimte ingesloten, die toegang geeft tot de verschillende gebouwdelen en in directe verbinding staat met de ondergrondse fietsenstalling en parking. Het dak van de sokkel fungeert als luifel voor de centrale buitenruimte en wordt als natuurlijke daktuin ingericht.  

De inplanting van het gebouw en de buitenaanleg eromheen houdt rekening met een maximaal behoud van de aanwezige bomenclusters op de site, de te respecteren bouwvrije zones langs de omliggende verkeersinfrastructuur, en een minimale ruimtelijke impact op de aanpalende woonwijk.

Smalle torenvolumes

De keuze voor drie smalle torenvolumes volgt zowel vanuit de ruimtelijke context als de interne organisatie van het gebouw. Door hun verschillende oriëntatie (gericht naar de E40 of de Kortrijksesteenweg) en aflopende bouwhoogte (vanaf de afrit van de E40 richting de woonwijk aan de Drie Koningenstraat) spelen de 3 volumes in op hun directe omgeving. De compositie van de volumes en de doorzichten ertussen zorgen zo voor de nodige verschaling en een luchtig beeld vanuit de verschillende invalshoeken.
Vanuit samenwonen en de interne organisatie van het gebouw is ook bewust voor het torenmodel gekozen, waarbij elke woonlaag een beperkt aantal van maximum 20 bewoners huisvest en zo meer als een eigen community binnen de grootschalige studentenhuisvesting zal aanvoelen. In grondplan worden de studentenkamers en gemeenschappelijke leefruimtes rond een centrale kern met gemeenschappelijk sanitair en verticale circulatie georganiseerd. Deze compacte opzet, waarbij lange gangen met kamers worden vermeden, zorgt voor overzicht en een huiselijke sfeer op woonniveau.

Levendige stedelijke plint

Op maaiveldniveau komen de 3 woontorens neer op een dubbelhoge sokkel, die naast de toegangen tot de studentenhuisvesting ook kantoorruimtes, een polyvalente zaal, een studentenhuis en overdekte buitenruimtes omvat. De sokkel vormt zo de overgang van het grootschalige gebouwencomplex naar inkomzones en buitenruimtes op menselijke schaal, en zorgt voor een levendige stedelijke plint met functies die de buurt verrijken. Het complex wordt ingebed in een natuurlijke parkomgeving, die ruimte voor ontmoeting en ontspanning biedt en het groene karakter van de buurt versterkt.

Groene long en zacht vervoer

Ondergronds voorziet de ontwikkelaar 46 parkeerplaatsen, die enkel voor de gebruikers van de kantoren en de polyvalente ruimte bestemd zijn. De parking kan je via oostelijke kant van de site via de Driekoningenstraat bereiken. Onder – en bovengronds komen er liefst 816 fietsenstallingen, waarvan 594 bestemd voor studenten en bezoekers. Op die manier wil Immogra zacht verkeer en openbaar vervoer zo veel mogelijk aanmoedigen en de eventuele bijkomende parkeerdruk in de omliggende woonwijken tegengaan.

Ondanks de realisatie van de drie gebouwen wordt de site Drie Koningen letterlijk en figuurlijk zo groen mogelijk. Slechts 18 procent van de totale oppervlakte (17.142 m²) zal bebouwd zijn. De bestaande groene gordel blijft behouden en wordt verder versterkt met ​ nieuwe planten en bomen. In de centrale (binnen)tuin, die een oppervlakte heeft van een kleine 2.000 m² zullen de studenten kunnen verpozen. Groendaken op zowel de twee kleinste gebouwen als op het dak boven de sokkel tussen de drie gebouwen zullen dan weer de biodiversiteit in de omgeving versterken en het zicht vanuit de kamers mooier maken.

Ook op het vlak van energie- en waterverbruik zet de ontwikkelaar maximaal in op duurzame en circulaire technieken. Zo wordt de volledige site gasloos en worden de gebouwen verwarmd en gekoeld dankzij geothermie. Zonnepanelen zullen extra groene energie opwekken voor zowel het kantoor-, het recreatieve als het residentiële gedeelte.

  • Deel dit artikel

Onze partners