Efficiënt ruimtegebruik met Paviljoen GrootSchijn

  • image
  • image
  • image
  • image
  • image

Om aan de groeiende vraag naar ‘tuinieren in de stad’ te voldoen, schreef de stad Antwerpen eind 2017 een ‘Design & Build’- wedstrijd uit. Het doel was om een luifel te ontwerpen die onderdak biedt aan tuinbergingen. Het ontwerp van Architectenburo Cuyvers + co en aannemer KvD werd geselecteerd voor uitvoering.

In deze individualistische samenleving is er een groeiende drang naar verbondenheid met elkaar en met de natuur. De stad verdicht en mensen gaan steeds kleiner wonen. Dat versterkt de vraag naar tuintjes buiten de stad. Aangezien ook deze ruimte beperkt is, vraagt het om een efficiënte omgang ermee. 

 

Tuintjes blijven geheel tuin 

Op een traditionele volkstuinensite heeft elk tuintje zijn eigen tuinhuisje, hetgeen heel wat ruimte inneemt. Dit project centreert deze functies in één compact gebouw, waar de faciliteiten worden gedeeld. Hierdoor kunnen de tuintjes geheel tuin blijven en kunnen er meer groenten en fruit worden verbouwd. 

 

Verbindende rol

Het gebouw heeft ook een verbindende rol. Mensen kunnen er bij de bankjes samen koffie drinken, samen barbecueën en ervaringen uitwisselen. Een ander voordeel van collectieve voorzieningen in de individuele tuintjes, is dat er een groener en rustiger beeld ontstaat op de site.  

 

Twee kamers

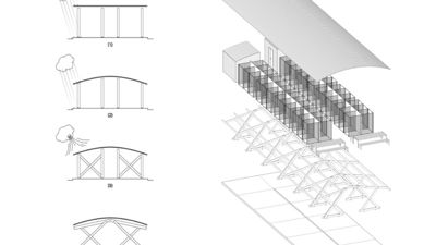
De dakconstructie is een afgeleide van de functie die het vervult. Het gebogen dak geeft een beschut en beschermend gevoel, terwijl de gekruiste spanten een sterk en dynamisch gevoel geven. Het gebouw bestaat, de bergingen voor de individuele tuintjes en de picknicktafels niet meegerekend, uit twee kamers. 

De eerste kamer is een wc-ruimte, waarin een composttoilet en een droog-urinoir zit. In de andere kamer zit een algemene berging, met daarin de composttank. De ontlasting van de tuinders wordt in deze tank omgezet in compost, hetgeen direct in de tuinen bruikbaar is.

 

Zelfvoorzienend

Het regenwater op de luifel wordt opgevangen voor gebruik bij de lavabo en de dienstkraantjes verspreid over de site, maar ook om de tuinen te bewateren. Verder zijn de tuintjes en het gebouw, op een klein beetje elektriciteit na, zelfvoorzienend. Bovendien is de constructie van het gebouw vervaardigd uit duurzaam hout.

Bron Architectenburo Cuyvers + Co

  • Deel dit artikel

Onze partners