Heerweg: het collectief woongebouw als eigentijdse art deco-villa (WE-S architecten)

  • image
  • image
  • image
  • image
  • image
  • image
  • image
  • image
  • image
  • image
  • image
  • image
  • image
  • image
  • image
  • image
  • image
  • image
  • image
  • image
  • image
  • image
  • image
  • image
  • image
  • image
  • image

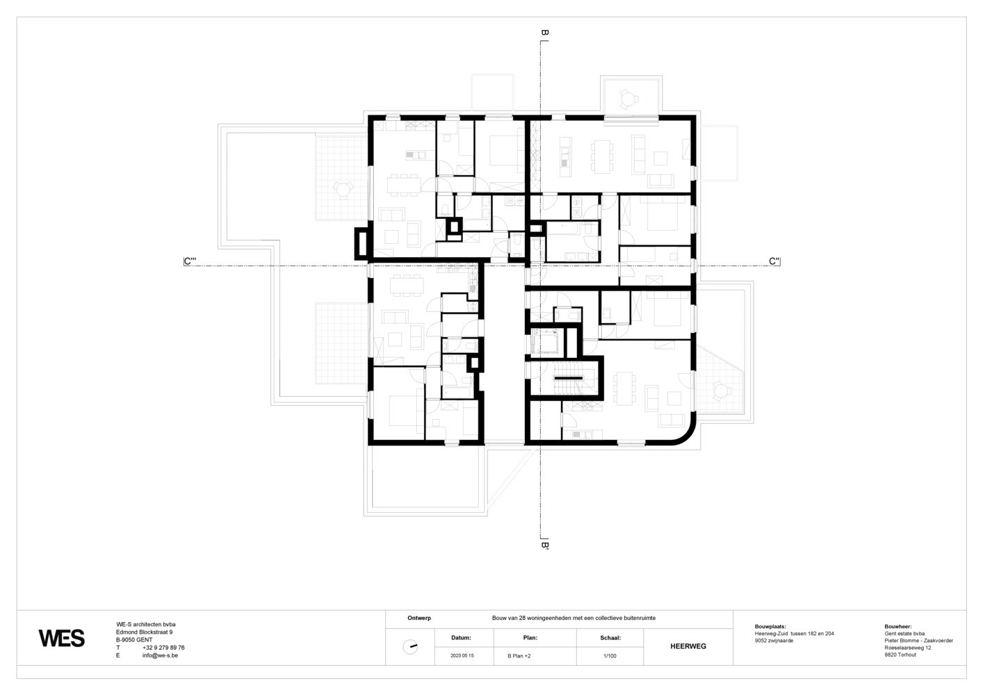
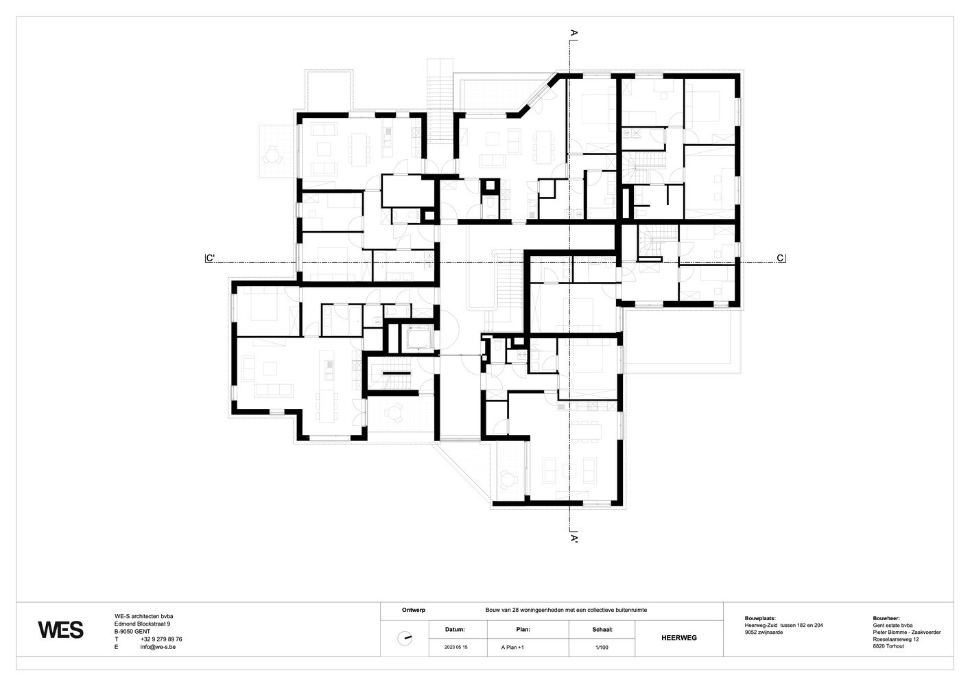
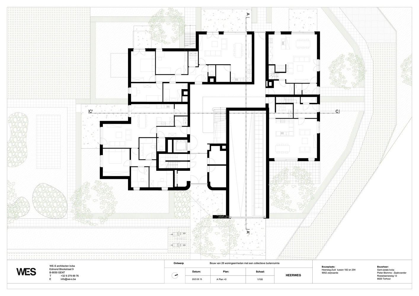
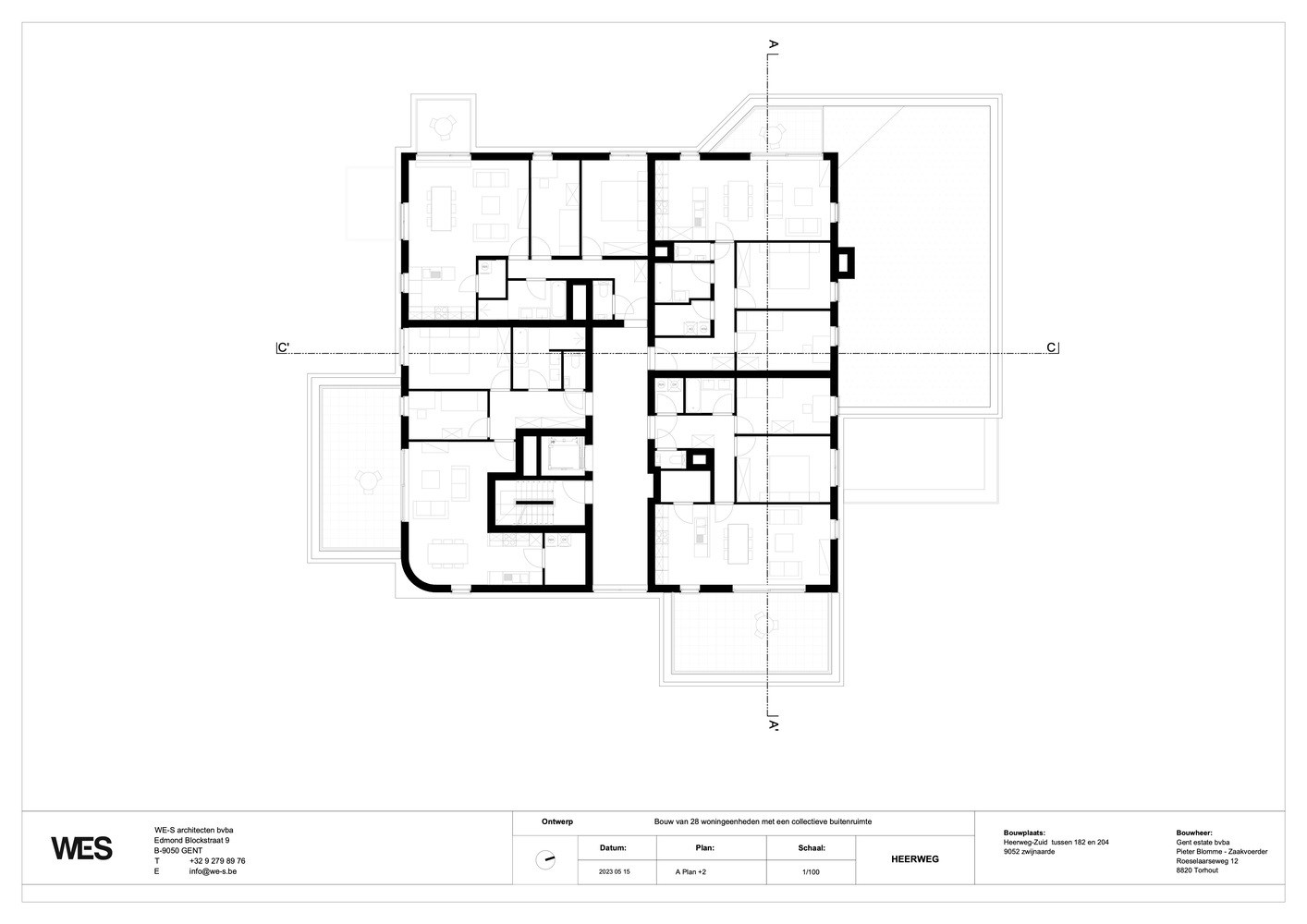
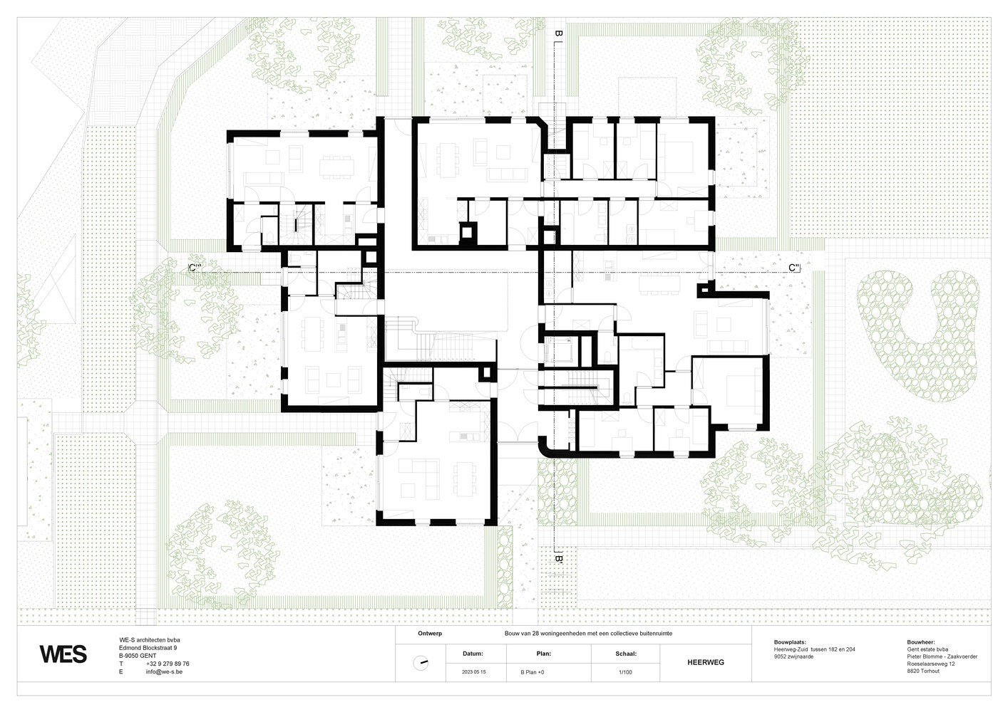
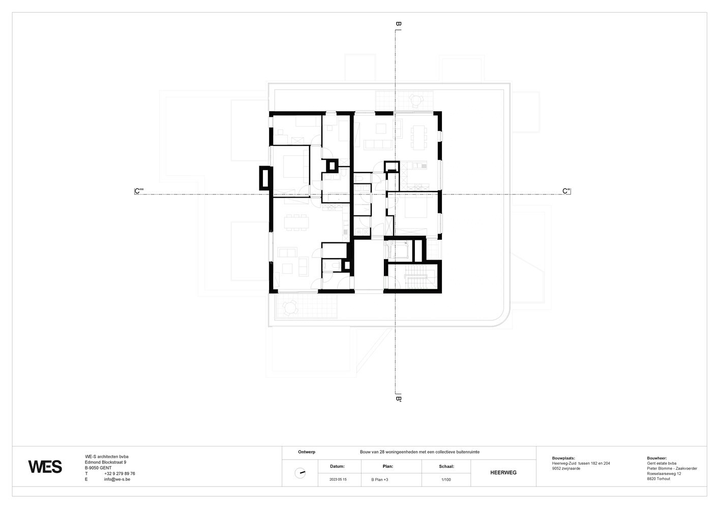
In Zwijnaarde bij Gent realiseerde ontwerpbureau WE-S architecten een woonproject dat de overgang tussen stad en landschap op een vernieuwende manier benadert. Het project omvat 28 wooneenheden, verdeeld over twee compacte bouwvolumes die zich aan de randen van het terrein bevinden. Door deze strategische plaatsing blijft het midden van het perceel grotendeels open, waardoor er een directe visuele relatie ontstaat met het achterliggende bosgebied. De inplanting volgt de bestaande bebouwingsstructuur langs de straat en vertaalt deze in een hedendaagse woonvorm met een focus op gemeenschappelijkheid en interactie.

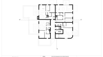
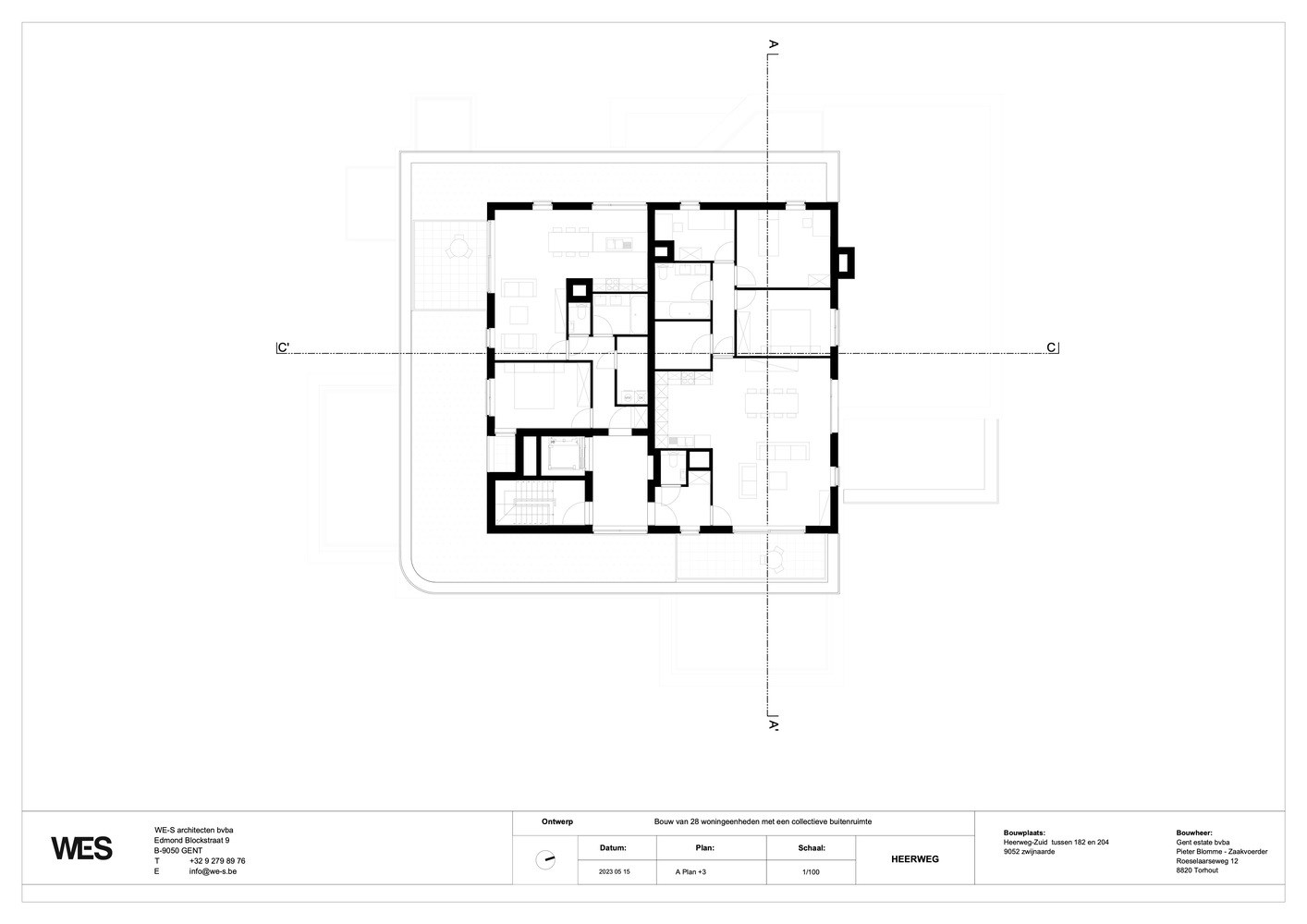
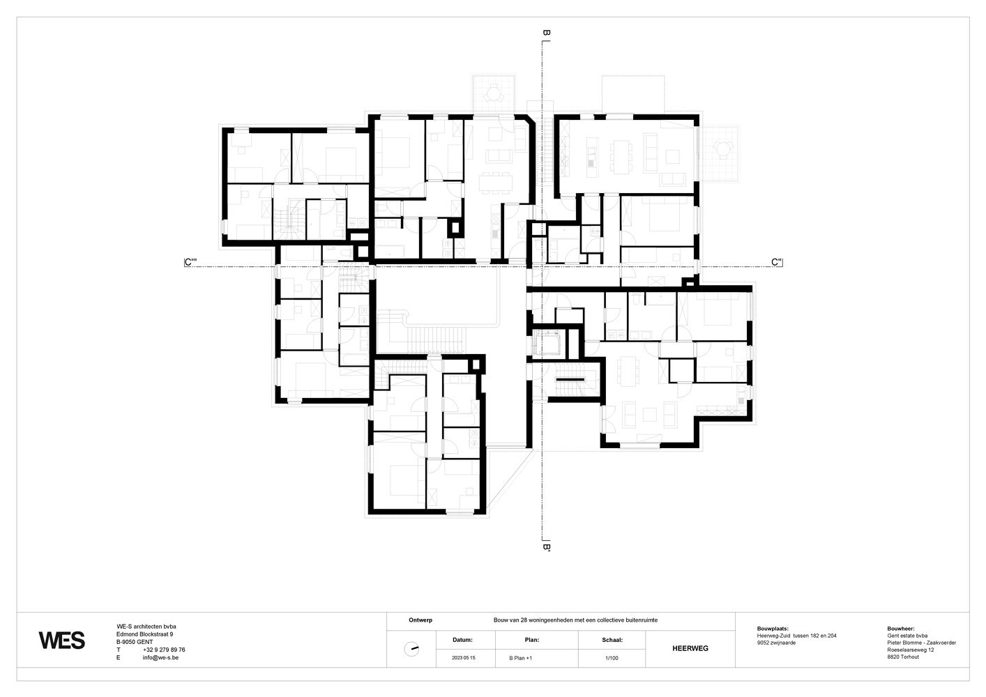
Het ontwerp van de woningen doorloopt verschillende stappen om tot een optimale organisatie te komen. In eerste instantie worden halfopen woningen met voortuinen en achtertuinen geïntroduceerd, die de straatwand versterken. Vervolgens worden de woningen zijwaarts gedraaid, waardoor ze optimaal georiënteerd zijn naar de voortuinen. Deze ingreep creëert ruimte aan de achterzijde voor een collectieve binnenhof, waar enkele appartementen rondom worden georganiseerd. Door de volumes 90 graden te draaien, krijgen de woningen op de begane grond een eigen voordeur, terwijl de appartementen toegankelijk zijn via een gemeenschappelijke ingang aan de Heerweg Zuid.

Landschappelijke integratie

De centrale ontmoetingsruimte, de zogenaamde "woonkamer", is een sleutelelement in het ontwerp. Deze ruimte, die zich over twee verdiepingen uitstrekt, verbindt de inkomhallen van beide gebouwen en fungeert als een gedeelde ontmoetingsplek. Hier wordt interactie tussen bewoners gestimuleerd en krijgt daglicht de kans om diep in de gebouwen door te dringen. De openheid van dit volume draagt bij aan de levendigheid van het project en benadrukt de ambitie om een gedeeld woonmilieu te creëren.

De landschappelijke integratie van het project is even doordacht als de architecturale ingrepen. Door alle wooneenheden in twee compacte volumes te groeperen, ontstaat een centrale open ruimte van bijna 30 meter breed. Dit gebied is niet alleen visueel verbonden met de omliggende natuur, maar wordt ook ingericht als een groen netwerk van kanalen, weiden, bomenrijen en hagen. Strategisch geplaatste assen structureren deze landschappelijke elementen en creëren een gevarieerd en rijk ecosysteem. De privétuinen van de duplexwoningen sluiten naadloos aan op de gemeenschappelijke buitenruimtes, wat de interactie tussen bewoners bevordert.

Monumentale trap

Architecturaal combineert het project de typologie van het landhuis met die van de meergezinswoning. In plaats van traditionele stapelingen van identieke verdiepingen, worden beide volumes opgevat als vergrote villa’s met een dynamische en afwisselende vormgeving, die subtiel knipoogt naar de art deco-architectuur. Dit concept komt ook terug in de collectieve binnenruimtes, waar materialen en vormgeving bijdragen aan een huiselijke sfeer. Een monumentale houten trap kronkelt rond de mezzanine en vloeit visueel over in de houten plint die de brede gangen omlijst. De subtiele detaillering, zoals de eenvoudige kaderdeuren en de balustrades van de terrassen, versterkt de eenheid en verfijning van het geheel.

Het project Heerweg van WE-S architecten toont hoe hedendaagse architectuur kan inspelen op zowel collectieve woonbehoeften als landschappelijke kwaliteiten. Door een doordachte volumewerking, een slimme organisatie van de wooneenheden en een sterke connectie met de omgeving, ontstaat een woonmodel dat de voordelen van individuele en gedeelde woonvormen op een natuurlijke manier verenigt. Het resultaat is een hedendaags woonensemble waarin gemeenschappelijkheid en architectonische verfijning hand in hand gaan.

Bron WE-S architecten

  • Deel dit artikel

Onze partners