HENRY VAN DE VELDE AWARDS 26. WVDM Living Lab (MAKER architecten)

  • image
  • image
  • image
  • image
  • image
  • image
  • image
  • image
  • image
  • image
  • image
  • image

Van een speels museum voor beeldende kunst en een groene stadsroute die wijken opnieuw verbindt tot een circulair living lab met modulaire gevel en een sculpturale toren: het zijn maar enkele van de 27 projecten die een Henry van de Velde Award 26 in de wacht slepen. Maar wie met de Gold, Silver of Bronze Award binnen zijn categorie naar huis gaat, komen we pas te weten tijdens de feestelijke uitreiking in Bozar op dinsdag 27 januari 2026. Architectura telt af naar dat moment door in een artikelenreeks een aantal winnende architectuur- en interieurprojecten onder de aandacht te brengen. Vandaag: WVDM Living Lab, een bouwproject van MAKER architecten dat inzet op modulaire gestandaardiseerde oplossingen die hergebruik stimuleren. Door maximale compatibiliteit ontstaat een dynamische, door gebruikers gestuurde architectuur die aanpasbaarheid toelaat in functie van veranderende behoeften.

Het project WVDM Living Lab legt de link tussen de theorie en de praktijk van circulair bouwen. Als case worden 12 modules van de voormalige studentenkoten op de campus van de VUB ingezet, in 1972 ontworpen door Willy Van Der Meeren. Opdrachtgever VUB en ontwerpbureau MAKER architecten focussen daarbij niet op het eindresultaat, maar op het proces.

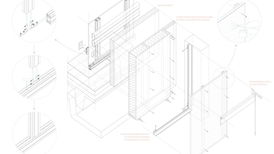
Meccano-systeem

De uitgewerkte strategieën werden aan de hand van verschillende tools geëvalueerd volgens vier pijlers: energie, erfgoed, duurzaamheid en economie. De modulaire structuur maakt het gebruik mogelijk van bouwpakketten met gestandaardiseerde, compatibele en uitwisselbare componenten, gemonteerd zoals een meccano. Dit optimaliseert hun productie- en bouwproces, vergemakkelijkt hun opslag en verhoogt hun potentieel voor hergebruik. Tijdens de uitvoeringsfase werd sterk ingezet op het hergebruik van materialen die vrijkwamen tijdens de renovatie zoals sanitaire toestellen, verlichtingsarmaturen, isolatiematerialen, tapijttegels, keukens, ...

De combinatie van onderzoek en uitvoering, van erfgoed en circulariteit, en van hergebruik en technische omkeerbaarheid, vereisten aangepaste profielen waarbij beroep werd gedaan op specifieke lokale experten.

De jury van de Henry van de Velde Awards 26 toont zich lovend over WVDM Living Lab als project waarbij onderzocht is hoe ruimtes en materialen kunnen gerecupereerd worden naar flexibele bouwsystemen: “Het onderzoek vertrekt vanuit de studentenkamers die Willy Van Der Meeren voor de Vrije Universiteit Brussel ontwierp. Het gaat na wat je allemaal kan doen met de bestaande materialen als je ze opnieuw wilt gebruiken in modulaire, toekomstgerichte bouwsystemen, met respect voor de bestaande vormentaal. Het nodigt nieuwe projecten uit om na te denken over hoe je materialen niet alleen nu maar ook morgen kan inzetten.”

Op de website van de Henry van de Velde Awards doet MAKER architecten het WVDM Living Lab kort uit de doeken:

Wat maakt jullie project zo bijzonder?

Het project wil een antwoord bieden op een actuele en urgente vraag: Hoe kunnen we op een duurzame manier naoorlogse architectuur renoveren? En welke strategieën kunnen daarvoor worden toegepast? Het gaat daarbij niet enkel om een circulaire renovatie, maar evenzeer om het ontwikkelen van opschaalbare en reproduceerbare circulaire strategieën.

De gelaagde opbouw – startend vanuit een casco – maakt het mogelijk om bouwpakketten samen te stellen op maat van de functionele en comforteisen van de ruimtes. Zo ontstaat een materialenbank die generisch en schaalbaar is in concept, maar tegelijk specifiek inzetbaar afhankelijk van de toepassing. Op die manier ontstaat een veerkrachtige architectuur, afgestemd op de ruimte en het gebruik, maar ook aanpasbaar aan veranderende randvoorwaarden."

Hoe draagt het bij tot een betere wereld?

Het project focust op drie centrale thematieken:

  1. Ruimtelijke en technische omkeerbaarheid. De bouwschil en de binnenwanden zijn ontworpen volgens het kit-of-parts-principe: polyvalente, compatibele en hanteerbare bouwcomponenten, gevormd volgens gestandaardiseerde maatprincipes en omkeerbaar geassembleerd, vergelijkbaar met een meccano-systeem.
  2. Hergebruik van materialen. Er is ingezet op zowel in situ hergebruik (van o.a. de draagstructuur, sanitaire cellen, terrastegels en fontexpanelen) als ex situ hergebruik (zoals sanitaire toestellen, verlichtingsarmaturen, tapijt, keukenelementen en isolatiemateriaal)
  3. Milieuvriendelijke materialen. Er zijn materialen gekozen met een lage milieu-impact, waaronder grasvezelisolatie, houtconstructies (houtskelet) en mineraalgebaseerde materialen.

Hebben jullie nog verdere plannen met dit project?

  • Opschalen - VUB. De meer dan 300 modulaire studentenkamers op de VUB-campus dreigden ooit gesloopt te worden. Vandaag fungeren de 12 modules binnen dit project niet alleen als katalysator voor behoud, maar vormen ze ook het startpunt voor een circulair renovatiemodel dat toepasbaar is op de overige gebouwen. Ondertussen zijn al 56 rode modules gerenoveerd volgens één van de ontwikkelde strategieën, en staat een gelijkaardig traject gepland voor evenveel blauwe modules.
  • Opschalen – MAKER. De ontwikkelde detail-, materialen- en evaluatiebank is uitgegroeid tot een praktische tool voor het bureau. In verschillende lopende projecten worden de onderzoeksresultaten toegepast om gelaagde . en omkeerbare bouwpakketten samen te stellen, aangepast aan de specifieke context en noden van elk project.

Op de website van de Henry van de Velde Awards 26 ontdek je alle projecten die dit jaar in de prijzen zijn gevallen.

Bron Henry van de Velde Awards

  • Deel dit artikel

Onze partners