Hoofdkantoor Greenpeace België: de verborgen kwaliteiten van een oud orgelatelier (archipelago)

  • image
  • image
  • image
  • image
  • image
  • image
  • image
  • image
  • image
  • image
  • image
  • image
  • image
  • image
  • image
  • image
  • image

In het hart van Brussel, verscholen in een dichtbebouwd bouwblok, heeft Greenpeace België een nieuw onderkomen gevonden. Architectenbureau archipelago transformeerde een voormalig orgelatelier tot een duurzame, flexibele werkplek. Het project combineert een innovatieve herbestemming met een minimale milieu-impact en creëert een dynamische omgeving voor de activistische organisatie. De renovatie vertrekt vanuit het principe van ‘sufficiëntie’, waarbij enkel wordt toegevoegd wat strikt noodzakelijk is. Bovendien zijn de ruimtes niet klassiek ingedeeld, maar afgestemd op de uiteenlopende activiteiten van Greenpeace, van vergaderen en focuswerk tot zelfs… muurklimmen​.

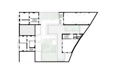
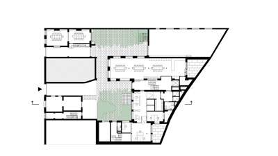
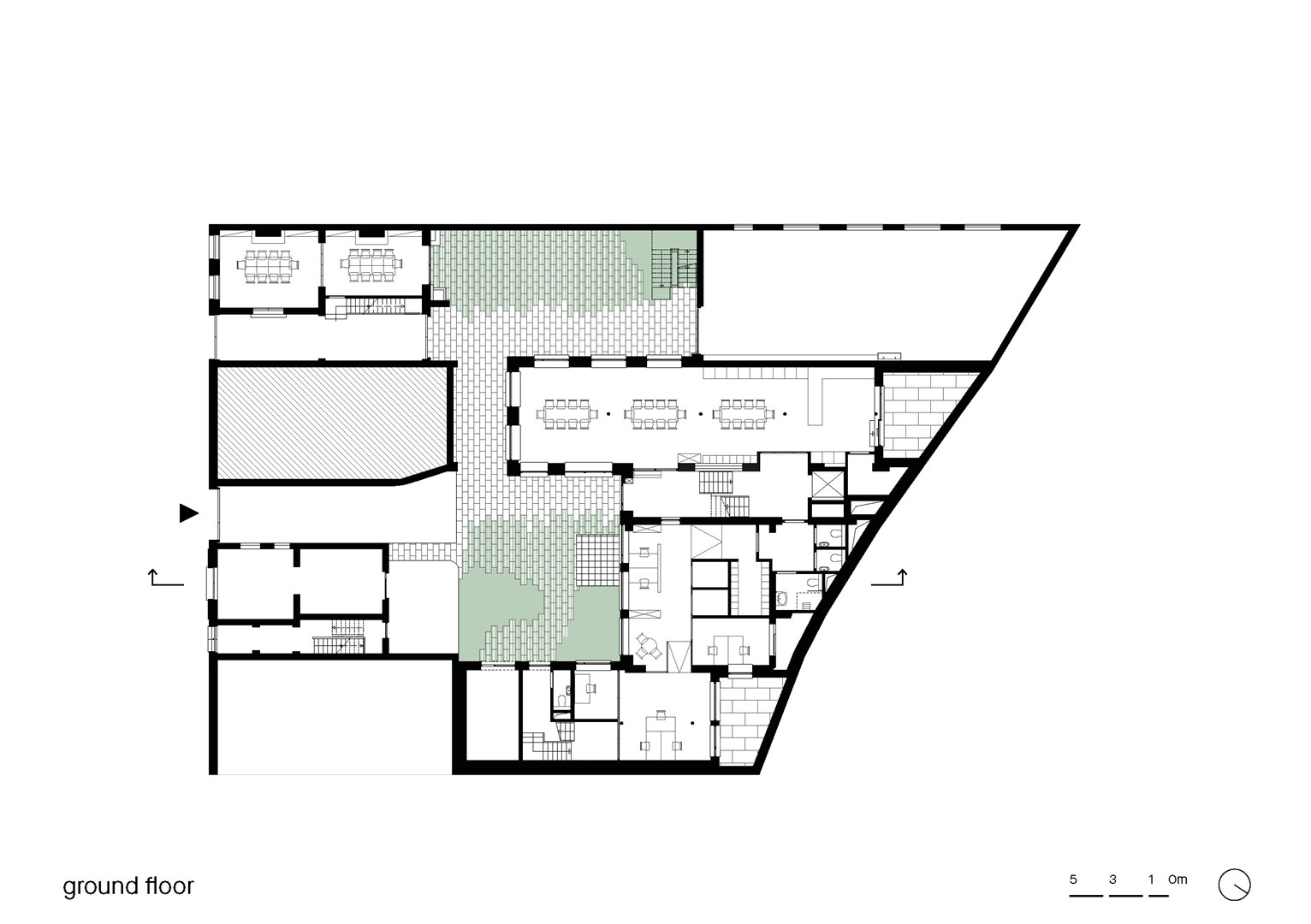
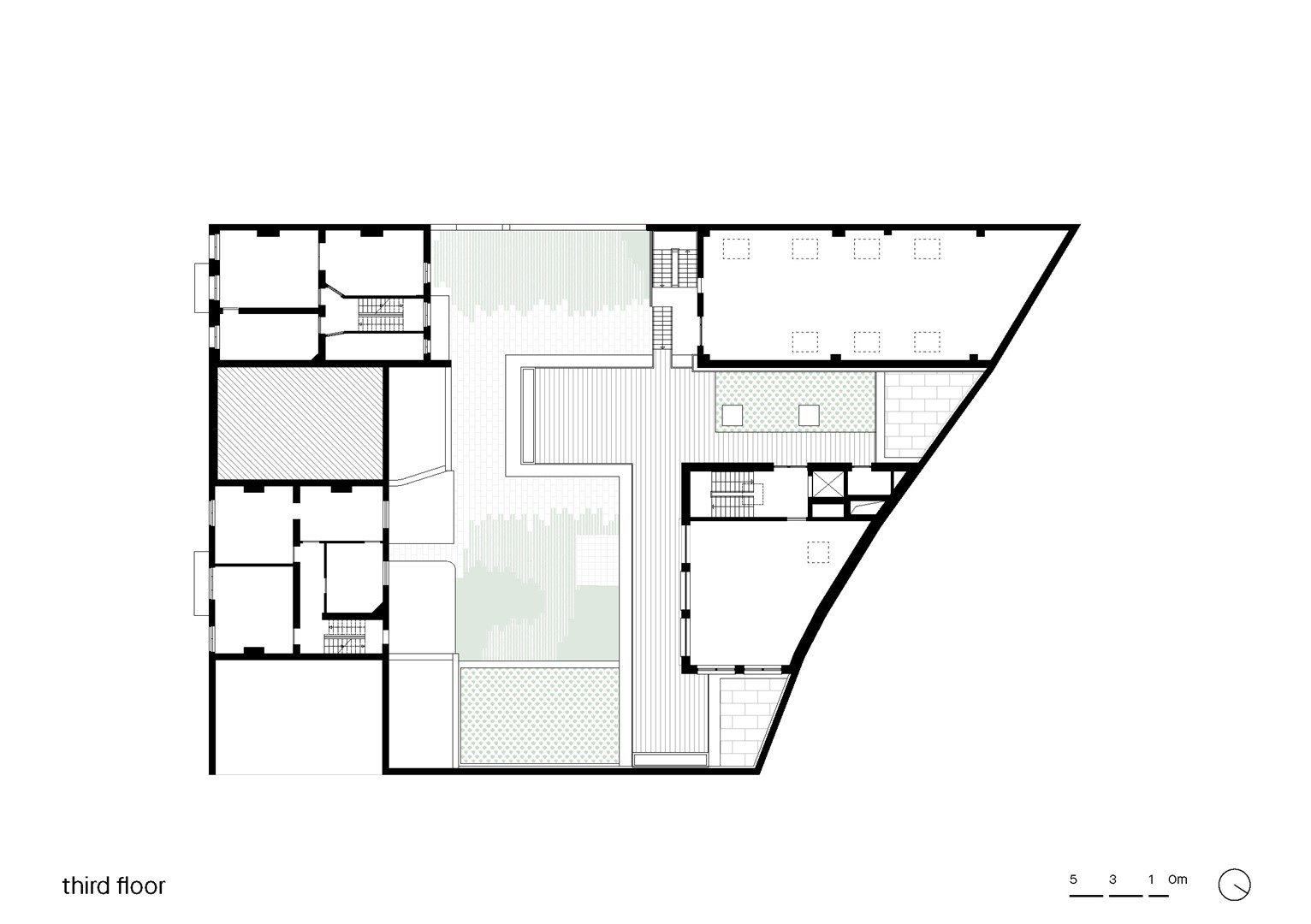
Het nieuwe hoofdkantoor is gehuisvest in een pand dat ooit de Manufacture d’Orgues de Bruxelles was. Archipelago onthulde de verborgen kwaliteiten van deze industriële structuur door middel van een ‘match-making’-benadering: bestaande ruimtelijke en klimatologische kenmerken werden gekoppeld aan de activiteiten van Greenpeace. Dit resulteerde in een low-tech, high-quality werkomgeving die zowel functioneel als energiezuinig is​.

Sufficiëntie als ontwerpprincipe

Centraal in de renovatie stond het principe van ‘sufficiëntie’, waarbij eerst werd gekeken naar wat al beschikbaar was in termen van structuren en energie. In plaats van te slopen en opnieuw op te bouwen, koos archipelago ervoor om bestaande elementen maximaal te benutten en slechts ‘net genoeg’ toe te voegen voor de specifieke noden van Greenpeace. Zo blijft de ecologische voetafdruk beperkt, terwijl de historische identiteit van het gebouw behouden blijft​.

Een bijzonder aspect van het ontwerp is de ‘activity-based’ aanpak, waarbij verschillende werkactiviteiten zoals vergaderen, focuswerk, informele ontmoetingen en zelfs muurklimmen ruimtelijk werden geclusterd. Door ruimtes te delen met andere organisaties, stimuleert het gebouw niet alleen efficiënt ruimtegebruik maar ook sociale interactie en gemeenschapsvorming. Gedeelde faciliteiten, akoestische ingrepen en flexibele zones zorgen ervoor dat uiteenlopende activiteiten gelijktijdig kunnen plaatsvinden zonder elkaar te hinderen​.

Architecturale puzzel

Het gebouw is georganiseerd als een opeenvolging van binnen- en buitenruimtes, publieke en private zones, en diverse binnenklimaten. Zo is het voormalige orgelatelier nu een werkplaats voor Greenpeace-activisten, terwijl de voorste rijhuizen gastenkamers huisvesten. Tussen deze zones in liggen overgangen die natuurlijke lichtinval, ventilatie en interactie maximaliseren. Dit flexibele ontwerp weerspiegelt de dynamische en steeds veranderende werking van Greenpeace​.

Met deze transformatie toont archipelago hoe architectuur met een lage milieu-impact een hoge ruimtelijke kwaliteit kan opleveren. Het nieuwe hoofdkantoor van Greenpeace België is zo niet alleen een efficiënte en duurzame werkplek, maar ook een inspirerend voorbeeld van hoe hergebruik en sufficiëntie kunnen leiden tot innovatieve architectuur.

Bron archipelago

  • Deel dit artikel

Onze partners