Hybride en aanpasbaar parkeergebouw als dynamische overgangszone tussen stadsrand en centrum (archipelago & POLO)

  • image
  • image
  • image
  • image
  • image
  • image
  • image
  • image
  • image
  • image
  • image
  • image
  • image
  • image
  • image
  • image
  • image
  • image
  • image
  • image
  • image
  • image
  • image
  • image
  • image
  • image
  • image
  • image
  • image

De Mobility Hub van de ontwerpbureaus archipelago en POLO aan de Eandistip in Mechelen toont een nieuwe visie op het parkeergebouw. De circulaire structuur biedt naast ruimte voor het parkeren van auto’s en fietsen ook twee publieke dakterrassen, box-in-box kantoren en een buurtwinkel. De structuur anticipeert bovendien een geleidelijke verschuiving naar meer gedeelde en zelfrijdende auto’s. Met meer compacte parkeersystemen komt zo ruimte vrij voor aanvullende functies in het gebouw. Als deel van een grotere stadsontwikkeling, zal de Mobility Hub een dynamische overgangszone worden die een vlotte doorgang ondersteunt tussen stadsrand en centrum.

Aanpasbare structuur

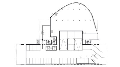
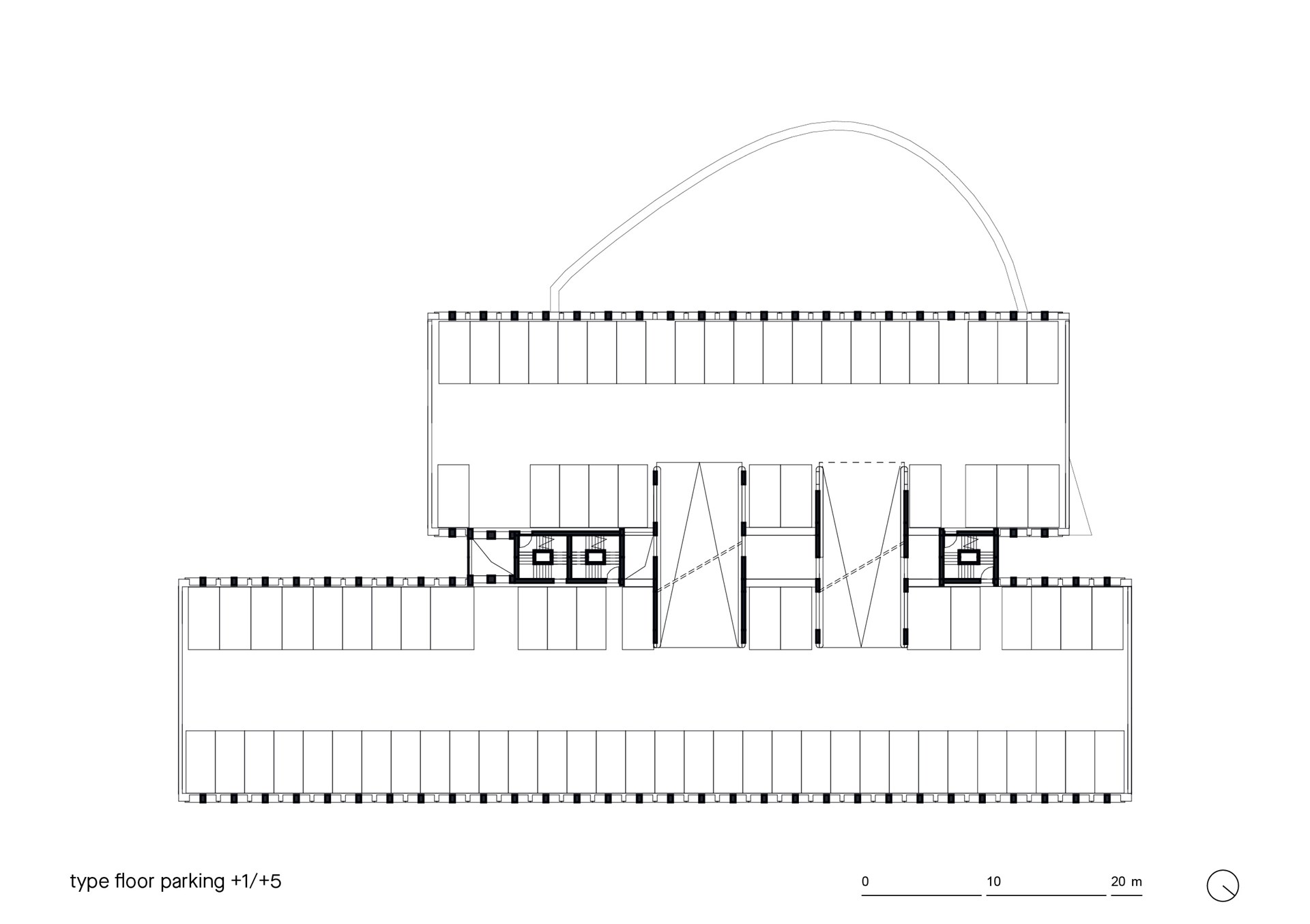
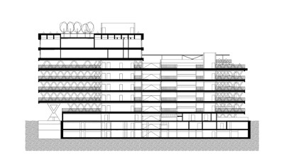
Vanaf de eerste ontwerpfase is rekening gehouden met verschillende scenario’s voor toekomstig gebruik. De ontwerpers hebben daarom een structuur bedacht die toelaat om het programma flexibel doorheen het gebouw te plaatsen, volgens de behoeften van toekomstige gebruikers, de buurt en de nieuwe ontwikkelingen aan Eandistip. De grondplannen zijn volledig open met behulp van een dragende gevel uit geprefabriceerde betonnen X-componenten die samen een ruitvormig grid vormen. In doorsnede behoudt elke verdieping een uitzonderlijke hoogte van 336 cm, zonder doorhangende balken. Samen met het box-in-box principe voor functies die geïsoleerd worden, zoals de kantoren op de twee bovenste verdiepingen, leidt dit tot maximale variaties in het programma en de indeling van het gebouw.

De circulatiekern is strategisch geplaatst tussen de twee volumes om zo min mogelijk een obstakel te vormen en gemakkelijk toegang te geven tot de verschillende functies in het gebouw. Bovendien is met de overloop van de trappen de mogelijkheid geïntegreerd in het ontwerp om split-levels toe te voegen voor een compactere, geautomatiseerde parkeergarage. Het dak is uitgerust met zonnepanelen (capaciteit van ca.170 kWp), waarbij de helft van de elektriciteitsproductie naar de oplaadinfrastructuur voor auto's en fietsen gaat. De kantoren en de supermarkt halen energie uit de bodem via geothermie.

 

Modal shift

Het parkeergebouw speelt een belangrijke rol in de toekomstige stadsontwikkeling. Om auto's uit de binnenstad te houden, worden daarom nieuwe oplossingen gevonden, zoals de Mobility Hub. Aan de rand van Mechelen biedt het nieuwe parkeergebouw automobilisten de mogelijkheid om hun voertuig te parkeren en over te stappen op openbaar en duurzamer vervoer. Het ontwerp van het parkeergebouw volgt de modal shift in mobiliteit door zich te kunnen aanpassen aan verschillende parkeerscenario's. Terwijl er een voor de hand liggende keuze is om het fietsparkeren uit te breiden, is er ook de optie van zelfrijdende en/of gedeelde auto’s die minder parkeerruimte innemen, waardoor er ruimte vrijkomt voor andere functies in het gebouw.

 

Stadsontwikkeling

Als openbaar gebouw biedt de Mobility Hub meer dan alleen parkeerruimte. Twee stedelijke terrassen met een panoramisch uitzicht verbinden het gebouw met de stad Mechelen en de opkomende woonwijk aan Eandistip. Deze terrassen kunnen worden gebruikt door kantoormedewerkers (overdag) en voor publieke evenementen ('s avonds of in het weekend). Na verloop van tijd zal de bovenste verdieping een tuinterras worden met volgroeide bomen. Op de begane grond maakt het nieuwe Welkomstplein een verbinding tussen de Mobility Hub en het dagelijks leven in de woonwijk. De gebogen plint suggereert een vloeiende beweging in en uit het gebouw en verwijst naar de ambitie om een sterke structuur te maken waarin verschillende stromen kunnen samenkomen en uiteenlopen.

Bron archipelago & POLO

  • Deel dit artikel

Onze partners