Kanaalsite Wijnegem wordt levendige en diverse woonwijk (1)
Langsheen het Albertkanaal, nabij Wijnegem wordt een volledige kanaalsite de komende jaren omgevormd tot een levendige en gevarieerde woonwijk met plaats voor zowel wonen als werken. Het ontwerp is in handen van meerdere toonaangvende architectenbureaus waaronder Michel Desvigne (landschapsaanleg), Bogdan & Van Broeck Architects, Stéphane Beel Architecten en Coussée en Goris.

Een historische site
Na de aanleg van de Kempische vaart, die de Antwerpse haven verbond met de Maas, startte de familie Meeus in 1857 een likeurstokerij in Wijnegem. Op korte termijn groeide de stokerij uit tot een van de grootste bedrijven van de provincie Antwerpen. De omvorming van de vaart tot het Albertkanaal betekende een nieuwe bloei voor de site. In 1956 nam de Mouterij Albert, later overgenomen door Heineken, zijn intrek in de Stokerijstraat. Het werd de grootste moutverwerker van Europa. In 1998 kocht Axel Vervoordt de Kanaalsite en vestigde er zijn kunsthandel in een deel van de gebouwen .
De oorspronkelijke architecten van de Kanaalsite hadden op de eerste plaats vooral oog voor de functionaliteit van de industriële gebouwen, maar hierbij ging tevens aandacht uit naar hun kwaliteit en esthetische verhoudingen. Net deze karakteristieken geven de volledige site een bijzondere intrinsieke waarde voor de toekomst. De voormalige bedrijfsgebouwen stralen een zekere eenheid uit, die zich leent tot zowel wonen als werken in de 21ste eeuw.
Krachtlijnen van het nieuwe project
Eenheid en diversiteit vormen als het ware de kernwoorden van het Kanaalproject. De eigenheid van het historische erfgoed wordt als prioritair beschouwd en wordt door de reconversie beschermd en verder geaccentueerd. Binnen deze eenheid wordt een duidelijke diversiteit gecreëerd die de site dynamiek en levenskwaliteit verleent. Vooreerst ontstaan door de inplanting van de gebouwen verschillende kernen en "dorpspleintjes" met telkens een eigen sfeer. Het geheel resulteert op die manier in een echte "buitenstad" om te wonen - geheel met ondersteunende functies - en te werken in een duurzame en ontspannende omgeving.

Het Kanaalproject tracht ook een oplossing te bieden voor de hedendaagse mobiliteitsproblematiek. Wonen en werken op één site en de aanwezigheid van diverse functies maken verplaatsingen overbodig en zorgen dat de Kanaalsite als een geheel werkt. Hierdoor kan ze ervaren worden als een rustpunt, wat nog verder versterkt zal worden door de natuur en cultuur in en rond de hele site.
De herintegratie van het industriële erfgoed ten slotte, samen met het origineel en efficiënt gebruik van de ruimte bieden een wezenlijke meerwaarde voor de duurzaamheid van de leefomgeving.
Als mentor van het project licht Axel Vervoordt zijn visie op het project Kanaal toe in een korte video.
Bekijk de video hier.
Een hoogwaardig stedelijk complex
De ambitie van het Kanaalproject is om van de huidige monofunctionele site een hoogwaardig stedelijk complex voor gemengd wonen en werken te maken, ondersteund door enkele aanvullende faciliteiten.
Behalve de interne meerwaarde wil het project ook de relatie van de Kanaalsite met de omgeving versterken. Drie omliggende ruimtelijke structuren zijn daarbij bepalend:
• De sterke lijnfiguur van het Albertkanaal
• De groene Schijnvallei die Antwerpen met het buitengebied verbindt
• En de residentiële wijk met vrijstaande huizen
Door een betere toegankelijkheid en het vernieuwde contact met het water wil de site een ontwikkelingspool voor wonen en werken worden en een meerwaarde voor de naburige woonwijk.
Het beeldbepalende historisch-industriële karakter van de site en de krachtige, vreemde typologie van de gebouwen vormen de ontwerprichtlijn voor de verdere ontwikkeling van de site. De positieve eigenschappen ervan worden versterkt, de negatieve geminimaliseerd. De nieuwe transformaties en toevoegingen zetten door middel van hedendaagse architectuur de gelaagdheid in de tijd door.
Van visie tot realisatie
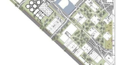
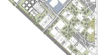
Het stedenbouwkundig plan, ontworpen door Jens Aerts, is een sterk kader voor de beoogde ruimtelijke en functionele ontwikkeling van de site. Het duidt de deelprojecten aan en definieert de enveloppen voor de bebouwing en voor de verschillende buitenruimtes. Om het plan op een architecturaal hoogstaande manier uit te werken, werden drie architecten en een landschapsarchitect voor de buitenruimte geselecteerd.
Een team van toparchitecten
Het masterplan dat als leidraad dient voor de invulling van het architecturale totaalprogramma gaat uit van de stelling dat degelijke architectuur sterk en authentiek is maar tegelijk ook rustig en sereen. Zo dient de architectuur op de site rekening te houden met het karakter van de bestaande gebouwen én met de levenswijze van de toekomstige bewoners. Bovendien wilden de ontwikkelaars tevens architectuur die in een open dialoog staat met haar omgeving.

Om het verlangen naar authenticiteit én diversiteit te realiseren werd doelbewust gekozen voor verschillende architecten die autonoom hun deel van het masterplan uitwerken. Elk van de geselecteerde architecten dient hierbij een boeiende eigenheid te geven aan zijn deelplan en tegelijk een sterke interactie met de andere delen van de site te creëren. Uiteindelijk werd gekozen voor de volgende architectenbureaus: Michel Desvigne (landschapsaanleg), Bogdan & Van Broeck Architects, Stéphane Beel Architecten en Coussée en Goris.
Hier op Architectura.be zullen we u in diverse artikels laten kennismaken met de verschillende projecten die op de site zullen gerealiseerd worden.