Kinderlijke spontaniteit inspireert Tsjechische kleuterschool

  • image
  • image
  • image
  • image
  • image
  • image
  • image
  • image
  • image
  • image
  • image
  • image
  • image
  • image
  • image
  • image
  • image
  • image
  • image
  • image
  • image
  • image
  • image
  • image

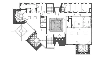
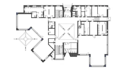
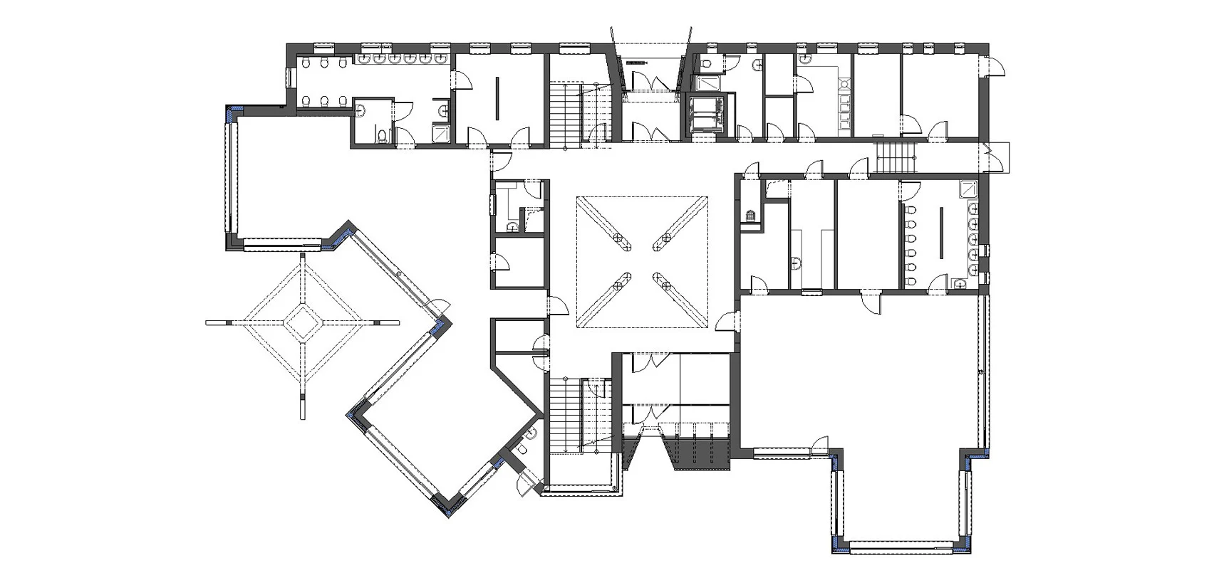
Felgekleurde volumes en hoekige vormen karakteriseren een nieuwe kleuterschool in de buurt van Praag. Met hun ontwerp wilden de architecten van het Tsjechische bureau Architektura de speelsheid uit de kindertijd weerspiegelen. De Větrník Kindergarten beschikt over een turnzaal, een tuin, klaslokalen en een speeltuin, verspreid over gekleurde blokken die vertakken vanuit een centrale witte structuur.

Het ontwerp is gebaseerd op de kindertijd, met een indeling die speelsheid en spontaniteit wil oproepen, en vormen die holen en tenten nabootsen. "De grillige plattegrond is gebaseerd op de afwezigheid van geometrie in de geest van het kind, een andere volgorde, speelsheid en spontaniteit", vertelt Architektura-directeur David Kraus.

 

FELGEKLEURDE BLOKKEN ALS KLASLOKALEN

Elk van de felgekleurde blokken van Větrník Kindergarten is een klaslokaal, terwijl de rest van de faciliteiten zich in de witte volumes bevindt. "De kinderen zelf waren essentieel - hun spel, beweging, visie en schaal," voegde Kraus eraan toe. "De spontaniteit, chaos, onvoorspelbaarheid, puurheid, nieuwsgierigheid en optimisme van kinderen hadden invloed op het ontwerp."

De straatgevel van Větrník Kindergarten heeft een ingang die op een ruimteschip moet lijken, naast een levende muur waarvan Architektura hoopt dat ze zal groeien en dikker worden om de hele hoogte te bedekken.

 

SPEELNET MET BOOMSTAMMEN

Via de inkom worden bezoekers en kinderen ontvangen in een atrium, dat zich in het witte middenblok bevindt. Hier zijn ook de kantoren en andere praktische voorzieningen. Een groot speelnet overspant het atrium, ondersteund door boomstammen. Het gebied eronder dient als een gemeenschappelijke ruimte die plaats biedt voor muziek, theater en tentoonstellingen.

Vanuit het atrium vertakken zich de individuele klaslokalen, die zijn verbonden met de tuin en bekroond met vierkante daklichten. De klaslokalen van Větrník Kindergarten hebben ook driehoekige ramen, waarvan sommige zijn omzoomd door gekleurde kozijnen. Schuine kolommen en felgekleurde vloeren trekken de speelse vormgeving van het gebouw door in het interieur.

 

PRETPARK

Buiten is een speeltuin met klimrekken en andere toestellen die refereren aan een ​​pretpark. Momenteel is de tuin nog in aanbouw. Maar de ontwerpers hopen dat het een door de natuur gevulde ruimte zal worden die fantasierijk spel zal stimuleren. "Het idee was om een leefruimte te ontwerpen vol amusementsattracties, klimrekken en spelelementen. Een soort landschap van kinderfantasie, misschien zelfs een pretpark", zei Kraus."We wilden een object voor kinderen bouwen dat geen instelling is. Het is speels en het zal hopelijk de ontwikkeling van creativiteit bevorderen."

Bron Dezeen

  • Deel dit artikel

Onze partners