Kruisbestuiving centraal in nieuw schoolgebouw PIKOH Hasselt (BOT architektuurcollectief & import.export ARCHITECTURE)

  • image
  • image
  • image
  • image
  • image
  • image
  • image
  • image
  • image
  • image
  • image
  • image
  • image
  • image
  • image
  • image
  • image
  • image
  • image
  • image
  • image
  • image

Met trots presenteert BOT architektuurcollectief samen met import.export ARCHITECTURE het nieuwe "Gebouw M" voor de Provinciale Kunsthumaniora Hasselt (PIKOH). Dit innovatieve, multifunctionele schoolgebouw biedt ruimte aan 264 leerlingen in de beeldende, media- en podiumkunsten. Gelegen aan de rand van het Kapermolenpark vormt het gebouw een toekomstgerichte leeromgeving waar samenwerking en kruisbestuiving tussen disciplines centraal staan. Met zijn slimme ontwerp en duurzame aanpak is Gebouw M een aanwinst voor zowel de school als de stad Hasselt.

De nieuwbouw is gerealiseerd in opdracht van de Provincie Limburg en kwam tot stand in nauwe samenwerking met een multidisciplinair team, waaronder MoMENTING, Studiebureau Raco, Bureau Bouwtechniek, Studio Basta en PS-Acoustics. Dankzij de vakkennis van aannemer Dethier kon het project met precisie worden uitgevoerd. De aanleiding voor de bouw was de exponentiële groei van de school, wat de noodzaak benadrukte van een nieuwe ruimte voor de jongste leeftijdsgroep. Het gebouw voorziet in klaslokalen, ateliers, een refter, polyvalente zaal, sporthal en administratieve ruimtes en sluit naadloos aan op de bestaande infrastructuur van de school aan de Gouverneur Verwilghensingel.

Duurzame omgeving

Bij het ontwerp werd uitgegaan van een masterplan voor de volledige kunstencampus. Het resultaat is een helder en compact gebouw dat optimaal gebruik maakt van de beschikbare ruimte. Door de specifieke inplanting blijft er voldoende open ruimte over voor een ontharde, vergroende speelplaats. Deze ruimte biedt diverse zones voor spel, sport en ontspanning en versterkt de connectie van het gebouw met de omliggende natuur, zoals de Demer en het Kapermolenpark. Het ontwerp onderstreept daarmee het belang van een inspirerende en duurzame omgeving voor de leerlingen.

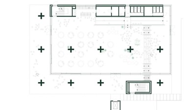
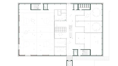
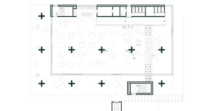
Heldere modulariteit

Een bijzonder aspect van het ontwerp is de pedagogische vertaling naar de architectuur. Het gebouw is ontworpen zonder dirigerende gangen en maakt gebruik van “plug and play”-lokalen, die flexibel kunnen worden ingezet voor theorie- en praktijklessen. De kolom- en balkenstructuur in staal zorgt voor een heldere modulariteit, waardoor de ruimtes eenvoudig aanpasbaar zijn aan veranderende noden. Dit maakt het mogelijk om een fluïde en toekomstgerichte leeromgeving te bieden. Centraal in het gebouw bevindt zich een open ruimte die flexibel kan worden ingevuld als atelier, werkhoek, creatief labo of leerzone.

Kruisbestuiving

De organisatie van de klas- en praktijklokalen aan de gevels van het gebouw biedt niet alleen veel natuurlijk licht, maar zorgt ook voor een centrale open ruimte. Deze ruimte functioneert als verbindend element waar interactie tussen leerlingen en vakken wordt gestimuleerd. Door theorie- en praktijklokalen op hetzelfde niveau te plaatsen, wordt de kruisbestuiving tussen disciplines verder bevorderd. Dit ontwerp weerspiegelt de visie van de school, waarin samenwerking en creativiteit centraal staan.

Bron BOT architektuurcollectief

  • Deel dit artikel

Onze partners