Contactformulier

Renson

Kuba & Vahedi realiseren nieuw evenwicht tussen oud en nieuw bij renovatie en optopping in Elsene

  • image
  • image
  • image
  • image
  • image
  • image
  • image
  • image
  • image
  • image
  • image
  • image
  • image

In de Brusselse deelgemeente Elsene bevat het straatbeeld een nieuw architecturaal accent. Bij het grondig verbouwen van een woongebouw koos architect Jan Kubasiewicz van ontwerpbureau Kuba & Vahedi architecture and interior voor een aluminium gevelbekleding. Zowel het gelijkvloers als de penthouse springen met hun donkerbruine dynamische gevelvlak meteen in het oog. “Zo ontstaat een nieuw evenwicht tussen oud en nieuw”, aldus de architect.

Een gebouw afbreken om een nieuw gebouw in de plaats te zetten zorgt voor een grote CO2-voetafdruk. Dit wil niet zeggen dat je elk gebouw per se moet laten staan, maar nu de wereld en vooral het klimaat zo sterk verandert, is duurzaam bouwen meer dan ooit de boodschap. Renovatie draagt zijn steentje daar zeker toe bij: de CO2-uitstoot is sowieso lager omdat een bestaand gebouw behouden blijft. Als je als architect bovendien kan vertrekken van een mooie basis vol potentieel, zoals bij dit pand in het Brusselse, kan je ook daar zonder twijfel een sterke en stijlvolle transformatie van maken.

70 jaar geschiedenis

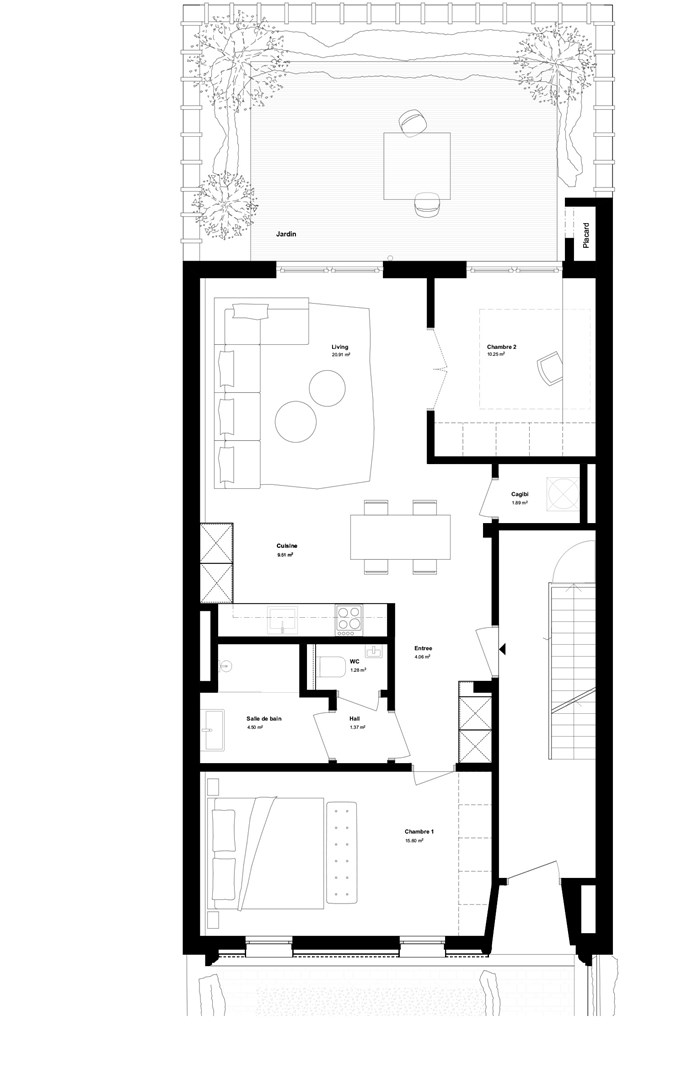
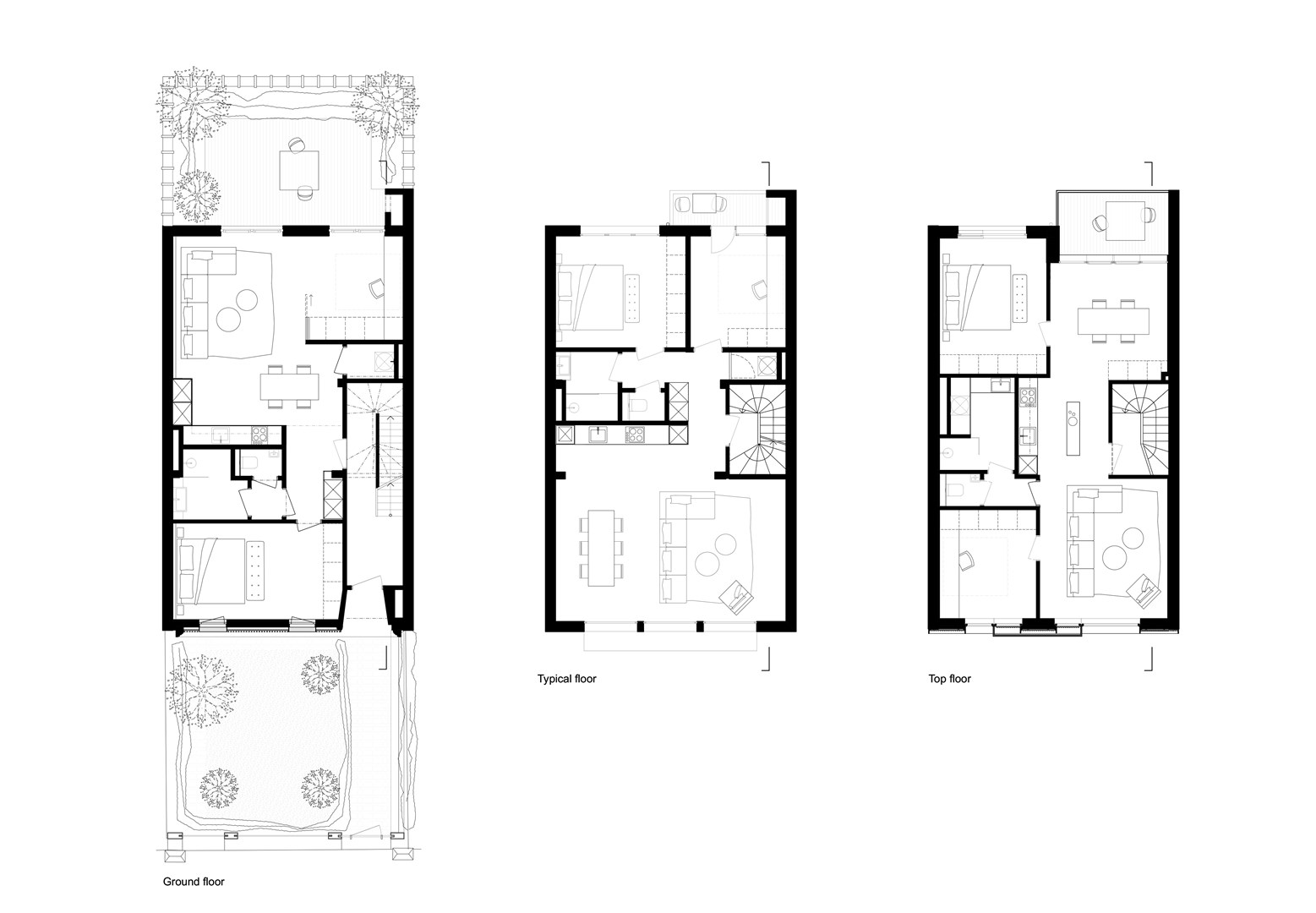
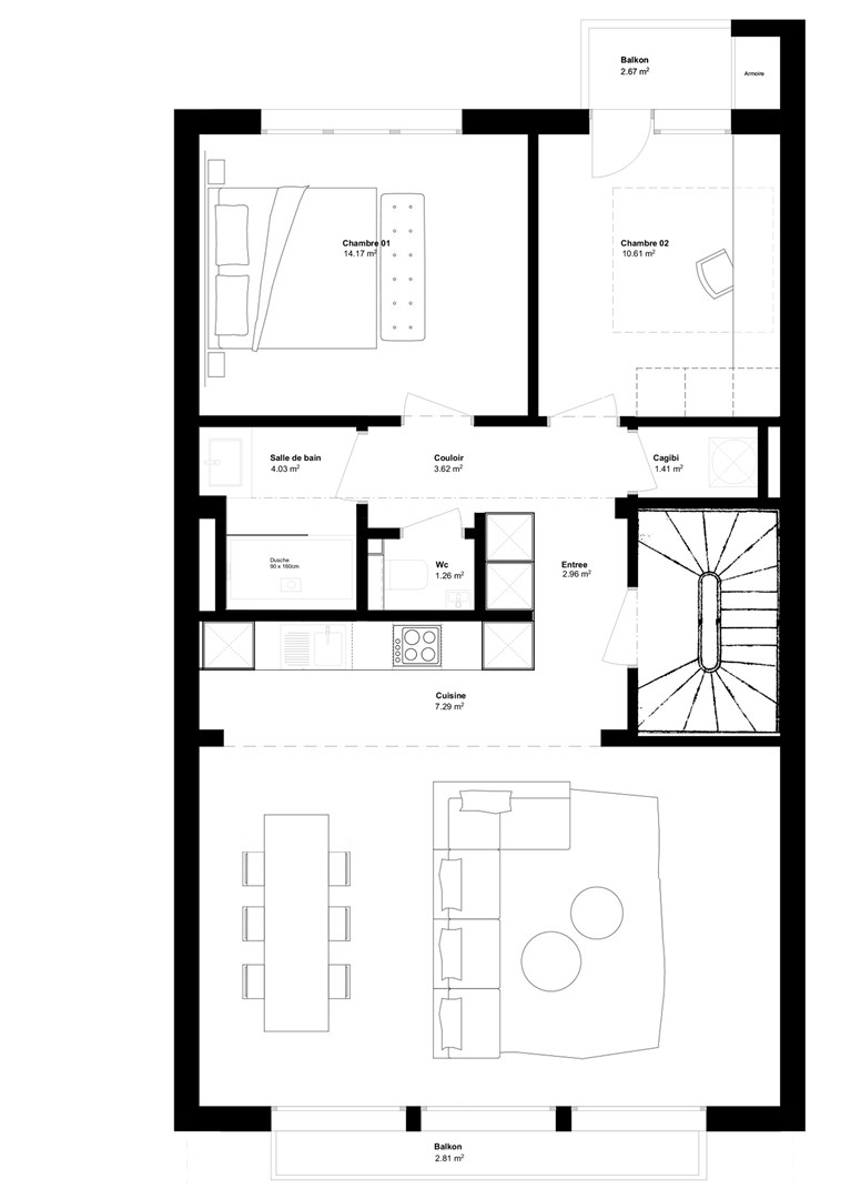
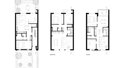
Het gebouw in de Avenue du Pesage in Elsene dateert van 1955. Vlakbij de VUB, het Terkamerenbos en diverse ambassades is de ligging van dit pand een absolute troef. Potentieel te over dus. Van drie appartementen en een commerciële ruimte werd het gebouw getransformeerd naar in totaal vijf wooneenheden, één per verdieping, telkens met 2 slaapkamers en buitenruimtes. Op het dak werd een nieuwe verdieping toegevoegd. De nieuwe woning op het gelijkvloers werd geconcipieerd rond zijn zonnige, groene achtertuin. Het nieuwe penthouse op het dak krijgt dan weer van ’s ochtends tot ’s avonds overvloedig daglicht binnen. Dat zonlicht geeft de bijzondere houten plafondbekleding in het stedelijke woonvolume een nog warmere uitstraling.

Uiteraard stond ook energie-efficiëntie voorop bij deze totaalrenovatie. De voor- en achtergevel werden grondig geïsoleerd en zonnepanelen voorzien deels in de energiebehoeften van het gebouw. De keuzes voor modern en duurzaam wooncomfort gaan hand in hand met authentieke elementen. Zo geven de originele moulures, de trappen, het visgraatparket en de ruime hoogtes de woningen een charmante sfeer en uitnodigend karakter. Ook bij de renovatie van de gevel lag de focus op het behouden en versterken van de historische ziel van het gebouw. Voor de nieuwe elementen was de uitdaging om een materiaal te vinden dat past bij de hoogwaardige, stedelijke en tegelijk poëtische uitstraling van het woonconcept.

Gesofisticeerde look met industrieel karakter

Bakstenen, zandstenen en metaalwerk definieerden de oorspronkelijke gevel van dit woongebouw. Het was een expliciete vraag van de gemeente Elsene om nieuwe woningen een architecturaal accent te geven in het straatbeeld. Zodoende vond architect Jan Kubasiewicz het aluminium gevelbekledingssysteem Linarte van Renson. “We zochten een spannend gevelmateriaal voor het gelijkvloers én de totaalrenovatie van het penthouse appartement. Liefst eentje dat net door het nodige contrast een nieuw evenwicht tussen oud en nieuw realiseerde. De traditionele materialen overtuigden ons niet. De zoektocht naar industriële materialen met een eigen look bracht ons bij Linarte.”

Het aluminium gevelbekledingssysteem van Renson sprak het architectenteam aan door zijn hoogwaardige en strakke afwerking, stedelijke uitstraling en de grote flexibiliteit qua gebruik. Jan: “We werkten met profielen van 30 millimeter om een lichtspel en een filigrane, gesofisticeerde look te creëren die bij het DNA van het volledige concept past. Met de donkerbruine kleur springt de gevelbekleding eruit tegenover het bestaande gebouw maar past het tegelijk ook naadloos in de compositie. De nieuwe gevel combineert een industrieel karakter met stedelijke flair in een tijdloze stijl. We konden een sterke detaillering uitwerken en gemakkelijk kleine hoekjes wegwerken, met dank aan het modulaire karakter van de individuele profielen.”

Gezond ademen binnenshuis

Niet enkel voor de gevel koos de architect voor Renson. Het ventilatiesysteem voorziet de gerenoveerde leefruimtes op elk moment van de dag van gezonde binnenlucht. “Een gezond binnenklimaat is anno 2025 even evident als een gordel of ABS in een auto”, vindt Jan Kubasiewicz. “Voor gebouwen in de stad is het beheersen van de luchtvochtigheid en luchtkwaliteit essentieel voor een gezond wooncomfort. Dit zou vanzelfsprekend moeten zijn.”

Invisivent-raamventilatieroosters zijn onzichtbaar in het nieuwe schrijnwerk ingewerkt. Ze dragen bij aan de goede energiescore van het gebouw, maar zorgen in de eerste plaats vooral voor goede luchtdoorstroming en een gezond binnenklimaat. Bovendien heeft de permanente luchtdoorstroming in een stadswoning ook akoestische voordelen. Daarmee passen de Invisivents perfect in de designfilosofie van de architect, waar verborgen technieken modern wooncomfort garanderen. De componenten zijn namelijk zo ontwikkeld dat je ze gemakkelijk kan inbouwen, zonder zichtbare aansluitingen.