Longread: BIM & de kracht van co-creatie (CONIX RDBM Architects)

  • image
  • image
  • image
  • image
  • image
  • image
  • image
  • image
  • image
  • image
  • image
  • image
  • image
  • image
  • image
  • image
  • image
  • image
  • image
  • image
  • image
  • image
  • image
  • image
  • image
  • image
  • image
  • image
  • image
  • image
  • image
  • image

Als CONIX RDBM Architects terugblikt op de afgelopen drie jaar als BIM- en Revit-gebruiker, stelt het vast dat de grootste – en misschien wel belangrijkste – stap al ver in het verleden werd genomen. De ambitie en visie om single source te werken en dit bovendien met alle partners van het bouwproces was van meet af aan de doelstelling. Het ontbrak het bureau enkel nog aan een middel. BIM en Revit brachten de oplossing.

Deze long read toont de evolutie van CONIX RDBM Architects op het gebied van BIM. Het start met een korte geschiedenis om de overgang in haar context te plaatsen. De ‘nieuwe oude’ visie wordt toegelicht. Vervolgens tonen praktijkvoorbeelden de vooruitgang die het bureau boekt bij het BIM’en. De balans wordt opgemaakt. Wat zijn de lessons learned? Wat zijn de valkuilen en opportuniteiten? En waar schieten BIM-samenwerkingen voorlopig in tekort? Tenslotte blikt CONIX RDBM vooruit en effent ze het pad voor de toekomst.

 

BIM avant la lettre

Hoewel de ontstaansgeschiedenis ons ver terug in de tijd zou nemen, is het architectenbureau CONIX RDBM Architects ‘op papier’ nog relatief jong. In 2013 fuseerden RDBM Architecten & Adviseurs en CONIX Architects omwille van een gelijkaardige architecturale visie en complementariteit op het gebied van marktwerking en portfolio. Het bureau, met vestigingen in Antwerpen, Brussel, Terneuzen en Rotterdam, telt vandaag een 65-tal mensen met uiteenlopende disciplines. De projecten waaraan ze werken variëren van masterplanning tot productontwikkeling. Hoewel deze korte bureauschets op het eerste gezicht weinig relevant lijkt, is het wel degelijk belangrijk. Waarom? Deze samenloop van kennis, disciplines en mensen was voor CONIX RDBM het kantelmoment om definitief de stap naar BIM te zetten.

Die stap was voor het bureau achteraf gezien eerder klein. Meer nog, het was zelfs een logisch vervolg op het beleid dat RDBM Architecten & Adviseurs al voor de fusie nastreefde. Men werkte toen al volgens het principe van wat men nog het beste kan omschrijven als BIM avant la lettre. Het bureau introduceerde als een van de eerste het principe van het ‘reële meerwaardebouwen’ volgens een kwaliteitsplan. Dat plan omvatte een integraal beschrijvend bouwplan op prestatieniveau. De bedoeling hiervan was om de gebruiksprestaties zodanig voorwaarde scheppend vast te leggen zodat de prestatie bindend kon worden gecontracteerd nog voor dat sprake was van uitgewerkte bouwplannen.

Deze formule vroeg tegelijk om een aangepaste organisatiestructuur en werkmethodiek. De samenwerking tussen de verschillende teamleden was gericht op het verzamelen en structureren van alle informatie binnen een single source-model. De mensen die hieraan werkten kregen de functietitel ‘model manager’. Het waren vervolgens ook deze mensen, werkzaam in het kantoor in Terneuzen, die het management voor het eerst in contact brachten met het principe van BIM. Er was dus duidelijk sprake van een ­bottom-up interesse voor BIM, dat op dat moment de Nederlandse markt overspoelde. Het was ook in Nederland dat CONIX RDBM zijn eerste BIM-ervaring kende.

 

Interne organisatie

Toen in 2013 het bureau samensmolt tot CONIX RDBM Architects zag het de kans schoon die filosofie verder uit te diepen en als motor te gebruiken voor de interne én externe samenwerkingen tussen de verschillende vestigingen. De Autocad-software werd overboord gegooid en maakte plaats voor Revit, het softwareprogramma dat werken volgens BIM ondersteunt. Het betekende een nieuwe manier van werken. Het was niet langer een kwestie van tekenen, maar effectief bouwen. Virtueel dan weliswaar. Hieruit volgde dat de model manager zich meer focuste op het modeleren/virtueel bouwen dan op het tekenen. Bijkomend en zelfs even belangrijk was dat het plezier van de model manager ook intrinsiek verhoogde.

Drie jaar na het eerste project (Vrije Universiteit Brussel, zie infra) in BIM, heeft CONIX RDBM een 6-koppig BIM-team ter beschikking dat werkt vanuit het kantoor in Terneuzen. Dat team vormt spreekwoordelijk het technologische hart van de modelmanagers. Stelselmatig traint het bureau nu ook de modelmanagers van de overige vestigingen zodat iedereen continu op de hoogte is van de recente nieuwigheden.

 

Appelmans als inspiratie

De verworven mindset over de meerwaarde van BIM stimuleerde het management van CONIX RDBM Architects om een duidelijke boodschap naar de buitenwereld, en in het bijzonder de bouwwereld, te communiceren. In februari 2015 organiseerde het bureau in samenwerking met Autodesk twee BIM-events in Antwerpen en Brussel waarop verschillende BIM-gebruikers uit verschillende disciplines hun ervaringen deelden. De voordelen van BIM werden duidelijk, maar het nevenproduct van werken volgens BIM werd zodoende nog duidelijker: de kans om het aloude participatiemodel te herwaarderen lag voor het grijpen.

CEO-vennoot Frederik Jacobs schreef er voor Architectura.be een ambitieuze column over. Hij maakte de vergelijking met Antwerps bouwmeester Pieter Appelmans die voor de bouwwerken van de Onze-Lieve-Vrouwekathedraal in Antwerpen in 1419 zijn steenpakkers op de werf instructies gaf. Hoewel deze directe communicatie en aansturing vandaag volledig achterhaald is, meent Jacobs wel waardevolle lessen uit dit tafereel te kunnen trekken. 

 

“Toch vraag ik mij af of wij ook nu niet iets te leren hebben van de bouwgeschiedenis van Appelmans. Het bouwproces is sterk gefragmentariseerd en werkt hoe langer hoe minder vakoverschrijdend. Het is rigide en sterk gefaseerd. Kruisbestuiving is eerder beperkt.

Ik zie het BIM-verhaal als een potentiële katalysator om het aloude participatiemodel te herwaarderen. Dienen we niet onder het adagium ‘delen is vermenigvuldigen’ opnieuw leren samenwerken en co-creëren, om tegelijk ook intrinsiek te werkvreugde te verhogen? Zijn er geen reële kansen om de profit chain voor iedereen te verbeteren en zo nog meer toegevoegde waarde te leveren, zowel financieel als voor de maatschappij?”

 

Het bureau blijft er zich wel van bewust dat BIM een middel is, en geen doel op zich. Een belangrijke nuance. Het creëert enkel een context waarbinnen alle bouwparticipanten moeten ageren. Het initiatief ligt bij de bouwwereld. De afgelopen jaren heeft CONIX RDBM zich alvast bereid getoond en geëngageerd voor co-creatie en ketenintegratie.

 

In de praktijk

Hoe hebben die BIM-samenwerkingen zich dan concreet in de praktijk vertaald? Dat was en is een verhaal van continue leren, bijsturen en groeien. Onderstaande praktijkvoorbeelden vertellen hiervan het relaas. Ieder project was een stap voorwaarts. Een stap in de verdere implementatie van BIM en het gebruik van Revit. Het spreekt voor zich dat de projecten niet tot in de kleinste details worden beschreven. Treffende voorbeelden en praktijklessen worden aangehaald en ondersteund met beeldmateriaal.

 

Project XY Vrije Universiteit Brussel, Etterbeek: “Ambitieus pilootproject”

Project XY komt tegemoet aan de sterke groei die de VUB momenteel kent. En ook in de toekomst voorspelt de universiteit een verhoging van het aantal inschrijvingen. Ze investeert daarom in de aanleg van een nieuwe campus. Die beslaat 25.000 m2 nieuwbouw, waaronder in totaal 650 nieuwe studentenkoten en nieuwe infrastructuur: 2000 m2 onderwijs, 2400 m2 onderzoek, 800 m2 administratie en 1200 m2 cultuur. Die laatste ontvangt een nieuwe expositieruimte en het bekende KultuurKaffee.

Het geheel bestaat uit onderscheidende architectonische ontwerpen die gezamenlijk een stedelijke eenheid vormen. Het nieuwbouwcomplex geeft de aanpalende Triomflaan een sterker stedelijk aangezicht en bakent de campusruimte van binnenuit duidelijk af. De bijzonder verzorgde vormgeving van twee iconische gebouwen aan beide uiteinden van de groene toegangsboulevard verbeelden de relatie van de stad met de campus. De campus krijgt hierdoor een duidelijke ingang.

De keuze om dit project in BIM en Revit te realiseren was op z’n minst ambitieus te noemen. Het is immers een project van grote omvang, zowel in oppervlakte als in betrokken partijen. Het project bestaat uit verschillende gebouwdelen waarbij veel herhaling voorkomt. De verwachting was om de grote hoeveelheid gegevens en tekeningen met Revit beter onder controle te kunnen houden tijdens de immer aan wijzigingen onderhevige ontwerpfase.

Om alles mee in goede banen te leiden, werkte CONIX RDBM samen met C3A, BIMplan en ERWE. De samenwerking zorgde voor een plan van aanpak, opleiding en persoonlijke begeleiding.  CONIX RDBM-medewerkers volgden een C3A-basiscursus Revit en BIMplan zorgde als BIM-coördinator voor begeleiding op de werkvloer.

Tijdens het uitwerken van het project werd aandacht besteed aan een uniforme werkmethodiek, koppeling naar bestekscodering en het parallel opbouwen van een projecttemplate. Het team werd nog extra ondersteund door ERWE die het bouwen van intelligente componenten voor z’n rekening nam. Ondertussen verzorgde ERWE ook een aanvullende op maat uitgewerkte tweedaagse cursus Revit Family Editing in het C3A-Cursuslokaal voor het startende Revit-team. De vergaarde kennis, gebruikte werkmethodes en verworven inzichten werden na afloop gedocumenteerd in een werktmethodiekdocument dat vanaf toen zou uitgroeien tot de huidige interne Revit-user manual voor het hele bureau.

Dankzij het Revit-model werkte het VUB-projectteam intens samen, waardoor de efficiëntie verhoogde en informatie beter werd gecontroleerd. Hierbij maakten ze ten volle gebruik van de voordelen die dit nieuwe systeem biedt: afgestemde plattegronden, gevels en doorsneden, het gelijktijdig kunnen samenwerken met meerdere personen op één bestand (worksharing), het genereren van hoeveelheden en het 3D-inzicht.  Ook werd al een eerste coördinatie gevoerd met installatiemodellen aangeleverd door het studiebureau technieken.

Toch liep ook alles niet even vlot. Immers bij elk pilootproject betaal je als bureau wel leergeld. Zo werd het BIM’en enkel door de architect toegepast en niet door de andere partijen. Van een volledige ketenintegratie was dus geen sprake. Fouten die moesten rechtgezet worden, waren zeer arbeidsintensief en hadden een financiële impact. Desondanks waren er geen coördinatiefouten en werd de Revit-informatie succesvol gebruikt voor de aanbesteding.

VAC Herman Teirlinck, Brussel: “Zeer omvangrijk project met beperkt tijdsbestek”

Het Herman Teirlinck-gebouw is het nieuwe Vlaamse Administratief Centrum en wordt de toekomstige werkstek van 2.600 Vlaamse ambtenaren. Het centrum is gelegen op de site van Tour & Taxis en wordt met een oppervlakte van zo’n 46.000 m² het grootste passief kantoorgebouw van België. Het VAC is een ontwerp van het Nederlandse Neutelings Riedijk Architecten in samenwerking met CONIX RDBM Architects.

De uitdaging van het project lag in de combinatie van de omvang van het project en de tijdspanne waarin het tekenwerk moest gebeuren. Op piekmomenten werkten zeven modelleurs tegelijkertijd aan het model. Daarenboven werkten de ingenieur stabiliteit en technieken ook parallel. De Revit-bestandsgrootte bedroeg hierdoor uiteindelijk 400MB.

Computers werden bijgevolg op hun uiterste capaciteiten getest. Normaliter wordt er met behulp van worksets bij worksharing een scheiding gemaakt tussen Architectuur, Stabiliteit, Technieken en Coördinatie. Maar om ervoor te zorgen dat iedereen intern efficiënt zijn rol kon vervullen, waren de model managers ingedeeld per discipline: gevels, interieur, stabiliteit, afwerkingen, etc. Hierdoor was het ook mogelijk om bij het openen van het model, worksets die op dat moment voor de model manager niet benodigd waren, uit te schakelen en aldus de pc minder te belasten. Voorts werd er veelvuldig gebruik gemaakt van clash detectie, gecoördineerd door de BIMPlan, en dat in nauwe samenwerking met partijen stabiliteit en technieken.  

Het VAC-project ging dus een stapje verder in het integreren van BIM. Het werd gebruikt voor architectuur, stabiliteit en technieken. De ketenintegratie nam toe, maar was nog niet volledig. Leveranciers en onderaannemers waren niet betrokken.

Park Passionisten, Tienen: “Informatie ook visueel zichtbaar”

Park Passionisten is een woonzorgwijk in het centrum van Tienen, ontwikkeld door Van Roey Vastgoed en zorggroep Alexianen van Tienen. De wijk wil inzetten op de combinatie van comfortabel wonen en kwaliteitsvolle zorgverlening.

CONIX RDBM Architects ontwierp er 49 assistentiewoningen op maat van de veranderende behoeftes. Elk gebouw werd opgevat als een unieke opdracht, met eigen mogelijkheden en accenten. Het betreft zowel één- als tweeslaapkamerappartementen, die variëren tussen de 50 en 90 m². Het grootste deel van de assistentiewoningen is gelegen boven het zorgcentrum. De overige tien vormen een apart nabijgelegen gebouw.

In deze samenwerking kozen architect, studiebureau stabiliteit (STABO) en aannemer (Van Roey) ervoor om onderling BIM-modellen uit te wisselen in combinatie met Revit en Allplan. Met de ondersteuning van opnieuw BIMplan werd een BIM-protocol opgesteld, werden er uitvoerig clashcontroles met Solibri doorgevoerd en werden uiteindelijk ook hoeveelheidstaten uit Revit gedraaid.  

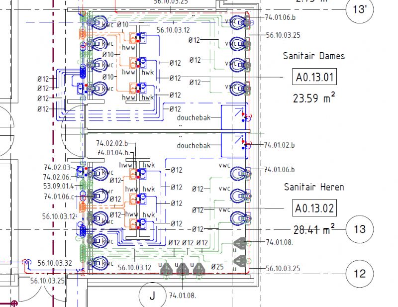
Bijkomend wou de opdrachtgever ook zoveel mogelijk informatie visueel waarnemen. Alle informatie, in dit geval specifiek over de deuren, moest duidelijk zichtbaar op de plannen staan. Daarbij moet men denken aan o.a. kleefmagneten, vrijloopdeurdrangers en badgelezers. Deurcomponenten werden zodanig ontworpen zodat de icoontjes, die overigens in overleg met de opdrachtgever ontwikkeld waren, niet alleen visueel zichtbaar waren, maar ook data triggerden. Het resultaat was een zeer visueel verhelderend plan dat de juiste informatie aan de juiste componenten koppelde. 

Kleuterschool Jan Frans Willemschool, Boechout: “Grenzen verleggen met mechanics, electrics, en plumbing”

Het project in Boechout betreft de bouw van een nieuwe kleuterschool, ontworpen door de tijdelijke architectenvennootschap Staut & Perifer. In tegenstelling tot de vorige projecten was CONIX RDBM dus niet verantwoordelijk voor de architectuur. Maar voor wat dan wel? Op vraag van en in samenwerking met het bureau technieken Efika ontwierp het BIM-team van CONIX RDBM een BIM-model voor de hydraulische, aerolische en elektrische componenten, leidingen en kanalen van de school.

Het bureau begaf zich hiermee op onbekend terrein, meer bepaald dat van de technieken. De uitdagingen waren dus groot. De grootste verandering was het werken met Revit MEP, acroniem voor mechanical, electrical, & plumbing. De kennis van het bureau rond dit onderwerp was immers ontoereikend. Bovendien was er geen MEP-bibliotheek noch een template beschikbaar. Op de koop toe stond alles onder een hoge tijdsdruk.

Een intelligente aanpak was dus nodig. CONIX RDBM contacteerde Witas, een bureau technieken dat zijn diensten en services ter beschikking stelt. Daardoor kon het team gebruik maken van de Witas Localizer, een template en bibliotheek. De Localizer was een handige tool die als add-in in Revit kon worden geïnstalleerd. Dankzij de template kon men meteen beginnen tekenen voor de verschillende disciplines. Views, filters en schedules waren hierin allemaal voorbereid. De bibliotheek bevatte alle denkbare MEP-componenten: verlichting, stopcontacten, ventilatiebuizen en roosters, waterleidingen en collectoren, etc. Deze tools betekenden een ware tijdswinst. Onder de directe leiding van Efika werden vervolgens de technieken van de nieuwe kleuterschool in Revit uitgetekend en gevisualiseerd.

Sporadisch waren er enkele comptabiliteitsproblemen tussen de verschillende softwaresystemen en de Revit MEP-mogelijkheden werden nog niet volledig benut, maar de algemene tendens was positief. Het was een unieke en leerrijke ervaring.

 

De Balans

CONIX RDBM Architects is unaniem positief over het gebruik van BIM en Revit. De impact is merkbaar op verschillende niveaus.

Het vraagt in de eerste plaats een nieuwe manier van werken. De model managers beleven zichtbaar meer plezier aan het tekenen. Of beter gezegd: het virtueel bouwen. Interne samenwerkingen verlopen ook veel intenser doordat ontwerper en tekenaar gelijktijdig aan een model kunnen werken. Maar ook de samenwerking met externe partijen vraagt om een verandering in de mindset. Het bouwproces wordt veel transparanter en partijen worden gedwongen zich met open vizier op te stellen. De bouwheer kan er enkel wel bij varen.

Ten tweede kan de architect opnieuw de rol op zich nemen die hem behoort: die van ‘bewaker’ van het ontwerp. Al lang vreest de architect voor een inperking van zijn rol. Met BIM heeft hij de touwtjes zelf in handen en kan hij zijn rol binnen een integraal werkend team zelf bepalen.
De ‘zachte’ kant van BIM - het samenwerken, het zich transparant opstellen – is voor de architect de uitgelezen kans om de integrale aanpak van het project te bewaken. Hij zal niet langer louter als esthetisch adviseur optreden, maar des te meer ook als facilitator.

Ten slotte wordt het bouwproces sterk geoptimaliseerd, wat voor iedereen al zeer snel duidelijk was. Tekenaars maken beduidend minder fouten en ingewikkelde knooppunten worden visueel opgelost. De tijd van nodeloos lang denkwerk is voorbij. Het 3D-model bevat voorts onnoemelijk veel informatie; het vormt als het ware het geheugen van het gebouw. Het resultaat: meer tijd. Tijd die nuttig kan besteed worden om het ontwerp volledig op punt te zetten.

In al die euforie schuilt tegelijk ook wel een gevaar. Zoals bij elke nieuwe en efficiënte technologie wil men steeds verder optimaliseren. Dat is eigen aan de ambitie van de mens, maar men moet erop toezien dat het huidige raamwerk voldoende waterdicht is. Er zijn nog enkele uitdagingen die de BIM-wereld moet aanpakken. 

 

De Uitdagingen

Een eerste, belangrijke uitdaging is standaardisatie. Immers heel veel verschillende partijen werken aan eenzelfde model. Wanneer alle betrokken disciplines niet dezelfde taal spreken, is een verregaande samenwerking onmogelijk. Er zou teveel tijd verloren gaan in het herhaaldelijk maken van afspraken over de manier van coderen, tekenen en bespreken.

Vanaf onze eerste BIM-ervaring, het VUB pilootproject, heeft CONIX RBM met de Dutch Revit Standard gewerkt. Deze standaard, ontwikkeld door de Revit Gebruikersgroep, is een levend protocol volgens dewelke werken met BIM en Revit moet gebeuren. Het is noodzakelijk om de standaardisatie te waarborgen. Sinds kort neemt CONIX RDBM deel aan export group meetings om op de hoogte te blijven van alle evoluties en zelf ook actief kennis en inzichten te delen.

Die standaardisatie moet trouwens verder gaan dan enkel tussen architect, aannemer en studiebureau. Ook fabrikanten moeten mee op de BIM-trein. Die boodschap is alvast goed aangekomen: het aantal fabrikanten dat naast CAD-details ook Revit families levert is exponentieel gegroeid. Al deze families worden verzameld in een online database. Op zich niet verkeerd, maar er is wel een groot probleem: elke fabrikant heeft zijn eigen manier van modelleren. De werkbaarheid wordt hierdoor enorm vertraagd. Ingeladen elementen moeten telkens gescreend en aangepast worden volgens de standaard alvorens ze gebruiksklaar zijn.
Er is dus duidelijk aan kwaliteitslabel nodig waaraan Revit families van fabrikanten moeten voldoen. Dat zal het gebruik ervan meer open en gebruiksvriendelijker maken. Zo zou de upgrade van LOD (Level of Detail) 200 naar 300 en 400 eenvoudig kunnen verlopen: van generiek element naar merkelement.

Op juridisch vlak zijn er ook nog heel onduidelijkheden die aangepakt moeten worden. Traditioneel tekenwerk wordt momenteel contractueel vastgelegd, maar wat met het BIM-model? Vandaag wordt dit ter informatie meegeleverd, terwijl het wel essentiële informatie bevat. Het roept vragen op naar onder meer de intellectuele eigendom, naar de aansprakelijkheid voor fouten in het uiteindelijke ontwerpen en naar het gebruik van de traditionele bouwcontractmodellen. Een juridisch protocol dat hierover sluitend antwoord biedt is ten zeerste aanbevolen. 

 

De Toekomst

De toekomst voorspellen kan niemand. Niemand weet of Revit zal blijven bestaan. Maar die vraag is eerder irrelevant. BIM-modellen kunnen immers naar een bestandsstandaard (IFC) geëxporteerd worden dat met alle andere tekenprogramma’s compatibel is. De data blijft, de manier van (samen)werken zal continu veranderen.

Uitkijken is het bijvoorbeeld naar Virtual Reality en Augmented Reality waarbij de gebouwen/modellen naast het computerbeeldscherm tot leven komen en problemen op de werf zelf worden opgelost en gelijk naar de tekentafel worden verzonden. Maar zelfs dat is vandaag de dag al mogelijk. Opdrachtgevers kunnen nu al via de mobiele telefoon het ontwerp in Virtual Reality beleven. Men heeft enkel een in stereo panorama rendering – vergelijkbaar met Google Streetview – en de in opmars zijnde VR-cardboxen nodig om de toekomst te beleven. Voeg er nog een Gyroscoop_sensor aan toe en het lijkt alsof je in het gebouw rondwandelt.

Er staan ons ongetwijfeld boeiende tijden te wachten. De manier waarop we zullen samenwerken is voorlopig nog onduidelijk. Maar dat we zullen samenwerken staat buiten kijf. Co-creatie is de toekomst.

Bron CONIX RDBM Architects

  • Deel dit artikel

Onze partners