Na klooster wordt ook Predikherenkerk culturele hotspot (Korteknie Stuhlmacher, Callebaut Architecten, Bureau Bouwtechniek)

  • image
  • image
  • image
  • image
  • image
  • image
  • image
  • image

De bibliotheek in Het Predikheren opende in september 2019 zijn deuren in Mechelen en sleepte intussen meerdere prijzen in de wacht. Ook de voormalige kerk naast het Predikheren staat al geruime tijd in de steigers. De binnen- en buitenrestauratie is namelijk in volle gang. Maar ook over de herbestemming en inrichting van de kerk worden de plannen concreter. De stad Mechelen wil de kerk inzetten als ‘culturele hub’, een eigentijdse en inclusieve ontmoetingsplek. Het voorontwerp van Korteknie Stuhlmacher Architecten i.s.m. Callebaut Architecten en Bureau Bouwtechniek is zopas goedgekeurd door het stadsbestuur. Ook de studiebureaus RCR (technieken), ABT België (stabiliteit) en MACOBO-STABO (veiligheidscoördinatie) zijn bij het project betrokken. 

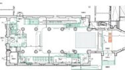
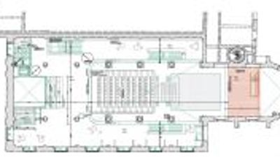
Bij de inrichting blijft de imposante ruimte van de kerk bewaard. Het basisidee gaat uit van een vrij te gebruiken zaal omringd door ondersteunende functies. De zaal blijft volledig vrij van obstakels en vaste inrichtingselementen. Afhankelijk van de evenementen zal het publiek plaats kunnen nemen op een aantal rijen losse stoelen of op een uitklapbare tribune, die op verschillende plekken kan worden opgeborgen achter een gordijn. Ook staande recepties of aan tafel zittende activiteiten kunnen worden voorzien.

 

Balkon als 'ruimtemachine'

Voor de ondersteunende functies wordt voor een eenvoudige toevoeging gekozen door het inplaatsen van een U-vormig balkon ter hoogte van de kerkramen. Deze mezzanine zorgt voor aanvullend vloeroppervlak boven voor bijeenkomsten, bibliotheek en tentoonstellingen. Vanaf hier is de volledige maat van de kerk te ervaren en heeft men uitzicht naar binnen en buiten. Dankzij de kerkramen oogt deze ruimte heel licht. Onder het balkon is er ruimte voor faciliteiten zoals toiletten, bergingen, vestiaires, technische ruimtes en een archiefruimte voor de bibliotheek, die aan het zicht kunnen worden onttrokken met akoestische gordijnen. “We zien dit balkon als een geïntegreerde ‘ruimtemachine’  die met één enkel gebaar zorgt voor technische, ruimtelijke, functionele en atmosferische verbeteringen”, klinkt het bij de ontwerpers.

De toevoegingen zijn geïnspireerd op traditionele elementen waarmee vanouds kerkruimtes werden ingericht zoals houten koorhekken, doksalen en balkons. Zo wordt de ruimte in het koor gedeeltelijk overdekt en verborgen achter een nieuw ‘koorhek’, een houten afscheiding die wordt vormgegeven met traditionele koorhekken als referentie. Deze ruimte doet dienst als backstage en berging. Bovenop ontstaat er een (technisch) podium.

 

Verwant aan klooster

Alle toevoegingen in het interieur zijn door hun kleur- en materiaalgebruik met elkaar verwant. Ze zijn duidelijk als nieuwe laag in het gerestaureerde gebouw afleesbaar. Voor constructie en afwerkingen wordt zoveel mogelijk gebruik gemaakt van hout, in combinatie met slanke stalen elementen. De toevoegingen, zachte natuurlijke kleuren en het gekozen materialenpalet refereert aan de materialisatie van Het Predikherenklooster.


integrale toegankelijkheid voorop

Bij het ontwerp werd maximaal ingezet op ‘integrale toegankelijkheid’, dat wil zeggen ‘toegankelijkheid voor iedereen’. Het huidige voorontwerp houdt rekening met voorzieningen om het gebouw ‘bereikbaar, betreedbaar, bruikbaar en begrijpelijk’ te maken. Hierbij is het uitgangspunt dat iedere bezoeker of gebruiker van het gebouw zich zelfstandig, veilig en comfortabel moet kunnen bewegen. “De doelgroep waarmee wordt rekening gehouden, is daarbij duidelijk iedereen, zonder onderscheid van sociale of culturele afkomst, opleiding, taalgebruik, leeftijd of geslacht. Een integraal toegankelijk gebouw is immers de sleutel tot een infrastructuur waarin iedereen zich welkom voelt en gelijke kansen heeft”, klinkt het bij het stadsbestuur.
 

De verschillende ruimten en verdiepingen zijn rolstoeltoegankelijk door een geïntegreerde lift en vlakke vloeren of lichte hellingen zonder drempels. Ruime doorgangen en voldoende brede deuren zorgen voor een goede circulatie. Er wordt daarnaast ook aandacht besteed aan duidelijke signalisatie en verlichting, tevens ten behoeve van slechtzienden. Een ingewerkte ringleiding zorgt, door het filteren van storende achtergrondgeluiden, voor een goede verstaanbaarheid voor personen met een auditieve beperking.


Onzichtbare technieken

Uiteraard zijn ook alle nodige technieken aanwezig. Deze worden op een quasi onzichtbare manier geïntegreerd in de nieuwe constructieonderdelen. Vloerverwarming staat in voor een basisverwarming, in de balustraden, lambrisering en zitbanken worden ventilatiekanalen weggewerkt die zorgen voor bijkomende verwarming of koeling. Bij dit alles werd rekening gehouden met energetisch verantwoorde systemen. Voor een optimaal gebruik kunnen de nodige theatertechnieken worden bevestigd aan opgehangen trussen.

 

Vervolg aan succesverhaal

Het is de bedoeling om met de herbestemming van de Predikherenkerk een vervolg te breien aan de reeds in de prijzen gevallen restauratie en herbestemming van het Predikherenklooster en zo de werking van Het Predikheren uit te breiden en te versterken.

Na het voltooien van de aan de gang zijnde restauratiewerken in de zomer van 2022, wordt gestart met de inrichtingswerken. De culturele hub zal in de zomer van 2024 in gebruik kunnen genomen worden.

 

Kostenplaatje

De kosten voor de restauratie- en inrichtingswerken van de predikherenkerk bedragen ca 6.500.000 euro, waarvan ca. 3.500.000 voor de restauratiewerken en ca. 3.000.000 voor de herinrichtingswerken. Vanuit het agentschap Onroerend Erfgoed ontvangt de stad een restauratiepremie van 2.950.000, de Vlaamse Regering kent een bedrag van 2.000.000 toe in kader van ‘Plan Vlaamse Veerkracht: investeringsssubsidies voor grote culturele infrastructuur’.

Bron Stad Mechelen

  • Deel dit artikel

Onze partners