Contactformulier

M-gineers

Nieuw Zuid strikt David Chipperfield voor duurzaam woonproject met fruitboomgaard

  • image
  • image
  • image
  • image
  • image
  • image
  • image
  • image
  • image
  • image

De Antwerpse buurt Nieuw Zuid pakt opnieuw uit met een grote naam uit de architectenwereld: kersvers Pritzker Prize-laureaat Sir David Chipperfield ontwerpt ‘Boomgaard’, een duurzaam woonproject met een unieke fruitboomgaard. De boomgaard zal zo’n 60 fruitbomen tellen en wordt ontworpen door de bekende landschapsarchitect Bas Smets. “We willen niet zomaar een mooi gebouw neerzetten,” aldus Sir David Chipperfield. “We willen een aangenaam stukje stad creëren. En deze boomgaard, die voor iedereen toegankelijk zal zijn, is daarin een belangrijk aspect." Eind dit jaar wordt gestart met de bouw van het project. De oplevering van Boomgaard is gepland voor eind 2025.

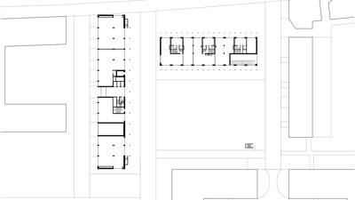
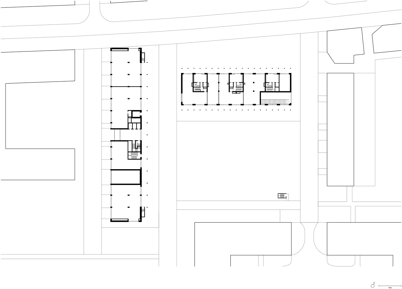
Nieuw Zuid is een nieuwe wijk op een braakliggend terrein ten zuiden van het historische centrum van Antwerpen, aan de Scheldekaaien. Het masterplan, ontworpen door Studio Bernardo Secchi & Paola Viganò, definieert een reeks openbare en groene ruimten die worden omkaderd door gebouwen en doorsneden door een centrale verkeersader. Verschillende architecten werden uitgenodigd om de afzonderlijke blokken te ontwerpen. Waar de meeste ontwerpers kozen voor een U-vormig plan dat een tuin of plein omlijst, stelt het ontwerp van David Chipperfield Architects twee loodrechte gebouwen voor: een woongebouw en een kantoorgebouw, die samen een centrale tuin afbakenen. Met een echte fruitboomgaard in die centrale binnentuin, krijgen de toekomstige bewoners en bezoekers van Boomgaard een uniek stukje leven en natuur, vlak voor hun deur.

 

Wintertuinen als bufferruimte

De twee gebouwen van Boomgaard hebben een gemeenschappelijk architectonisch en ruimtelijk karakter dat wordt bepaald door hun langgerekte orthogonale vormen, hybride hout- en betonconstructies en doorlopende wintertuinen langs hun lange gevels. Deze beslissingen werden grotendeels ingegeven door een aantal ecologische overwegingen. Zo fungeren de wintertuinen als een bufferruimte die ertoe bijdraagt dat het binnenklimaat het hele jaar door comfortabel blijft. Het gebruik van hout vermindert de opgeslagen koolstof van de constructie. En de geringe diepte van de gebouwen maximaliseert het natuurlijke licht en de dwarsventilatie. De wintertuinen geven bovendien ook leven aan het gebied door de verscheidenheid aan activiteiten die er zichtbaar zijn.

Het appartementsgebouw ligt tussen de hoofdstraat in het noordwesten en het tuinplein in het zuidoosten. De twee brede gevels openen naar deze openbare ruimten met wintertuinen die ervoor zorgen dat elk appartement een eigen buitenruimte heeft en in verbinding staat met de natuur. Drie circulatiekernen zorgen ervoor dat de appartementen zich in de diepte van het plan uitstrekken, waardoor alle appartementen tweezijdig zijn.

 

Toekomstige flexibiliteit

Het kantoorgebouw is ontworpen met het oog op toekomstige flexibiliteit, waarbij elke verdieping gemakkelijk kan worden onderverdeeld. Een centrale circulatiekern opent zich naar een wintertuingalerij die langs de oostzijde van het gebouw loopt en uitkijkt over het centrale plein. De galerij verbindt de gebieden zowel fysiek als sociaal, en creëert een ruimte waar mensen van verschillende kantoren elkaar kunnen ontmoeten in een omgeving die het licht en de omstandigheden van de veranderende seizoenen volgt. Op de begane grond van beide gebouwen zorgen colonnades voor een beschutte ruimte die toegang geeft tot de ingangen en winkeleenheden en overgangsruimten creëert tussen de gebouwen en hun omgeving.

De overal ter wereld geroemde architecturale visie van Sir David Chipperfield is ook in het ontwerp van het project Boomgaard duidelijk zichtbaar: de kenmerkende verticale gevelritmiek, het consequente gebruik van rechte lijnen en duurzame materialen, en de natuurlijke accenten die tot in de appartementen worden doorgetrokken. Het moge duidelijk zijn: hoewel het een relatief kleinschalig project is, is Boomgaard groots in opzet.

Bron Triple Living & David Chipperfield Architects

  • Deel dit artikel

Onze partners