Nieuwe hogeschoolcampus als verbindende marktplaats voor kennisdeling in de stad (Stramien cv)

  • image
  • image
  • image
  • image
  • image
  • image
  • image

In Mechelen zijn de werken begonnen aan de nieuwbouw op de Thomas More-site van Campus De Vest. De ambitieuze vernieuwbouw, naar een ontwerp van architectenbureau Stramien cv, bevat verschillende faciliteiten zoals collaboratieve aula’s en hybride leslokalen die de hogeschool in Mechelen klaar maakt voor het onderwijs van de toekomst. Verbinding, vergroening en technologische innovatie staan daarbij voorop. De nieuwe campus wordt een ontmoetingsplek voor alle studenten en medewerkers. Gelegen aan de Dijleterrassen en de nieuwe stadsboulevard, met een eigen Utopia-straat, een gezellige foyer en prachtige daktuinen, wordt het ook een echte landmark voor Mechelen.

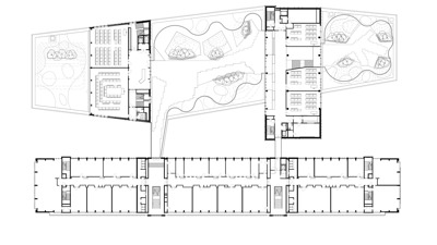
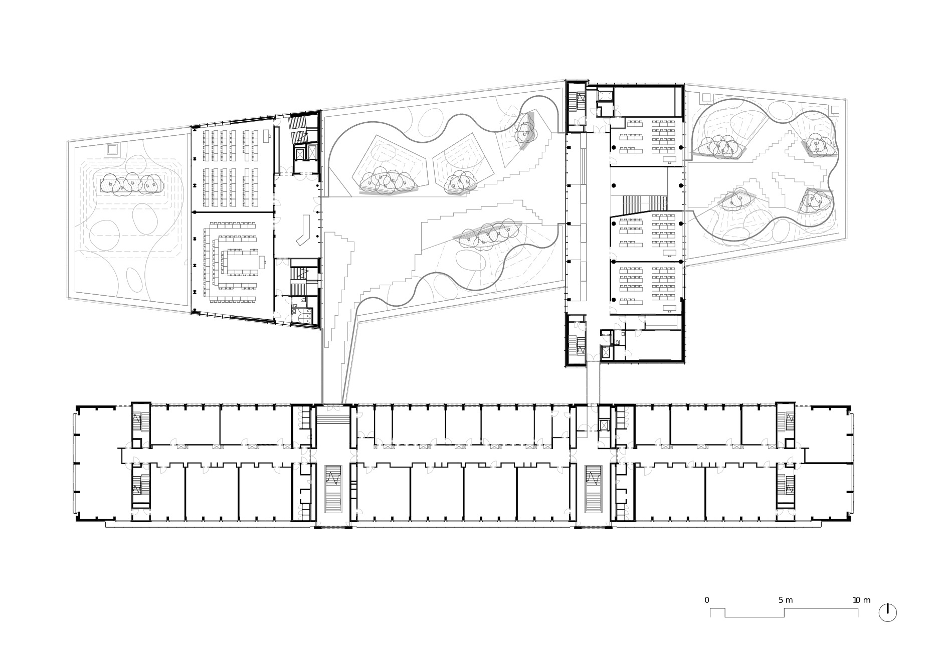
Na de uitbreiding zal Campus De Vest een soort 'moederschip' zijn met centrale functies voor alle vier de Mechelse campussen. Zo kunnen de opleidingen zelf zich op hun specifieke leeromgevingen focussen. Op de vernieuwde campus komen er o.a. een grote opsplitsbare aula voor 430 personen, twee kleinere aula's, een groot leercentrum en een studentenrestaurant, 11 flexibele leslokalen en projectruimtes en een volledig uitgeruste ondergrondse fietsenstalling. Alles samen goed voor een vloeroppervlakte van 9.695m² in nieuwbouw en 4.473 m² in renovatie.

Inrichting en uitrusting zijn futureproof én flexibel. Alle lokalen en het leercentrum worden voorzien van de nieuwste technologieën, maar zijn snel aanpasbaar als nieuwe inzichten dat vereisen. Het nieuwe concept ​ zet in op verbinding, vergroening en op technologische innovatie. De campus wordt een echte landmark in de stad. De torens rusten op een genereuze sokkel, een centrale foyer wordt de 'huiskamer' van de campus, er slingert een gezellige Utopiastraat tussen de gebouwen door en bovenop zijn er actieve, klimaatrobuuste daktuinen.

 

EEN MARKTPLAATS VOOR KENNIS EN ONTMOETING

Om zijn ambities waar te maken wil Thomas More Hogeschool de capaciteit van de huidige campus bijna verdubbelen. Op de huidige site is de beschikbare ruimte schaars. De huidige gebouwen nodigen ook weinig uit tot interactie of contact. Stramien cv stelt zich daarom als doel om er een leeromgeving te ontwerpen die kan uitgroeien tot een open marktplaats voor kennisdeling in de stad. Inclusief omdat ze iedereen in de opleiding betrekt en omdat ze kennisdeling positioneert in een netwerk van openbare ruimten in Mechelen.

Verbindende school

De huidige campus ligt op een erg complexe stadslocatie tussen en langs belangrijke infrastructure: de spoorwegberm, de Dijle en de Zandpoortvest. Deze stedenbouwkundige setting vraagt een weldoordachte inpassing van de nieuwe campus in de stad. Sterker nog, de nieuwe campus kan er een volwaardige stadsruimte worden die sterk verbonden is met haar omgeving en meerdere stedelijke functies stimuleert en ondersteunt.

Verbonden met de Dijle

Het stadsbestuur zet sterk in op Mechelen als klimaatbestendige waterstad. De aantrekkelijke inrichting van het Dijleterras naast de campus zorgt voor een belangrijke aanzet. Het ontwerp van Stramien cv speelt hier op in en richt de vernieuwde campus volledig naar de Dijle. Dit zorgt voor een duidelijke leesbaarheid een éénduidige toegang en een sterke verbinding met het water en de stad.

"Ons ontwerp gaat de uitdaging aan om de grens tussen stad, buitenruimte en campus op te heffen. De aantrekkelijke groene sfeer langs de rivier wordt als stadsnatuur tussen de nieuwe gebouwen doorgetrokken."
- Evert De Baere, Stramien -

 

Verbonden met het spoor

Wie vandaag met de trein Mechelen binnen rijdt kent de Thomas More-site. Het gebouw en het aanliggende parkeergebouw vormen een stedelijk landmark voor de treinreiziger. Stramien cv wil met de vernieuwde campus de relatie van de school en haar activiteiten met het spoor nog versterken. Met transparante gevels, uitzicht op de groene daken en een doorzicht tot in de grote foyer, ervaart iedereen die met de trein passeert deze campus als een actieve en levendige plek in de stad.

Verbonden met studenten en docenten

De huidige campus functioneert als een compositie van op zichzelf staande bouwvolumes. Het nieuwe ontwerp keert deze situatie volledig om en verzamelt de oude én nieuwe gebouwen omheen een centrale binnenstraat die alle onderdelen van de campus verbindt. Op deze manier wordt de campus opgevat als een stukje stad in de stad. Er is veel ruimte voor spontane ontmoeting en communicatie. Ook dat is een belangrijk deel van de opleiding.

 

RUIMTELIJKE CONCEPTEN

Utopiastraat

Alle toegangen, verbindingen en circulaties worden geënt op een nieuwe binnenstraat. Dit wordt dé drager van de campus. Het ontwerpteam doopte deze ruimte om tot ‘Utopiastraat’, zodat haar functie als collectieve ruimte ook in een inspirerende eigennaam - en dus zeker geen utopie - wordt gehonoreerd. De Utopiastraat is veel meer dan verdeler voor de school, ze vormt een aantrekkelijke verblijfsruimte en is een veilig koppelstuk tussen de campus en het Mechels openbaar domein. De straat zorgt ervoor dat de school naadloos opgaat in het stedelijk weefsel langs de Dijle en de Zandpoortvest. De school wordt een vanzelfsprekend onderdeel van de stad.

Genereuze sokkel

In een goed werkend stadsdeel gaan de gebouwen en de open ruimte steeds in rustige dialoog. Oude onderwijsinstellingen kenden een monofunctionele en eerder gesloten façade. Reeds enige tijd is er een tendens naar een steeds breder en polyvalenter gebruik door studenten en gebruikers van buiten het onderwijscircuit. De open marktplaats voor kennisvergaring en -uitwisseling wordt aangevuld met extra stedelijke activiteiten (koffiebar, frituur, fietsstalling…) in een transparante sokkel die de gehele gelijkvloerse verdieping omvat. De open raampartijen etaleren er de geest van Thomas More: een open school die zich genereus aan de buitenwereld toont en graag onderdak biedt aan partners die deze visie delen.

Centrale foyer

Niet alleen visueel, maar ook fysiek wordt de school een open huis. Strategisch, op de kruislijn van Utopiastraat en een doorsteek (met onthaal) naar de Zandpoortvest, bevindt zich de centrale foyer van de vernieuwde campus. Deze open zone is dubbel hoog en verbindt zowel visueel als fysiek alle onderdelen van de nieuwe school: de grote aula, de kleine aula’s, het restaurant en het leercentrum aan de kant van de Dijle. Met een grote open tribune worden het gelijkvloers met de verdieping verbonden. Er is zicht op het spoor en de voorbijrijdende treinen en zicht op de Utopiastraat en het onthaal aan de overkant. De ruimte geeft rechtstreekse toegang tot de centrale daktuin die zich op de tweede verdieping bevindt. Als de Utopiastraat de voortuin is van de school, is dit de echte ‘huiskamer’ van Thomas More Hogeschool.

Meerlagige ruimte

In een stedelijke omgeving is ruimte schaars. Het is dus van belang om de gevraagde functies zo sterk mogelijk in ruimte en tijd te organiseren. Dit kan door ruimte slim en flexibel in te richten, ruimte te delen en ook nieuwe ruimte op te zoeken. Zowel intra muros als extra muros worden de functies volgens deze principes ingepast. De daken van de nieuwe campus nemen hierbij een bijzondere positie in. Ze zorgen voor een ecologische ondersteuning van het complex, doen dienst als belangrijke ontspanningsruimte en zijn hét uithangbord van de school naar de straat en het spoor. De campus verkoopt zichzelf als zuinige ruimtegebruiker in het Mechelen van de toekomst.

Logische en veilige mobiliteit

De publieke ruimte aansluitend op het Dijleterras en Utopiastraat blijft gereserveerd voor voetgangers. Fietsers bereiken de fietsenstalling via de Zandpoortvest in het noorden. De fietsenstalling telt 500 plaatsen, de parking 70. Om de ambities van de Stad Mechelen als fietsstad te realiseren kan de fietsenstalling uitgebreid worden op de parking waardoor de school met 1200 extra fietsparkeerplaatsen en 20 autoparkeerplaatsen het fietsaandeel kan optrekken van 7% naar 25%. Rondom het gebouw is een strook van min 4m breed voor brandweer en veiligheidsdiensten gereserveerd. Laden en lossen gebeurt aan de achterzijde, weg van de studenten.

 

HET GEBOUW

De nieuwe architectuur zet in op een sterk eenheidsbeeld van het ensemble en is attent voor zijn omgeving. De noodzaak van een aangepaste perforatiegraad van de gebouwschil in functie van de oriëntatie, resulteert in de keuze voor een modulair gevelsysteem. Zodoende wordt een maximale energetische performantie gekoppeld aan een optimale daglichttoetreding. Vliesgevels met een verticale geleding worden ingevuld met heldere 3-dubbele beglazing en matte structuurbeglazing voor isolatie. De glazen puien creëren een open, uitnodigend en transparant gebouw. Tegelijkertijd zorgt het hoogrendementsglas voor een diffuse reflectie van de levendige omgeving, het rustgevende groen en de veelkleurige hemel waardoor het gebouw ook visueel zijn omgeving verbindt.

"Door de gevel alzijdig te verbeteren en het campusleven -ook na de lesuren- te exposeren op de nieuwe daken, toont de school zich als een open campus aan de buitenwereld."
- Xavier Avontroodt, Stramien -

 

Beperkte sloop

De beperkte, gefaseerde sloop van de huidige cafetaria en de twee bestaande aula’s aan de Dijle zorgt voor ruimtelijk rendement en genereert een enorm potentieel voor de realisatie van een onlosmakelijk geheel. Sloop is geen evidente ingreep, wetende dat de bestaande ruimte kostbaar is. Maar het rendement van de mogelijkheden die hierdoor ontstaan, is aanzienlijk.

Nieuwe aula’s

De clustering van de kleine aula’s en de nieuwe grote aula zorgt voor een maximale functionaliteit. De combinatie van een mobiele akoestische wand en toegangen via de centrale foyer op 2 niveaus (begane grond en eerste verdieping) maakt het gebruik voor diverse doeleinden (klassieke opstelling, projectruimte, break-outroom) mogelijk. De oplossing is drieledig: 1 auditorium van 402 personen, 2 auditoria van 192 en 210 personen en de uitloopzone van de aula op de eerste verdieping die als verlengde van het leercentrum kan worden gebruikt.

Open leercentrum

Het open leercentrum is opgevat als een campusoverschrijdende ontmoetingsruimte. De heldere routing, via Utopiastraat en foyer, nodigt studenten en docenten uit tot intens dagelijks gebruik. Het leercentrum functioneert als een schakeling van ruimtes en sferen verspreid over alle verdiepingen vanaf de begane grond. Een diversiteit aan invullingen - stille ruimten, boxen voor groepswerk, open verblijfsruimten - stimuleren een veelkleurig gebruik. Stramien zet ook in op maximale verwevenheid en ruimtelijk rendement. Zo zorgt bijvoorbeeld een rechtstreekse trap tussen restaurant en leercentrum voor een bijkomende link of kan de opgedeelde grote aula het verlengde van het leercentrum worden.

Restaurant aan de dijle

Het restaurant is strategisch gelegen op de kop van de campus, in het verlengde van het Dijleterras. Grote raampartijen creëren een uitnodigende aanblik voor de studenten van alle campussen. De strategische positie maakt meervoudig gebruik en een onafhankelijke werking in de toekomst mogelijk.

 

EEN DUURZAME CAMPUS

De architecturale vormgeving ondersteunt de werking van de campus. De opvatting van de sokkel en de positie van de grote aula en het nieuwe lessenblok erboven, zorgen voor een heldere lay-out van de school. De relaties en verbindingen met de bestaande gebouwen worden hertekend en verduidelijkt. De nieuwe binnenstraat kan op lange termijn nog verlengd worden zodat eventueel ook de Jeugdherberg zich slim kan inkantelen in de gestelde ruimtelijke ambities. De werking van Utopiastraat wordt krachtiger en haar publieke rol bijkomend bestendigd.

Duurzaam, innovatief en futureproof

In de benadering van Stramien heeft duurzaamheid veel te maken met logisch denken en gezond verstand. In eerste instantie zorgen de architecten ervoor dat de gebouwen ontwerpmatig maximaal inspelen op de omgevingsfactoren zoals bezonning, daglicht, en hun oriëntatie. De stedelijke context laat echter geen totale keuzevrijheid toe. Toch zet Stramien in het ontwerp in op principes zoals bouwkundige beschaduwing tegen oververhitting, gebruik van de inertie van de bouwmassa (voor natuurlijke koeling), en het maximaal gebruik van daglicht. Vervolgens worden de gebouwen in het project bouwkundig zo goed mogelijk voorzien van performante gevels, isolatie en hoge luchtdichtheidsgraad. Deze bouwkundige ingrepen zijn immers slechts éénmalig te voorzien en hebben een permanent rendement.

Klimaatrobuuste technieken

Op de hoge daken van de uitbreiding worden PV panelen voorzien met oost-west-opstelling. Hierdoor kunnen tot 30% meer panelen geplaatst worden. De opbrengst wordt beter gespreid over de dag, waardoor het geproduceerde vermogen ook optimaal en onmiddellijk gebruikt kan worden. Op de bestaande zuidgevel aan de Dijle wordt de huidige zonwering met textielelementen vervangen door een zonnegevel die bestaat uit dunne en semi-transparante zonnepanelen die enerzijds oververhitting tegengaan en anderzijds energie opwekken.

Water wordt een schaars goed. Daarom wordt in de nieuwe campus elke druppel gerecupereerd. Ook het water van de extensieve daktuinen kan maximaal hergebruikt worden mits de juiste filtering. Goten, begroeid met droogtebestendige planten, vangen het regenwater op in Utopiastraat en zorgen voor plaatselijke infiltratie van de verharde ruimte.

Een groot deel van de sokkel, de foyer en het nieuwe lessenblok worden gekoppeld op een bodemwater-waterwarmtepomp via een KWO-systeem. Open systemen gebruiken het aanwezige grondwater om warmte of koude aan de bodem te onttrekken en terug te voeren. Er worden twee putten aangebracht. In de zomer wordt koud water uit één van de putten opgepompt. Via een warmtewisselaar wordt de koude afgegeven aan het gebouw. Het opgewarmde water wordt via de andere put terug in de grond geïnjecteerd en opgeslagen. In de winter draait de pomprichting om en wordt het opgewarmde water terug opgepompt. Dit water geeft zijn warmte via de warmtewisselaar terug af aan het gebouw en wordt via de andere pomp terug naar de watervoerende laag gebracht. Het KWO-potentieel op de locatie van dit project is hoog. Volgens de eerste resultaten uit de simulatie van Stramien zal de WP instaan voor 360.000 kWh verwarming, en 120.000 kWh aan koeling. Deze verhouding is realistisch voor toepassing van een KWO-systeem. Het verwarmingsvermogen van de warmtepomp zal ca. 180 kW bedragen.

Bron Thomas More & Stramien cv

  • Deel dit artikel

Onze partners