Pierre Blondel architectes realiseert passief wooncomplex in Neder-Over-Heembeek
In de Brusselse deelgemeente Neder-Over-Heembeek wordt deze dagen een groot residentieel project gerealiseerd, het Bruyn-project. Dit is opgedeeld in drie deelprojecten: Bruyn-Noord, Bruyn-West en Bruyn-Oost, samen goed voor de realisatie van 350 nieuwe woningen. Het tweede deelproject dat uitgevoerd wordt is Bruyn-West, oftewel de bouw van 79 passieve wooneenheden, verdeeld over vijf strategisch ingeplante bouwblokken. Transparantie, wooncomfort, doordachte inplanting en verbondenheid met de groene ruimtes zijn de kernwaarden van het ontwerp van het Brusselse Pierre Blondel architectes. Bruyn-West was in 2009 een van de ‘Voorbeeldgebouwen’ van het Brussels Hoofdstedelijk Gewest.
Transparantie behouden
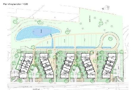
Het langwerpige Bruyn-West-perceel ligt een stuk buiten het centrum van Neder-Over-Heembeek. Het grenst enerzijds aan de Bruynstraat en anderzijds aan een stukje natuur. Het zichtbaar en toegankelijkheid houden van deze achterliggende groene ruimte was voor architect Pierre Blondel een belangrijk aandachtspunt. “De wijk bevindt zich in het uiterst noorden van de stad, waar het straatbeeld toch veel minder gesloten is,” vertelt Blondel. “Bebouwing en beplanting wisselen elkaar af. Ik vond het dan ook belangrijk dat we een zekere transparantie konden behouden. De groene ruimte aan de achterkant van het perceel staat in verbinding met de straat via enkele publieke passages die tussen de gebouwen door lopen.”
.jpg)
In plaats van de woningen evenwijdig met de straat te bouwen en zo een soort barrière te creëren, opteerde Blondel ervoor om de bouwblokken min of meer loodrecht op de straat in te planten. “Ik dacht er in eerste instantie aan om ze volledig zuidelijk te oriënteren, maar stapte af van dit plan omdat ik het belangrijk vind dat de bewoners zoveel mogelijk uitzicht hebben op de groene ruimtes. Dit maakt volgens mij immers een belangrijk deel uit van het wooncomfort in de appartementen. Ik zocht dus naar een compromis tussen die visuele transparantie en dat goede uitzicht, en kwam vervolgens tot een ontwerp waarbij de gebouwen een schuine i-vorm hebben en afwisselend naar het zuidwesten en het zuiden gericht zijn. De ruimte tussen de gebouwen evolueert van breed naar smal of omgekeerd.”
De appartementen op het gelijkvloers hebben allen een privétuin die hen afschermt van de publieke passages. Deze bevinden zich aan de noordzijde (aan de achterkant) van de gebouwen. De tuinen van de zuidelijk gelegen volumes monden uit in de groene publieke ruimtes, terwijl de tuinen van de zuidwestelijk georiënteerde blokken overgaan in het achterliggende park. In totaal zijn er vier parkings, die samen plaats bieden aan 73 voertuigen. Ze liggen iets lager en zijn overdekt met beplante roosters, zodat ze naadloos opgaan in de publieke groene ruimtes en geen storend visueel element vormen.
.jpg)
Optimale blootstelling aan de zon
De woningen zijn grotendeels zuidelijk georiënteerd en profiteren op die manier optimaal van de zonnewarmte. Hoewel de gebouwen vrij dicht tegen elkaar aanliggen, hebben ze toch geen last van elkaars schaduw. Het ontwerp van architect Pierre Blondel voorziet immers een doordachte toe- of afname van het aantal bouwlagen naarmate je meer in de richting van het achterliggende park gaat. Waar de gebouwen het dichtst bij elkaar liggen, heeft Blondel ervoor gezorgd dat het linkse volume slechts twee bouwlagen telt, terwijl het rechtse volume er vier heeft. Op die manier valt de schaduw van het linkse volume, dat zich het dichtst bij de zon bevindt, niet ver genoeg om de appartementen van het rechtse volume de zon te ontnemen.
Deze ingreep is behalve bijzonder functioneel en doordacht ook een troef op esthetisch gebied. De variërende gebouwhoogtes creëren een intrigerend visueel effect. Binnenin de gebouwen wordt het invallende daglicht zoveel mogelijk benut. De verlichting in de gemeenschappelijke zones wordt automatisch bijgesteld in functie van de aanwezigheid van personen en de toetreding van natuurlijk licht. In de appartementen zelf wordt er gebruik gemaakt van spaarlampen.
.jpg)
Less is more
De Bruyn-West-gebouwen op zich zijn relatief traditioneel geconstrueerd. De basisstructuur bestaat uit metselwerk met een omringende isolatielaag. De bouw ervan verliep met andere woorden relatief eenvoudig. Omdat Blondel bij het ontwerpen van de gebouwen al meer dan voldoende aandacht besteedde aan de compactheid van de volumes, zijn er weinig tot geen speciale ingrepen moeten gebeuren om de gewenste isolatie- en luchtdichtheidsniveaus te bereiken.
De warmtebehoefte is zeer laag en het aantal technieken beperkt, al meent de architect dat het er ook in dit geval nog te veel zijn. Blondel is duidelijk een aanhanger van de less is more-stelling: “Het is niet omdat je een passief gebouw ontwerpt, dat je per se allerlei zaken moet gaan toevoegen. Het komt er integendeel misschien op neer om net minder te doen! Ik heb het dan niet over de leefruimtes – zeker niet in de gemiddelde woning, die meestal al klein genoeg is – maar over de hoeveelheid energieverslindende technieken en technologie. Waarom moet er bijvoorbeeld overal verlichting zijn? Kunnen we niet voor één lamp kiezen in plaats van de talloze spotjes hier en daar? Als we echt duurzaam willen gaan leven, zullen we moeten kunnen accepteren dat we minder hebben. Vanuit dat oogpunt vind ik ook dat individuele woningen, verspreide verkavelingen en garages achterhaalde oplossingen zijn. We zouden veel meer moeten doen met de ruimte die we ter beschikking hebben.”
.jpg)
Natuurlijk zijn er wel wat energiezuinige technieken geïntegreerd in het ontwerp. Piotr Kowalski en Corentin Voglaire van MK Engineering lichten dit toe: "Aangezien we hier te maken hebben met massiefbouw, is het vooral de bepleistering die de gewenste luchtdichtheid garandeert. Voorts werden er hier en daar aan de ramen en de buisopeningen in de bepleistering stickers aangebracht. We ventileren de gebouwen via een balansventilatiesysteem met warmterecuperatie. Op deze ventilatiegroep hebben we een warmtebatterij geplaatst die alle appartementen tot op een zekere hoogte verwarmt. In elk appartement bevindt zich bovendien een individuele warmteregelaar die de bewoners toelaat om de temperatuur in hun woning nog een beetje verder op te drijven. Het sanitaire water wordt voorverwarmd met behulp van zonnepanelen (twintig vierkante meter per gebouw). Wanneer er niet voldoende zon is, gebeurt de verwarming van het water via gascondensatieketels. Het regenwater loopt via geulen naar een droogbekken en infiltreert daar in de bodem. Het komt met andere woorden niet in het rioleringsstelsel terecht.”

Kwaliteitswoningen
Pierre Blondel architectes heeft als bureau heel wat ervaring in de collectieve woningbouw. Het kreeg de opdracht toebedeeld via een ontwerpwedstrijd, maar wilde meteen verder gaan dan de oorspronkelijk gevraagde lage energiewoningen. De architecten en het studiebureau besloten de gebouwen een passief karakter te geven, wat heel wat implicaties heeft op bouwtechnisch en ruimtelijk vlak.
Het verzekeren van de ruimtelijke kwaliteit van de toekomstige woningen was voor Blondel echter het belangrijkste aandachtspunt. “Wat voor mij steeds van groot belang is, is dat er gevolg wordt gegeven aan de noden en de behoeften de toekomstige gebruikers van een bepaald gebouw. In het geval van Bruyn-West moeten de bewoners dus op een passende, degelijke manier in de appartementen kunnen leven en moeten ze hun woning naar eigen wil en vermogen kunnen gebruiken. Die goede kwaliteit is een samengaan van allerlei factoren (esthetiek, duurzaamheid, functionaliteit, bouwkwaliteit, enz.).”
.jpg)
Het was een grote uitdaging om de bewoners een echt ‘ruimtegevoel’ te geven. “Hoewel de muren over het algemeen dikker zijn en dus leefruimte wegnemen, zijn we er toch in geslaagd om woningen met een heldere ruimtelijke indeling te maken: in elke woning is er een echte keuken, een echte eetkamer, een echte woonkamer, enz. Bovendien is er overal meer dan voldoende natuurlijke lichtinval en zijn de woningen stuk voor stuk goed georiënteerd. Anderzijds was het aan ons om ervoor te zorgen dat de bewoners er zo comfortabel mogelijk zullen kunnen leven.” Blondel benadrukt dat passiefbouw, zeker met de materialen die momenteel voorhanden zijn, veel leefruimte inneemt. “Het is een duurdere oplossing die je dwingt om vanaf het begin te bedenken hoe je kan voorkomen dat je de omvang van de appartementen moet verminderen.”
Om de toekomstige bewoners vertrouwd te maken met hun woning en het toegepaste passiefconcept, gaf het bouwteam hen de nodige informatie. Blondel vindt zulke begeleiding absoluut nodig. Het mag duidelijk zijn dat duurzaam bouwen voor Blondel vooral te maken heeft met het ontwikkelen van een nieuw woon- en leefconcept, en niet enkel maar met het ontwerpen en construeren van een gebouw.
Noot: Dit artikel verscheen eerder in be.passive.