Pierre Hebbelinck mag gelijkvloers BIP in Brussel herinrichten

  • image
  • image
  • image

De Maatschappij voor Stedelijke Inrichting (MSI) heeft in samenspraak met Beliris het Atelier d'Architecture Pierre Hebbelinck gekozen als ontwerper voor de herinrichting van het gelijkvloers van het Brussels Info Place (BIP) in de Koningsstraat 2-4 in 1000 Brussel. De renovatie zal zorgen voor de creatie van een nieuwe hoofdingang aan het Koningsplein, een nieuwe onthaal- en restauratieruimte en betere verbindingen tussen de verschillende functies van het gebouw. 

Het ontwerp van architectenbureau Pierre Hebbelinck kwam als winnaar uit de openbare aanbesteding die de MSI uitschreef in april 2020. Hierop kwamen 14 inzendingen binnen, waaruit in augustus 2020 een shortlist van 3 kandidaten werd geselecteerd om een voorontwerp in te dienen. Drie partners - het Brussels Gewest, de MSI en Beliris - hebben een samenwerkingsprotocol ondertekend voor de renovatie van het gelijkvloers van de Koningsstraat 2-4, dat wil zeggen van de gebouwen van het complex op de hoek van het Koningsplein en de Koningsstraat. Beliris, de federale opdrachtgever voor Brussel, financiert de studies voor het voorontwerp en voor de aanvraag van de bouwvergunning.

Het gebouwencomplex van het Brussels Info Place of BIP, naast het Koninklijk Paleis, is eigendom van de MSI en vormt een visitekaartje van het Brussels Hoofdstedelijk Gewest. Hier huizen onder meer de kantoren van visit.brussels, de permanente tentoonstelling experience.brussels en ook de wekelijkse vergaderingen van de Brusselse regering vinden er plaats. Op het belendende perceel plant de MSI een moduleerbaar gebouw voor LE CHAT cartoon museum.

Deze renovatie is bedoeld om een hoofdingang te creëren aan het Koningsplein, om een nieuwe onthaal- en restauratieruimte in te richten en om betere verbindingen te creëren tussen de verschillende functies van het gebouw. De geplande herstructurering zal ook een oplossing bieden voor de beperkte zichtbaarheid van de functies in het gebouw vanuit de openbare ruimte, zal het gebouw een beter toegankelijk maken, in het bijzonder voor mensen met een beperkte mobiliteit, en zal de circulatie in het gebouw duidelijker maken.


De keuze van het architectenbureau

Gilles Delforge, directeur van de MSI, preciseert: “Het ontwerp van architectenbureau Pierre Hebbelinck beantwoordt het beste aan de selectiecriteria van de aanbesteding, zoals de meerwaarde voor het bestaande gebouw en de relevantie van de voorgestelde ingreep voor de erfgoedwaarde van dit gebouw, dat deel uitmaakt van een beschermd monument. Daar komt bij dat de laureaat ook als winnaar is gekomen uit een andere openbare aanbesteding voor het ontwerp van het pand dat de MSI zal bouwen op het belendende perceel van de BIP-gebouwen voor LE CHAT cartoon museum. Dat zal zorgen voor een optimale coördinatie tussen deze twee projecten in een architecturaal geheel van gebouwen met een historisch verleden en een onderlinge verwevenheid.”

Op basis van zijn winnende voorontwerp zal architectenbureau Pierre Hebbelinck nu het ontwerp voor de herinrichting van het gelijkvloers van het BIP verder uitwerken. De MSI wil de aanvraag voor de bouwvergunning eind 2021 indienen en de werken starten vanaf 2023.

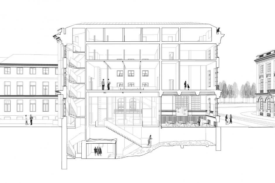
Architect Pierre Hebbelinck licht toe: “Ons architecturaal voorstel voor de herwaardering van het BIP vloeit voort uit een grondige bestudering van de geschiedenis. Op basis daarvan beschouwen we de onthaalruimte als een palimpsest van historische lagen, die dateren van de 12de tot de 21ste eeuw. De schets van de dwarsdoorsnede laat zien dat alle bezoekers worden opgenomen in dit fysieke verhaal van de geschiedenis. Bijvoorbeeld via de dieptezichten naar het Isabellastraatje en de resten van het oude paleis en de kapel, maar ook in de hoogte, met een aankondiging van de tentoonstelling experience.brussels door een grote opening naar de bovenverdieping. Bezoekers komen binnen op het niveau van het Koningsplein, zodat deze rijkelijk gevulde vitrine van Brussel voor iedereen toegankelijk is, maar ook om meer inzicht te bieden in deze unieke plek. Er bestaat geen andere plek in Brussel die de ontwikkeling van de stad op zo’n boeiende en begrijpelijke manier vertelt. Je vindt zo’n soort configuratie zelden bij bezoekersruimtes in Europa. Het Koudenbergpaleis verwijst zelf naar de Europese ruimte. Dit ambitieuze project nodigt uit om het Koningsplein opnieuw te activeren als een kwaliteitsvolle ruimte voor gebruikers. Via deze ruimtelijke strategie kunnen we een belangrijke rol toekennen aan het begrip van de politieke en culturele bijzonderheden en de symbolische rol van deze herstructurering van het Koudenbergpaleis versterken.”

Bron sau-msi.brussels

  • Deel dit artikel

Onze partners